
现代风设计
房子位于中国台湾,面积约 73㎡
依照屋主的喜爱
整个风格色调选用灰白色+原木色搭配

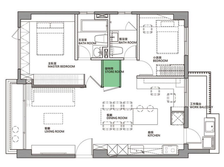
原始户型是一个三房两厅的格局
经过设计师的重新布置
加大了主卧面积
并把原有走道空间变成了储藏室
还将书房的墙面拆除
设计成厨房中岛

▲原始平面图

▲原始建筑

▲轴测图

▲平面图
客厅使用水泥墙面
铁件+木材的电视柜
让整体看上去简洁又大气

暖色调的沙发与灰色墙面形成对比
黑色的铁艺吊灯与壁灯
很好的渲染了整体氛围


在沙发旁边
隐藏着通往卧室的门和储藏室的入口
融为一体的设计很受屋主喜爱


拆除了隔墙后
书房变成了开放式设计
简单的木头书桌+铁艺书架
搭配从窗外透进来的阳光
显得格外舒适


室内也能看到窗外的绿植
在这里办公、看书很是惬意

因为整个空间的基调偏冷色系
所以设计师在厨房中使用大量白色橱柜
让整体看起来更宽阔
也富有活力



厨房与书房之间隔着岛台与餐桌
洞洞墙将侧面空间完全利用
墙后还放着冰箱
靠近书房的一边则做成了书架


虽然是开放式设计
收纳空间却很多

餐桌连接着白色的岛台
清新的色调搭配上木质餐椅
顶部延伸的天花板界定了区域
在利用三盏吊灯照明
温馨又浪漫




卧室延续了水泥墙面+原木设计
依然是屋主喜欢的风格
加宽床头位置作为床头柜使用
有大量的储物空间
床头的大梁用倾面天花板隐藏
有拉高视觉的效果

床尾是敞开式的落地衣柜
上下搭配白色柜门


窗户下方做了小的卧榻
能当座位使用底部还有不少储物空间

卫生间也以灰色调为主
用特殊形状的黑色地砖铺面
墙面上大理石瓷砖
不仅防水还有易清洁

淋浴区用玻璃隔开
做干湿分离设计
墙上的小窗户用来通风换气
很是方便
