上次跟大家详细介绍了农村别墅排水、排污管道要如何设置,化粪池要如何清理,以及如何根据自己家庭人口数量选择合适大小的化粪池等相关问题。

但大家都说对化粪池具体做法介绍的不够详细,农村别墅施工图纸里面关于化粪池的施工图纸也不太看得懂。
今天我们就结合施工图纸(以二格式化粪池为例),详细的为大家介绍农村别墅化粪池的做法。

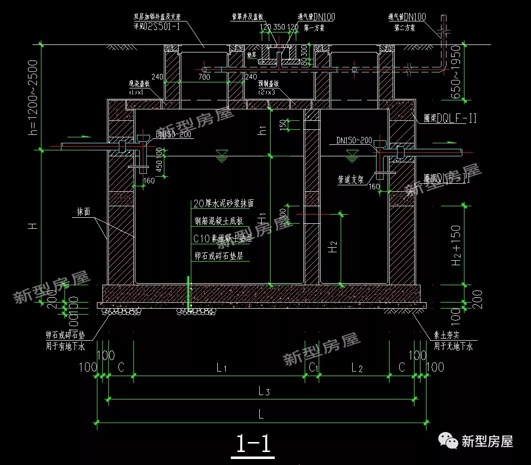
化粪池平面图:
在做化粪池时,大家可以根据自家房子和化粪池的相对位置关系,从a、b、c三个方向中合理选择设置化粪池的进水管;根据最终经处理后的污水的排放位置,从d、e、f三个方向中合理选择设置化粪池出水管。
敲重点:
如果粪便立管不能兼做化粪池的透气管时,需另外设置专门的排气管。
化粪池一定要设置排气管。
如果化粪池远离房子,或者位于下风方向,可以就将排气管设置在化粪池之上。若是直接将排气管设置是化粪池之上排出的臭气会对家居环境造成污染,那就需要采用第二种方案,铺设专门的排气管。

二格式化粪池的第一池大小要保证污水(粪便)能在这里驻留30天以上,对应不同型号化粪池,具体尺寸如下表。
因为宅基地等实际场所限制,化粪池实际施工长、宽尺寸可以做适当调整,但是实际容积不能小于所选型号化粪池的有效容积。

化粪池的施工:
化粪池由底板、池壁、盖板、管道等4部分组成,施工要点如下:
1、挖基坑。选定化粪池位置后根据要建化粪池的大小挖好基坑,平整好坑底,清理好池外壁。

2、化粪池底板施工
化粪池底板由下到上依次为素混凝土垫层、钢筋混凝土底板、水泥砂浆抹面层。
注意:如果是地下水丰富的地方,在素混凝土垫层下面要先做一层卵石、碎石垫层,如果没地下水,则直接将基坑底素土夯实就可以了。

化粪池垫层施工:底板垫层用c10混凝土,垫层厚度做100mm。
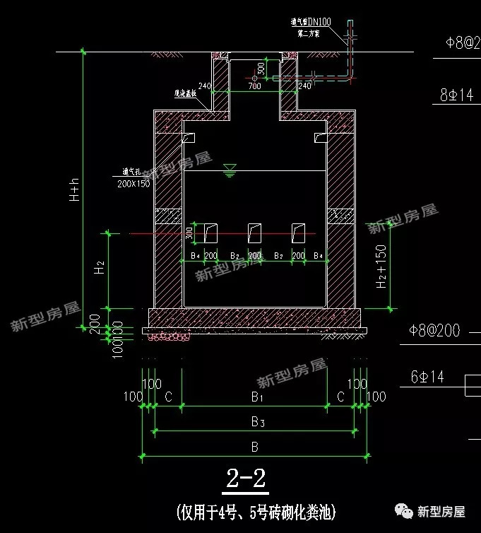
化粪池横切面示意图:

化粪池底板:化粪池底板用c25混凝土浇筑,厚度为300mm,配双层双向@150方格钢筋网。农村自建房一般选用1号或者2号化粪池就能满足使用需求,配直径为10的带肋钢筋。

如果选用更大型号的化粪池,配筋上3号化粪池底板采用直径12带肋钢筋,4号、5号化粪池采用植筋14的带肋钢筋。

水泥砂浆抹面层:池底抹面层是在化粪池砌筑完成后,跟化粪池内壁抹面一起施工,化粪池内外壁、池底抹面层都需使用防水砂浆(1:2内参5%防水剂的)。

3、化粪池池壁施工
化粪池的池壁由砖砌体、内外抹面层、圈梁三部分组成。
砖砌体:砖砌体大家根据实际情况选用合适的砖即可,采用M10.0水泥砂浆砌筑。

距化粪池基坑底部1750mm距离处设置进出水管管口,管罩垫层用c10混凝土做80mm厚度。

抹面层:池壁内外用防水砂浆抹面厚度一样是20mm,内池壁与内池壁、内池壁与池底阴角处抹面需做成45度斜面,厚度为50mm。
而池壁外抹面层还需要刷2道防水涂料。

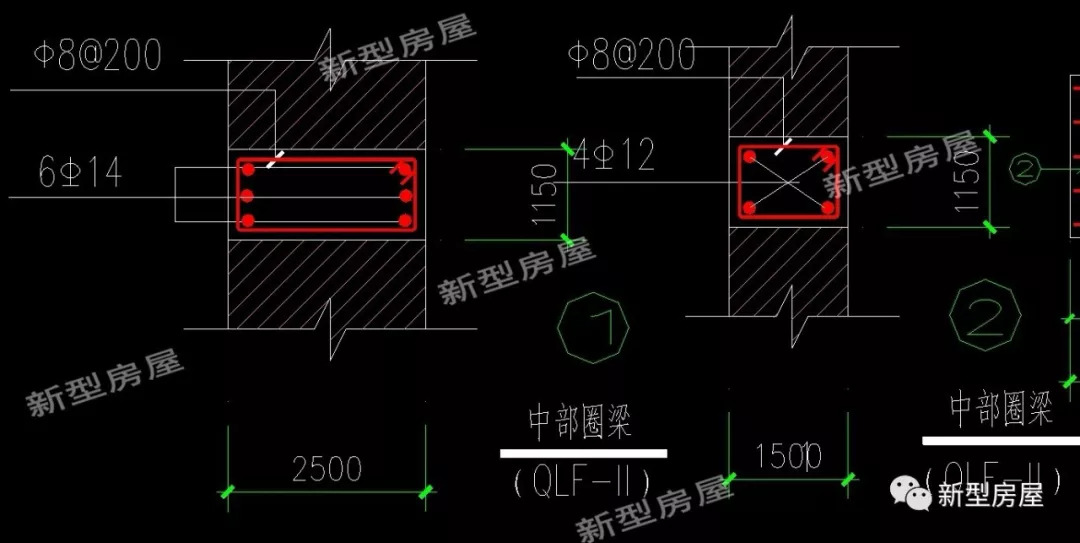
圈梁
按照规范的做法,化粪池还应当设置中部圈梁、顶部圈梁两层圈梁,其中中部圈梁设置在距化粪池底板1000mm高度。

3、管道施工
管道包括化粪池外部管道和化粪池内部管道。
化粪池外部横向管道需保证不小于0.026的坡度,管道不能出现直角拐弯,需设置成2个45度角。

化粪池内部需设置过粪管,一池和二池(二池和三池)之间过粪管采用长度为70-75cm,内径为15cm的PVC管。


4、盖板
化粪池盖板有现浇盖板和预制盖板两种,大家可哪种方便选用哪种。但是都需要根据上面的承重情况设置配筋。

其他化粪池
除了现场施工建化粪池,大家也可以选择成品玻璃钢钢化粪池。一个有效容积2立方的玻璃钢化粪池,价格在1000元左右,加上挖基坑、安装填埋等施工成本,总的费用在1500~2000元左右。

除了玻璃钢化粪池,还有水泥预制化粪池。一个有效容积在2立方的水泥预制化粪池,总体积在接近4个立方,价格在500元每立方左右,购买价格也是在2000元左右,一般卖家包安装。
但是这种化粪池存在一定的局限:因为本身质量大,运输成本高,安装也需要用到起吊设备,很多生产水泥预制化粪池的厂家都只做方圆百公里左右范围内的生意。

综合来说,红砖砌筑化粪池是最简单、最经济的方式,而且不会受到地域限制,可以根据建筑及其周围情况灵活变通,是最适合农村自建房的形式。
而产品玻璃钢化粪池,安装快捷,也是很不错的选择。

农村化粪池的做法其实很简单,朋友们你们都学会了吗?赶紧教给施工队吧!
延伸阅读:化粪池原来越大越不好,清理越勤快反而不干净?农村盖房该咋选?
关注新型房屋,更多经典户型和农村建房案例。