有人喜欢盖高层,自然也有人偏偏喜欢平层。如今攀比越来越盛,很多人要建个房子也要攀比,看到邻居盖三层,自己偏要盖三层半,永远想要比别人高一等。但是其实农村建房最讲究实用,不要一味攀比,得不偿失。接下来给大家推荐四套一层普通自建房户型图,其实一层只要好好设计,也同样能比高层建的美观气派。
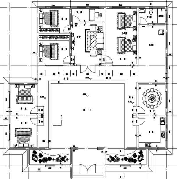
图纸一:一层中式四合院别墅设计方案图
图纸介绍:本户型为一层中式四合院别墅设计方案图,含外观效果图,造型古典,美观,户型设计合理,自建四合院推荐图纸。

别墅效果图展示
占地面积:19.26m*19.43m(含院子),360平方米左右(含院子);
建筑层高:一层;
建筑高度:10.30米(含屋顶);
设计功能:
一层:院子、东侧(卧室x2)、西侧(餐厅、厨房)、客厅、卧室x3、书房、洗衣房、卫生间(淋浴房);

别墅户型图展示
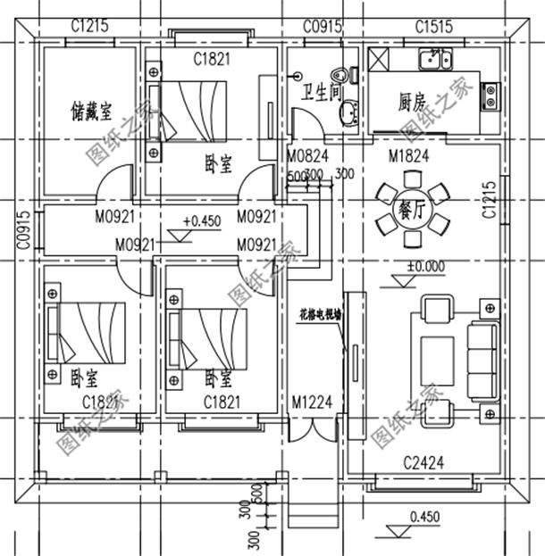
图纸二:北方农村平房建筑设计图及效果图
图纸介绍:本户型为农村平房建筑设计图,带外观效果图,占地140平方左右,农村建房,不仅要美观,还要实惠,这套图纸为砖混结构,造价低,户型合理,客厅、2个卧室向阳,采光很好。

别墅效果图展示
占地面积:12.70m*10.80m,140平方米左右;
建筑层高:一层;
建筑高度:4.80米(含屋顶);
设计功能:
一层户型设计:过道、客厅、餐厅、厨房、卫生间、卧室x3(其中一个卧室可以当厨房)、储藏间

别墅户型图展示
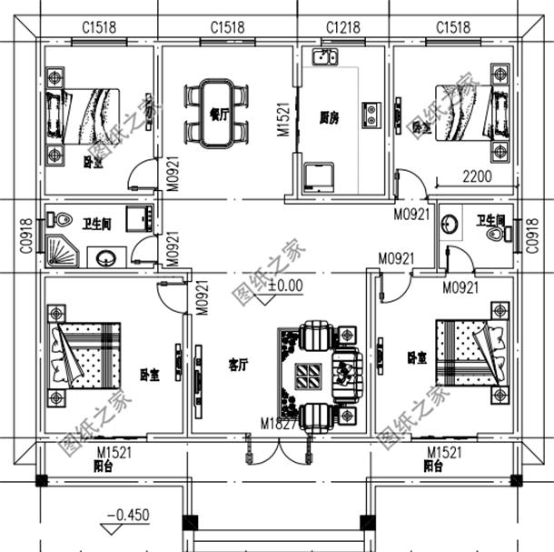
图纸三:大气一层自建房设计图,含外观效果图
图纸介绍:本户型为大气一层自建房设计图,含外观效果图,户型实用,满足大部分家庭使用,外观大气。

别墅效果图展示
占地面积:13.24m*12.24m,160平方米左右;
建筑层高:一层;
建筑高度:5.60米(含屋顶);
设计功能:
一层:客厅、餐厅、厨房、主卧(带卫生间)、卧室x3、卫生间;

别墅户型图展示
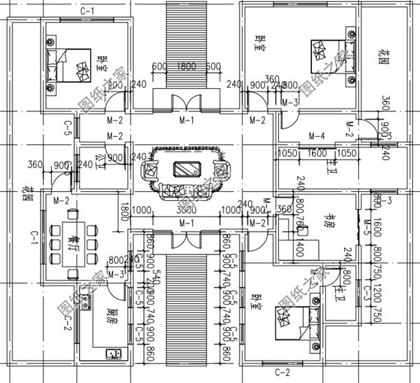
图纸四:后面带小院的农村房屋设计图
图纸介绍:本户型为农村类似三合院的建筑设计图,带外观效果图,带后院,房子左边,右边带花园,后院,左右两边的花园中还可植树栽花、饲鸟养鱼、叠石迭景,居住者尽享大自然的美好。

别墅效果图展示
占地面积:18.14m*16.34m,300平方米左右;
建筑层高:一层;
建筑高度:5.40米(含屋顶);
设计功能:
一层户型设计:客厅、餐厅、厨房、卧室(带卫生间)、书房、卫生间、卧室x2、后院、左花园、右花园

别墅户型图展示
以上就是四款一层普通自建房户型图,其实一层只要好好设计,也同样能比高层建的美观气派。本文由图纸之家官网原创,欢迎关注,带你一起长知识!