收纳,本就是家里永恒的话题,值得说的点也非常多。所以今天文章很长,满满的都是干货。大家认真耐心看哈~

原来房子的格局是典型的两室一厅,一个主卧+一个次卧+一个很大的客厅。
卧室的画风什么就不说了,单说这柜子,一看就是假把式,衣柜那么小竟然还设计了敞开的转角柜,更不用说矮柜上面的空间全被浪费了。

原主卧,现次卧
这个超大的客厅里也一个柜子都没有,把大好的收纳空间都给闲置了。

原客厅,现主卧
更不要说这个像开玩笑一样,毫无收纳能力,徒有一身落灰本领的玄关柜了。

原玄关柜
总之,家里一个能“收”的都没有。
所以,我们在设计之初,就尽可能地压榨房屋的每一寸空间,终于,在最后让出了30%的空间用于收纳,充分满足了屋主想要更多收纳空间的诉求。

红框中均为收纳空间
然后,这个不到70平的老破小有了原本别人想都不敢想的储物间+整体玄关柜;

玄关柜改造后
我们不仅在主卧塞下了一个步入式衣帽间,一整排的顶天立地收纳柜,还塞下了一个大书架;
我和屋主促膝长谈后
把柜门换了个方向
收姐从前也一直强调,收纳是没有统一的标准,唯一的标准是使用者自身的诉求。有人喜欢空无一物的整洁,有人喜欢统一了收纳工具的满满当当。
因为不论爆改还是收纳,我们的初衷始终是:一切都从屋主一家自身的诉求出发。我们这一次爆改也正是这样做的。
想要快速了解屋主的诉求,唯有跟她本人,面对面,然后聊~
从开始收姐主动问问题,都是一些常规问题,诸如:
“你家常住几口人?”
“是自己做饭多还是点外卖多?”
“衣服喜欢怎么叠?”

直到屋主主动说起自己的需求:
“我得有地方收纳包!”
“我家的被子真的非常多!”
“小朋友的玩具特别多,家里堆不下的。该送的都送了,该扔的也扔了,还是有很多。”
“哦对了,我的书也特别多的。”
... ...

基本就是从琐碎、看似毫无逻辑关联的闲聊中,提取出我们想要的细节,进而对屋主家的情况有了一定的了解。
总之,聊下来收姐知道了包括但不仅限于以下这些信息:
每一类东西都特别多,衣服、鞋子就不用多说了,这在我的预计范围内;
还有小朋友的玩具多,书本多,被子多;
... ...
总之,一个字
东
西
多
get屋主的表面需求和隐形诉求后,这个设计也就成功一半了。因为紧接着收姐就根据已有的设计图纸提出针对性的建议:
主卧和次卧之间的柜子可以更换开门方向。
一则,屋主的物品更多,需要更多的储物空间;
二则,如果按照原本的设计,主卧和次卧的墙面均是有墙面、有柜门,显得繁琐视觉上也不利落。

在原设计图上用红色重新标注了墙体和柜门开向
于是主卧才有了这样一整面顶天立地的柜子,而不是原本四散分离、断断续续的柜子。

主卧顶天立地的一排柜
次卧则是这样只有电视的干净墙面。

次卧对应的电视墙
然后还要来屋主大部分物品的数量、尺寸等数据,只为每一件东西都能妥帖地被放置在属于它的专属位置。
没有完美的收纳方案
只有相对合理的收纳规划
在了解了屋主的诉求,确定了所有框架之后,剩下的内部结构就很简单了。
收姐拿给看家的PS本领,画出简单的效果示意图,反复跟屋主沟通确认后,就立马背着电脑和打印好的一百多张图纸,当面和 cocomat 橱柜定制的设计师沟通方案的可行性,肩膀差点被压垮,好在最终确认了全部的定制方案。
衣柜
从大家最关心的衣柜开始。
我们见过了太多不好用的衣柜,搁板太多,挂杆太少...也深度讲解过一个好用合理的衣柜内部格局该是如何:
- 搁板要少。
- 抽屉要多。
- 悬挂区要多,且高度合理。
剩下的就是,根据实际情况来协调其中的比例关系。
——主卧衣帽间——
主卧的衣帽间就是很典型比例协调后的例子。

衣帽间平面图
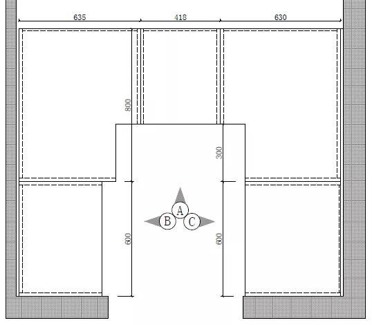
从图中就可以看出,这个衣帽间我们采用了U型设计。
因为U型设计能把可利用的空间最大化,站定中心,270°环绕选衣,非常高效。
从俯视图中也可以看出来,A面连带上转角设计,占用了 B、C 两面一部分的面积,所以是最宽的面。

衣帽间平面图
中间的黄金收纳区域按照 A、B、C不同的区域分别做出了设计。
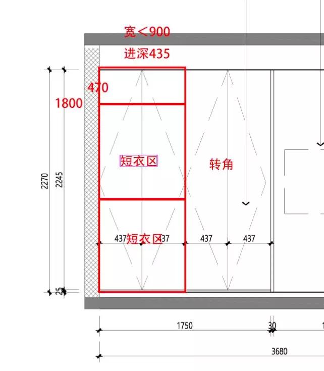
A面的尺寸标注图是这样子的~
我们上面也说了A面是最长的面,而屋主四季的衣服以长衣居多,像是大衣、开衫、长裙这一类的。所以就把最宽的这一面设计成长衣区。
长衣区的高度是1.4m,这个数据也是根据上面跟屋主要到的物品数据推算出来的。
屋主最长的衣服为1.3m,那么算上衣服撑和挂杆的高度,1.4m 刚刚好。底部剩下的40cm,也可以放一些换季的衣物。
(PS:我知道这个图很丑,但它能很直观地看到柜子的内部结构是如何划分的,甚至这些尺寸标志你都可以直接拿走套用,所以接下来这类的丑图还会有很多。)
衣帽间A面的尺寸标注图
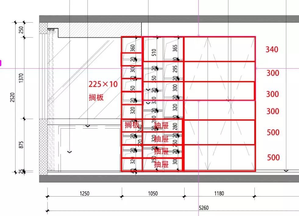
而 B 面,也就是衣帽间的左手边,上面设计了叠放区,用来放一些不方便挂的衣服,像是毛衣之类的;
下边是抽屉区,可以收纳内衣、长T恤、薄内搭、围巾等贴身衣物。
4个抽屉都保证了内部高度有22.5cm,如果按照收姐一直倡导的“近藤麻理惠式站立叠衣*法大**”收纳衣服,你会发现这个尺寸不多不少,刚刚好。

衣帽间B面的尺寸标注图
而 C 面,也就是衣帽间的右手边,则是上下两排的短衣区。
这部分的弹性就大很多,它既能用来挂短衣服,上下两层,高度都是90cm,正常的衣服都可以挂在这里,裤子也可以用裤架挂在下边的区域。
又能用来堆成品的收纳抽屉,还能放一些大箱子。可以根据日后需求调整。

衣帽间C面的尺寸标注图
于是,就得到了这样一个面积虽小,但五脏俱全的衣帽间,也算是满足了屋主的一个大心愿。

衣帽间
哦对了,这个270度的环形衣帽间,我们在1米8往上的顶部区域统一设置了搁板格,用作被褥,以及小部分换季衣的收纳。高度应该在47cm左右。
一年爬凳子取用它们的次数大概在个位数。
衣帽间顶部
黄金收纳区域,不管是长衣区,还是短衣区都井井有条,想找什么衣服去到对应的区域就好了,可以节省不少翻找衣服的时间。

衣帽间黄金区域
——主卧衣柜——
主卧床对面是这样一排进深尺寸不一致的柜子,我们上面已经说过了。
由于石膏板和承重柱的存在,柜子进深不够,所以只有右侧这边设计成了衣柜。

主卧衣柜俯视结构图
这部分的图纸比较长,收姐把它分成了两部分来说。
一部分是更改了衣柜柜门开向的衣柜。是专门为屋主的女儿设计的。
最顶部依旧是格子,用来收纳被褥和换季的物品。而黄金区域,因为小朋友还小,所以即使是长衣服也不会太长,一整排的短衣区就够用了。
另外4个抽屉用来收纳小朋友的内衣、袜子、贴身的内搭等,分类放也都够用了。底部剩下的几个格子,使用起来也比较灵活,不管是收纳过季的衣服还是收纳小朋友的玩偶都比较合适。

主卧儿童衣柜设计图
另外一部分呢,就是左边的这一整个区域。
这个区域,因为有承重柱和次卧电视墙石膏板的缘故,有三个不同的尺寸,因而也分别做了不同的设计。
说起从右往左,分别是搁板区,这部分背面是次卧的电视,占用了大概10多公分,只有50cm 左右,只能设计成隔板的形式。用来收纳四件套和屋主的包包;
再来是抽屉收纳区,用来收纳私密的杂物;
最边上是靠近梳妆台的敞开区,后边是承重柱,进深只有20cm 左右,本身空间就小,加柜门的意义也不大,所以干脆设计成敞开式的,用来收纳化妆品。。

主卧衣柜设计图
整个打开就是这样子啦,虽然房门挡住了一部分儿童衣柜的视线,但感受这一整排柜子强大的收纳力还是很轻松的。

主卧整排衣柜
不论是小朋友当季的衣服还是过季的衣服,都有恰当的地方摆放,不用怎么理就很整齐了。

主卧衣柜儿童衣柜
用来收纳四件套和屋主的包包的层板都是可以调节的,可以根据不同的物品来调整高度。(不过现在还没有完全整理好,所以放了小朋友的衣服)

主卧衣柜搁板区
抽屉收纳,可以放一些比较隐私的物品。
也可以借助收纳工具,重新规划抽屉的空间,比如收纳盒;
或者是用竖直收纳*法大**,把物品竖直收纳,方便查找。

主卧衣柜抽屉收纳区
靠近化妆台的柜子,用来收纳化妆品也算是我们的无意之举,没有想到实际用来竟然特别方便。
中层的黄金区域,用各类收纳盒分门别类收纳不同的化妆品,脸部的、唇部的还是眼部的,通通收纳整齐。就连之前没有地方收的囤货也可以放在不常用的顶部空间。

主卧衣柜化妆品收纳区
——次卧衣柜——
我上面之所以敢改动设计师原本给次卧设计的衣柜,完全是因为次卧本身在进门右手边就有一个衣柜区域,而屋主妈妈的衣物相对来说不多,这个衣柜自然是足够用了。
同样的,1米8往上的顶部空间也是做成了隔板,用来收纳被褥和换季衣物。

次卧衣柜设计图
下边靠里的位置是长衣区,只占了衣柜的四分之一,但对于长衣服没有几件的妈妈来说已经足够了;
剩余的四分之三都做成短衣区更实用一些。
次卧衣柜内部图左半边
下方除了抽屉,也都做成了格子当做弹性空间,之后需要抽屉可以加成品的收纳抽屉,或者是用收纳筐来收纳。

次卧衣柜内部图右半边
看图也能看出来,为了节省空间,次卧的柜门做成了推拉门,也是整个家里唯一的推拉门衣柜。

次卧衣柜整体图
橱柜
之前厨房专题中已经说了,我们敲掉厨房和次卧之间的墙,将原来靠近厨房的卧室也一并扩进新厨房,新厨房=爆改前的厨房+靠近厨房的卧室+原来的一面墙。
原来的厨房不足5㎡,改造后的厨房面积整整扩大了两倍多。

厨房图纸
于是就有了现在这个超长的“L”型台面。

“L”型台面
不过在橱柜设计时,因为需要固定位置的电器不少,要根据电器尺寸预留空间,因而就不能像衣柜那样随心所欲了。
“L”的长边台面,除了要按照洗碗机、消毒柜等,还有老房子特有的烟道问题,能用的收纳空间其实只有灶台下的大抽屉和最右边的柜子。
而且这个水槽洗碗机,完全就是整个柜子的空间占掉了,以至于我们想要装厨余处理器,以及利用这个空间做收纳的想法就彻底破灭了。向现实低头...

洗碗机安装图纸
所以,厨房的收纳压力还是集中在了“L”的短边台面。
这一边不仅容纳了冰箱、微蒸一体机、烤箱,还有超多的收纳空间。

厨房橱柜平面图纸
图中标注的是四个抽屉,是厨房的收纳主力军。抽屉也够深,学习日本主妇垂直收纳也完全OK 的;
上面三扇门后的柜子里用的是搁板设计,用来收纳一些五谷杂粮,食材、杯子、备用餐具等。

厨房橱柜
中间有部分是敞开式的设计,根据嵌入式微蒸一体机的尺寸预留了整排的位置,另一边放了小烤箱,旁边还可以收纳一些烤盘工具之类的,这里的空间完全没有浪费。

厨房
方太嵌入式微蒸一体机
东芝烤箱
“L”的长边台面,虽然收纳空间不太足,但由于运用了高低台面,消毒柜加上灶台的高度过高。所以本来是设计在旁边的灶台下的消毒柜,左移了一个位置。
让步之后,灶台下做成大大的收纳抽屉,用来收纳家里的炒锅、炖锅、蒸锅、高压锅...
厨房地柜
方太消毒柜
方太洗碗机
方太油烟机
也算是符合使用习惯,用哪个锅只用打开抽屉拿就好了,根本不需要挪动脚步。

橱柜抽屉
鞋柜和储物间
我们都知道,定制柜子其实细分来说还分两种:
一种是品牌定制,另一种是木工现场打造。
那刚好,玄关这块区域,我们这次杂糅了两种定制方式,可以供你对比选择。

玄关区域图纸
当然,所有图纸都是一样的画风,所以我们先来看柜子的内部格局设置。
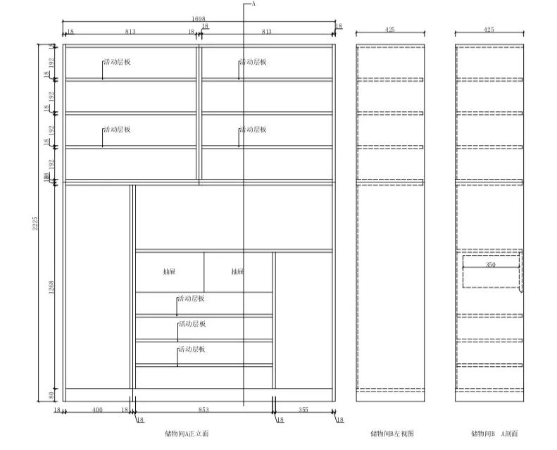
储物间的图纸是这样的。
储物间也是 L 型的。长边是收纳的主力。最边上预留出40*40*135的吸尘器等工具柜,是经过对各个品牌研究,最终得出的一个可以通用的尺寸,如果你家也需要这样一块区域,尺寸拿取不谢!
另外这里专门设计了两个不大的抽屉,用来收纳各种零落工具;
上边下边的隔板都可以用来收纳鞋子。

储物间设计图纸
L 型的短边只有75cm,很窄很窄很窄!
但底部还是预留了小朋友的自行车、滑板车的区域;
就算小朋友长大以后,这款也可以用来收纳行李箱。
储物间设计图纸
那玄关的鞋柜图纸是这样的:
女生的鞋子比较多样,有平底鞋、高跟鞋、短靴、长靴等,所以鞋柜层板收姐也是设计成了可以调节的。三层一个固定板,中间两层的层板是可以抽掉的。
正常情况下,鞋子高度为15-20cm,普通的层板高度就合适;若是要放靴子,可以抽取掉中间的移动层板,这个高度放靴子也刚刚好。

玄关鞋柜图纸
在鞋柜对面的玄关柜只要20cm进深,想要做大容量的储物是不可能的。
于是收姐提出下方做翻斗式的鞋柜作为另一侧鞋柜的补充。翻斗每一层高40cm,不管是男鞋女鞋都能放得下;宽为144cm,一般来说一双鞋是24cm,那么144cm 刚好可以放下六双鞋。
中间是高35cm 的壁龛,收纳钥匙等杂物刚刚好;
上方空间则做成了隔板,用来收纳一些纸巾等杂物。

玄关柜图纸
看完了设计图,直接上图。可以直观地看出品牌定制和木工打造的区别。
L型的小储物间是和衣柜、橱柜一样,找的cocomat做的品牌定制,大厂商一条龙服务。

储物柜cocomat定制
而玄关的鞋柜和玄关柜都是由木工师傅现场制作的。这个时候其实就可以对比出两种方式的不同了。
木工师傅现场制作。可以自己设计图纸,自己亲自挑板材,以及亲自监工。成果好坏与木工师傅的手艺,你的设计水平,以及你挑选材料的审美、能力成正比。
而更灵活的是,木工师傅可以根据现场实际情况,调整你图纸中不恰当不合适的部分。即使与前期图纸不是完美相符,但对后期使用来说,其实没有太大差别。


玄关柜+鞋柜,装修中
找到靠谱的木工团队,最后的效果也不差的。
翻斗鞋柜的效果是这样的,质感还不错。
玄关柜翻斗鞋柜
玄关柜上方的收纳空间,也可以收纳一些纸巾杂物,以及拆快递的剪刀、工具刀等。
玄关柜
对面的鞋柜也相当能装,一双鞋最宽按照24cm来算,一排可以放7双鞋。13层,共计可以放91双鞋。
另外鞋柜使用的是按压式开门,这样柜门不用安装把手,表面看起来更整洁。

玄关柜鞋
哦对了,不知道你们注意到了没有,无论是玄关柜,还是鞋柜,都是顶天不立地的,为什么这样设计呢?
这部分空出来是方便放平时更换的鞋子。这就意味着不需要打开柜子,可以直接更换最高频使用的鞋子。
在收纳中,收姐一向主张“有藏有露”。
藏——是为了一眼望过去的整洁;
露——是留给高频使用物品,以及装饰物。
壁龛加上底部不立地的悬空位置,刚好把藏露比控制在逯微大神主张8:2的样子,完美。

玄关改造后
而cocomat品牌定制,大厂商一条龙服务。
它们通常有自己*用御**的板材品牌、五金品牌,以及设计师。机器出活,精细程度优于木工。成果好坏与品牌靠谱程度成正比。
上面说到的衣帽间、衣柜、橱柜...包括储物柜,统统都是我们联系了cocomat进行定制的。
只要图纸得到,安装好的柜子就可以立即投入使用。吸尘器、鞋子、抽屉杂物,都与你的设计没有任何出入。

储物间
它不会根据你的实际情况进行调整,所以不管你转角留了多么大一块尴尬区域,它都会替你保留。
不过这块区域其实是收姐设计过的,刚好能塞下一个28L的行李箱。

储物间
原本放儿童自行车的区域,也可以在孩子长大后改放行李箱和药箱。

储物间
总之,木工打造和品牌定制对比下来各有各的优势,木工打造可以现场根据情况做出快速调整,比较灵活,而品牌定制质感更好,品质更有保障一些。
另外收姐最惊艳的是 cocomat的板材是真的好,我们在爆改结束后找第三方甲醛检测机构检测了甲醛含量,竟然完全没有超标,厉害,牛逼
。
而木工打造的柜子,不知道是不是板材的问题,刚打好的时候味道比较重,通风了几天后才慢慢散去。
柜子有价
经验无价
总之,到了这里我也什么都不怕了,就是要实话实说。那些我踩过的坑你们别踩,这些我总结出来的经验你们拿走不谢。
第一点,也是最重要的一点,一定要了解使用者的需求。
这个柜子的使用者是谁,她的习惯是什么,怎么用最舒服,一定要提前想清楚。
因为定制柜子的设计师会基于自己的专业经验来给出方案,但这样的方案可能并不适合你。像厨房的高低台面,根据这个参考公式(合理的操作台高度=使用者身高÷2+5~10cm),不管是收姐,还是对方,计算出来的结果都是,根据厨房的主人屋主妈妈155的身高来说,适合的高度都是82.5。
但屋主表示自己家台面原本的高度就是80高的,妈妈平时用起来就已经很费力了。所以在和屋主反复确认,又核算了消毒柜高度、台面厚度等尺寸后,把台面的高度确定为74cm。
据屋主入住的反馈来看,这个尺寸刚刚好。公式什么的可以参考,但最终还是要以你最舒服的状态来决定家里的尺寸。
厨房地柜、高低台面
其次,一定要参与图纸设计;
哪怕你不会画图,也可以像收姐一样,虽然从头到尾也不懂 CAD 怎么用,但我会用 PS 在设计图上做标记啊,然后拿着图当面跟设计师沟通,比你凭空瞎比划高效的多。
不过这里还要注意:不要以为有了图纸就万事大吉,还要跟对方说清楚自己的图纸细节。不然就会像收姐这样,每次说到这个问题,都会被拎出来点名举例。
对,就是玄关这个壁龛。收姐图中的蓝色框只是为了强调这里是壁龛。但谁也想不到,木工师傅误以为这里要打一个框架出来...

玄关柜尺寸标注图
于是就有了现在这样的一个玄关柜壁龛,框架有点突兀,柜面不太干净。
不过好在,有宝宝说有了这个框,玄关柜才会更结实,不至于柜子里的东西太多导致柜子变形。也算是无心插柳了~(反正我自我安慰能力世界一流)

玄关柜壁龛
再者,一定让对方出效果图,哪怕只是黑白的;
这个真的是收姐确认了大部分图纸后才意识到的,之前所有的图纸全部都是这样子的平面图!
正视图、侧视图、俯视图...
然后自己脑补实物。

储物间A面平面图
等到储物间这一部分的时候,和对方设计师沟通许久还没有讲清楚后,设计师直接给出一张效果图,问是这样么?方才确认两个人说的是一回事,白白浪费了时间。(有这样的效果图,为什么不早点拿出来呢?!)
所以,正在看这篇文章的你,一定要记得让设计师出效果图,比你自行脑补直观的多,而且哪里不符合想法,也方便指出来。

储物间整体效果图
还有,一定要确认每一份图纸,反复核对,不懂就立马问;
是的,收姐这里又踩坑了...这次的坑在书架。
在所有图纸确认以后,屋主又测量了书的尺寸,发现之前给到的书架层高不够,很可能书本塞不进去。所以收姐紧急联系定制方,希望修改书架的层高。
修改如图所示,拿掉一层层板,从五格变为等分的四格。

书架图纸
收姐理所当然地觉得,这是很简单的修改,完全不会出现歧义,就是整个书架都从5格改成4格嘛,所以没有进行最后的确认。
万万没有想到,对方设计师理解成了只有最右侧三分之一部分层高的书架调整,等到柜子做好、进场安装了才发现问题,已经不能修改了。
好在屋主收藏了很多电影碟片和漫画书,尺寸刚好合适未修改过的书架层高。也算了“歪打正着”,没有造成浪费。

卧室书架
最后一件呢,不要盲目质疑你的设计师。
虽然这一次的橱柜、衣柜设计,收姐和cocomat 的设计师有过意见不一致,有过争执,但只是因为我们站的立场不同,考虑问题的角度不同。
我是站在屋主的使用感和诉求上考虑的,所有会有一些非常规的设计;
而设计师是基于自己的专业经验来设计的,会认为我的设计不合理。
但大家都是为了把柜子设计的合屋主心意,所以出现疑问和意见不统一的时候,不要吵架,而是把你的需求告诉对方,把这样设计的原因告诉对方,寻找一个可以达成共识的设计方案。

卧室读书角