小篮球兴起于上世纪50年代的美国,如今在全世界已经有了几十年的发展时间。我国早在上世纪60年代就推出过小篮球计划,但因为种种因素没能得到很好的开展。目前实施的“小篮球计划”是中国篮协去年推出的改革措施,是一项针对12岁及以下青少年的篮球推广计划。
时隔多年,小篮球计划的重启让小篮球持续升温。截至目前,小篮球联赛已经在全国25个省区市和5个计划单列市开展,吸引了超过1.5万支球队、10万名小球员参加,而且这个数字还在持续上升。
如今,我们所说的小篮球运动,是将成人篮球运动的规则进行简化和修改后,打造的更适合孩子的篮球运动。为了帮助更多的篮球爱好者了解小篮球,今天,小编就带着大家一探小篮球的究竟。
今日主题:小篮球,究竟“小”在哪里?
球员年龄小
小篮球比赛是为少年儿童专门设置的比赛,因此,对参赛孩子的年龄存在一定的限制。比赛开始当年,年龄满足:12周岁及以下的男孩和女孩可以报名参加当年的比赛,比赛分为:U12、U10和U8三个组别。
比赛场地小
标准的小篮球5对5的比赛场地尺寸为28米×15米,罚球线距篮架4米,限制区宽度为4.9米。场地线宽度为0.05米。

成人篮球比赛的场地对于少年儿童来说相对较大,较长的跑动和传球距离可能会给还在生长发育中的孩子们在比赛中造成一定的困难,降低少年儿童篮球比赛的流畅性,甚至一些孩子还可能因此对篮球运动丧失兴趣。为了解决这一问题,让孩子们能更加积极地参与篮球运动,在篮球比赛中体会到乐趣,小篮球运动缩小了比赛场地的大小。

球场大小可以根据比赛举办地的设施情况进行调整,尺寸可以根据场地实际情况按标准比例缩减,在26米×14米到12米×7米的相同比例下变化。
器材尺寸小
同样,为了让更多的孩子能体验把篮球投进篮筐的快乐和成就感,也为了让他们能够对篮球有更好地控制,小篮球运动中采用的球篮和篮球也被缩小成了更适合孩子的尺寸。
每个球篮要符合以下规格:

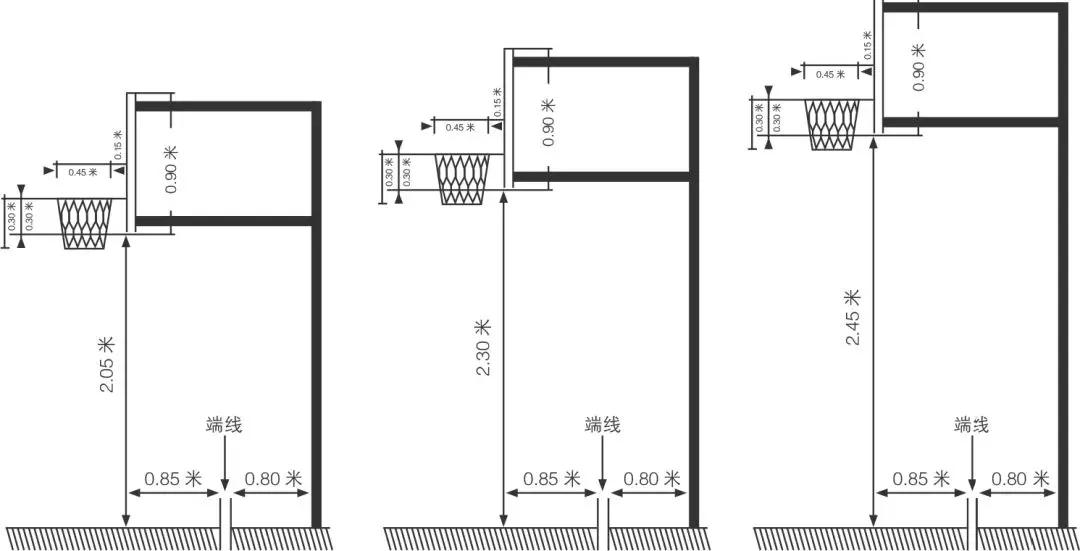
- U12的比赛,球篮的高度距地板2.75米。
- U10的比赛采用2.60米的篮筐。
- U8的比赛则采用2.35米。
可以有更低的球篮(1.80 米以下)适用于幼儿园的孩子。

小篮球运动的篮板一般尺寸为:1.2米×0.9米,但也可以是正规的成人篮板。
小篮球的设计与成人篮球的设计类似:
在U12和U10的比赛中,所用篮球为5号球,周长为69-71厘米并且重量在470-500克之间。而在U8的比赛中,所用篮球为4号球,周长为62-66厘米,重量在430-460克之间。

缩小的场地、缩小的球架、缩小的篮球,这一切都是为了让孩子们能够更轻松地在小篮球比赛的球场上体验篮球的乐趣。
相信通过今天的介绍,大家已经对小篮球比赛的参赛年龄、场地大小和器材尺寸有了一定的了解。