
刷屏的“凌晨三点的城市”,是都市生活华丽外表下残酷又真实的另一面。

在都市的繁华里,生活已经要拼尽全力,想过上向往的生活,往往意味着付出巨大代价。
结束一天的疲惫,能有个属于自己的栖身之所,成为许多人无可厚非的愿望。

然而,寸土寸金的都市里,买所新房很可能是个奢侈的梦想。
昂贵的房价,让人望而却步,但或许,也无意中给都市里破旧的老房子带来一个新的可能。
“另类”的“高龄”老公房
上海市中心建国西路的一个老小区里,隐匿着一座白色的三层联排别墅。
在周围房子破败,爬山虎遍布的“萧条”景象中,它的出现,显得格外引人注目。

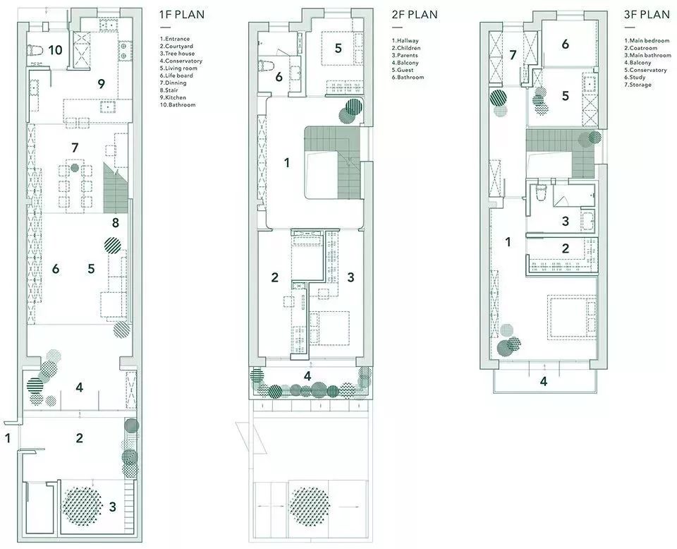
这里原本是旧里弄排屋中,极为普通的一栋老公房,竣工于194 7年,已有71岁的“高龄”了!

上海有很多类似的老房,这些房子承载了上海的记忆。
但摇摇欲坠的墙体和苟延残喘的局部构造,几乎可以说是幽深弄堂老房的“标配”。

改造前的这栋老房也不例外,它几乎具备了所有老房子的鲜明特点。采光差、隔间多、结构布局不合理......

房子面宽5.5米,深度约15.2米,每层约80㎡,三层面积240㎡左右。里面原先居住着四、五户人家,大家挤在同一栋房子里生活。
由于人口拥挤、隔断多而复杂,除了靠窗的房间,其他几乎全为不见天光的暗室。

由于老房子很多砖木结构都开始老化,设计师首先为房子进行了整体加固,并统一了层高。
再从外观上加以修饰,刷上白漆,增设阳台,老房子给人的衰败印象一下被破除。

加固时设计师还在房屋顶部开了一个天窗,然后将钢板穿孔后做成楼梯。

围绕一楼起循序向上的楼梯,让天井的自然光投进整个房子。原本由于纵深的格局导致的采光问题被巧妙化解。
一楼·打通隔间引入阳光

一楼的原始隔断全部被打通,创造出一个集客厅、餐厅、厨房为一体的完整空间。原先用作隔断的砖体墙面,只剩一面巨大的玻璃落地窗来替代了。

而从客厅延伸出去的院子,也通过大玻璃落地窗,让自然光线毫无遮挡地穿透进来。
客厅和阳光房连接处的小衣架子和衣物收纳车,随处可以脱放整理衣物,满足主人随意的生活。

而这个特意留出的半开放的区域,则模糊了室内外的界限,原来孤立的院落和三层空间,在改造后和外界的关系亲密多了,阳关洒进来,满屋都暖暖的。

院子屋顶上还留了一个巨大的树洞。
春天种上树木,这棵树将在以后的日子里陪着孩子一起长大。或许它将成为孩子童年记忆里最美好的一部分。

一楼客厅的沙发对面,有一面穿洞的木质生活墙,上面摆放着各种精巧别致的生活小物件,书架模块还可以顺应主人的需求,重新进行更换与组合。

打开墙面,则是一个非常大的隐形存储空间,可以将生活中不太用到或不方便展示的物品储存起来。

一层的卫浴间,圆形的浴室镜、长椭圆的洗手盆、创意半墙、密集铺贴的瓷砖,每个细节都在彰显着个性。

餐桌正上方是天井,阳光透过顶层的玻璃直射下来,用餐的时候心里都是阳光。
从餐厅看出去的场景,更是岁月静好。

楼梯下角落里藏了一个小型的工作区。这样一来,一层的空间已经被用得淋漓尽致了。
二楼·精巧设计温馨实用
二楼是储藏室、卧室的集中地。

设计中将门和储藏空间隐藏在墙面中,创造了一个干净且完整的区域。在阳光充足的时候,这是一个很温暖的属于家的空间。

完全看不出墙的背后是房间吧?

儿童房小朋友的床和书桌以及仓储都连接在一起,有更多的玩耍空间。

主卧则保留了原始建筑的坡顶结构。

衣帽间和卫生间统一在一个盒子之中。最大限度的保留了原始建筑的形态,又充分利用了原本的空间。

主卧也是半面置物墙,实用又好看!

主卧的卫生间,简洁但不性冷淡。

客卧卫生间,同样也是圆形浴室镜。
干净又充满设计感。

其实,房子不仅仅是一个容器,它还承载着人们对幸福生活的所有想象。
家永远是属于自己的家人的地方。家承载了我们每一天的生活,承载着我们的成长,经历和希望。

我们工作、生活着的这个世界并不完美,甚至现在门外还有乱停的车和很多垃圾,但这并不妨碍我们在这里筑一个温暖的家。
这是一个70年的房子,很多年见证了很多的人,这一刻,它好像新生了。
这就是我们生活的意义,要更好。
- END -