房子装修前,你可以多看一些装修案例和装修美图,国内国外的案例都可以借鉴一下,寻找装修灵感,也许会有想不到的惊喜哦,今天我就来和大家分享一套国外的房子,小户型两房两厅,国外年轻夫妻打造的新家,一点空间都不浪费!一起来看看吧。

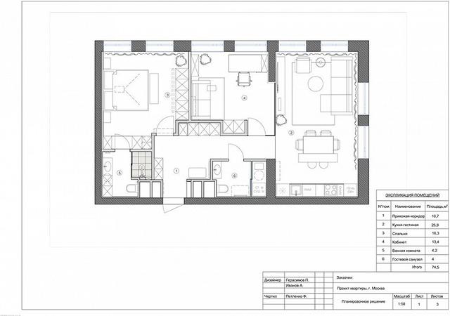
先看看这套房子的户型图,房子面积是74平,户型是两房两厅的。

客厅整体色调是灰色,局部搭配一点亮黄色,地面铺了木地板,看起来还是挺温馨的。

由于客厅面积不大,所以沙发选用了布艺沙发,搭配一张单人椅,再搭配一张小巧的茶几,这样可以让出更多可以活动的空间,显得没那么拥挤。

电视挂在墙上,也是可以节省不少空间,这里值得关注的就是电视后面这一块玻璃墙了,电视后面是一间书房,把原来的墙拆掉,用玻璃来代替,可以显得整个空间更宽敞和光线更通透了,真是一点空间都不浪费!

客厅的另外一边是餐厅和厨房了,厨房采取开放式设计,国外有很多厨房都是这样设计的,国内也是可以参考的,只要选一个吸力大的一点油烟机,并且不要经常爆炒重口味的菜,基本上也是没有什么问题的。

开放式厨房和餐厅之间还有一张小吧台当隔断,这样可以增加吧台的功能,同时又可以起到分区的作用。

从厨房望过去书房,整个空间还是非常通透的,不会因为小户型而显得压抑。

书房里面摆放了一张沙发,有客人来的时候,这里也可以临时变成客房。

在靠窗的地方摆放了一张书桌,这里的视野很好,适合在这里看书和工作。

另外一间房就是主卧了,主卧整体也是灰色和白色为主,地面摆放了一张地毯,显得整个空间很温馨,床尾定制了一个到顶的白色大衣柜,衣柜采用内嵌隐形把手设计,不用担心把手会碰到人,并且整体看起来更加简洁。

主卧里面还带有一间卫生间,卧室的门和卫生间的门都是统一定制的,和旁边灰色柜子同一种色调,不会显得很杂乱。

推开灰色的卫生间门,进去就可以看到一个长条形的卫生间了,一进门处就是淋浴区和浴室柜,马桶在比较里面的地方。

浴室柜上方装了一个镜柜,可以增加收纳空间,浴室柜旁边的位置还做了一个吊柜,底部放脏衣篮,真的是一点空间都没有浪费。

这套房子一共有两个卫生间,外面还有一个公共卫生间,这个卫生间里面的一侧隔出一间洗衣房,把洗衣机和干衣机都放了进去,解决了没有阳台怎么晾衣服的难题。
这套国外年轻夫妻打造的小户型房子,整体看起来漂亮又实用,特别是书房的玻璃隔断,可以让空间看起来更宽敞,让光线更加通透,如果你家也是小户型房子的话,不妨可以参考一下,记得收藏本文哦。