这是一套位于广州的旧房,房子在顶层复式,带有露台花园,总面积加起来大约是300㎡,因房子老旧,所以需要打拆成毛坯重新设计装修。
本屋的常住人口是三代同堂,所以设计的时候要考虑三代人的不同需求,同时业主希望装修能尽可能的简洁方便,以便后期的调整,避免不必要的浪费。
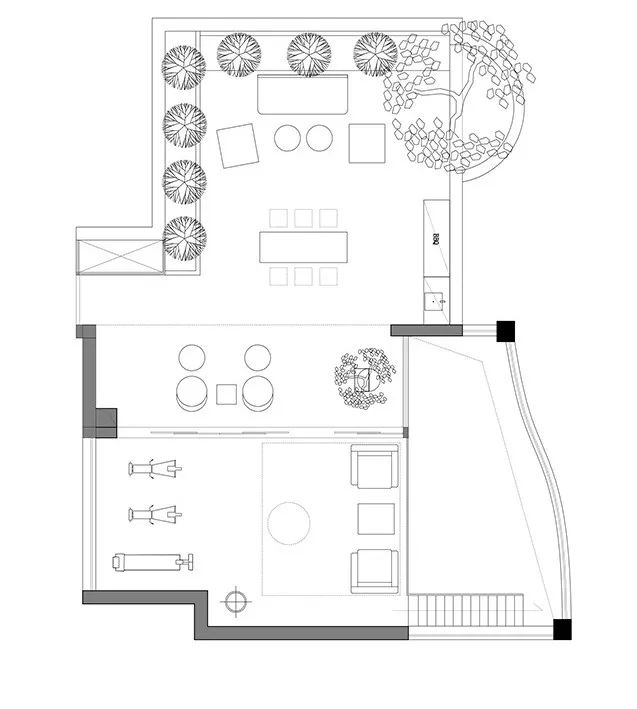
平面布置图

▲一层平面方案。

▲二层平面方案。

▲三层平面方案。
玄关

▲玄关处也是通往二三楼的楼梯位,灰色的地砖,白色的柜体,再搭配原木色的楼梯踏步,简洁中又带有一些暖意。

▲楼梯底下为储物柜,楼梯上半部分做成悬空台阶,也能让光线更好地从室外穿透进来,这样的楼梯设计,虚实结合,实用又美观。

▲这是从玄关左边的柜子看过去的角度,黑色的柜体搭配白色的柜门,在灯光的照射下,显得格外的“安静”。

▲入户门的左侧,就是一整排顶天立地的储物柜,如果不看平面图,很难发现这排柜子里面藏着一个储物间,因为储物间的门与左右两边的柜门做成一致,所以就可以很好地把储物间的门隐藏起来。
客餐厅

▲一楼的客厅,硬装上做的非常的简洁,只是沙发墙上方做了边吊,藏了灯带,左侧做了窗帘盒,使其连成一体,而墙面与天花一样刷成白色,再搭配白色的纱帘,让外面的光线更好的洒入室内。

▲虽然硬装很简约,但是软装却不将就,沙发选用的是写意空间的毛毛虫单人沙发+贝壳多人位沙发,柔软的质感,舒适的体验,无不体现出选品的精致。


▲横向客餐厅,视觉上显得更加的开阔,而对于现代的家庭而言,客厅放电视似乎显得不那么重要。

▲餐厅上方打破了传统,没有装吊灯,也没有装筒灯,整个空间的灯源只有三面天花上隐藏的灯带,所以整个空间整洁,干净是给我的第一感觉。

▲洁白的纱帘,在柿柿如意的衬托下,显得格外好看。
厨房

▲厨房与餐厅之间的墙体拆除,取而代之的是一整面的玻璃推拉门,既满足了煤气公司的通气要求,又能让两个空间融合在一起,光线更通透,互动性更强。

▲厨房里面做了一个大型岛台,可以是操作台,全家围在一起做美食,也可以是餐台,全家围在一起就餐,一个中岛台实现功能多样,满足不同需求。
楼梯位


▲挑高的楼梯位,显得异常明亮开阔,站在此处一楼和二楼的情景映入眼帘,二楼的护栏采用透明的玻璃,让楼上和楼下的互动性更强。
二楼家庭间

▲二楼的家庭间可满足不同人的使用,它是一个亲子活动区,是一个办公区,也是一个阅读区。

▲阳台挑高,做了办公区,高高的落地窗,让室内的光线很好地穿透到室内。


▲一整排的书柜,书籍也能得以归位,而书柜的前面做了一个暗藏的投影幕布,所以在这里大家可以一起阅读,也可以一起观影,给生活增添了乐趣。

▲书柜的左侧是通往三楼的楼梯,楼梯底下做了储物柜,让不常用的物品全都藏起来,保证了家里的干净和整洁。
儿童房一


▲儿童房与外面的家庭区之间增加一扇窗户,不仅可以跟外面更好的互动,也能增加房间的采光。
儿童房二

▲这间儿童房同样是在面向家庭区的那面墙增加了窗户,搭配百叶帘,需要时拉上帘子,保证了室内的私密性。
主卧

▲主卧是安排在二楼过道的尽头处,私密性更强,主卧选用藤艺靠背双人床,清新又自然,再搭配一盏浅色实木落地灯,暖暖的灯光,营造出一个舒适的睡眠空间。
洗浴室

▲分离式的卫生间,双人位洗手台加洗衣机,同时满足了多人的使用需求。

▲淋浴区做了壁龛,方便洗浴用品的收纳。
三楼花园

▲三楼是露台花园,设计成了两个空间,室内的是运动休闲区,主人可以在这里运动,锻炼身体。

▲而这个是室外,可尽情地享受星光,也可以在这养花种菜,实现田园梦,闲暇之余也可邀约上自己的亲朋好友在这里烧烤聚餐,给生活留下美好的回忆。
设计:YIYU INTERIOR DESIGN ,点评:设计馆