
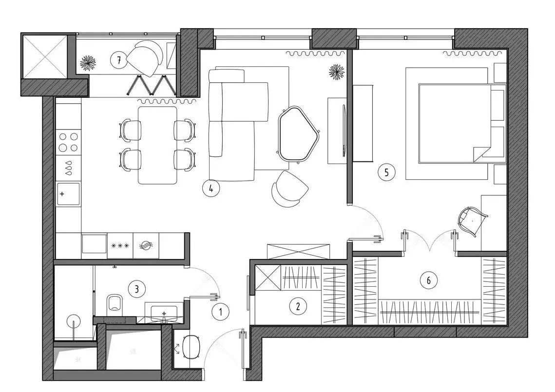
这是来自莫斯科的一所房子,66m²一居室,户型还是很方正的,客餐厅、卧室都朝南,带一个小阳台。硬装的部分,比较简单,墙体以乳胶漆为主,地板是原木色的木地板,其实笔者也建议朋友在装修房子的时候在硬装上尽量简单,搭配主要还是要靠软装。就比如这套公寓,硬装较为简单,软装大部分的都是选用原木色的家具,选一个点缀色,空间感立马就会体现出来。设计师选了绿色作为点缀色,当然绿色不能大面积的用,用的不好也会很尴尬。设计师在客厅选了张墨绿色沙发,还大胆的配了一张红色单人沙发椅作为撞色搭配,很赞。


墨绿色的沙发、红色单人椅、黑色的茶几,形成较好的颜色平衡感。

作为点缀色,也是不能大面积的使用的,这点上设计师把握的很好,用角落绿植的颜色和沙发形成呼应。


沙发的一角

餐厅看向沙发区域

没有过多不必要的家具或者摆饰

开放式的厨房,正面的橱柜以白色为主,另一面做了大面积的边柜,以满足房主对于收纳的需求。同时厨房内壁用了浅绿色的面砖,很好的呼应出主题。

客厅看向厨房的一角

厨房的空间还是很大的,房主大部分时间可以在客餐厅。

四格的橱柜顶到天花板,可以放好多东西。

厨房的一角

黑色的水龙头,和浅绿色相得益彰。

另一面的墙体柜

客厅看向卧室的角落。


卧室看向客厅的角落。

设计师在室内的门,都是内嵌式的,尽量和墙体贴合,没有做门框,不去破坏极简的设计想法。卧室的背景墙,再次点缀了主题色。

有时候如果用了大面的绿色,黑色可以起到很好的平衡作用,可以适当的压一压,比如这面黑色的装饰画。

墨绿色的壁灯。


床品的颜色搭配也很舒适。

卫生间做了干湿分离,原木色搭配浅灰砖。

干净舒适。
