近期新政房贷利率降低,有很多朋友开始买房选房。后台也收到了很多粉丝咨询,关于如何选好户型的问题;索性,咱们今天就来出一期选房型的专题。
准备买房的小伙伴们,看过来!含泪为大家总结这8个挑好户型的经验,看到等于赚到!

01
看懂户型图
选房型,第一步,是要先看懂户型图,不被糊弄最重要!
1、户型标识
基本的户型标志有这些↓↓↓

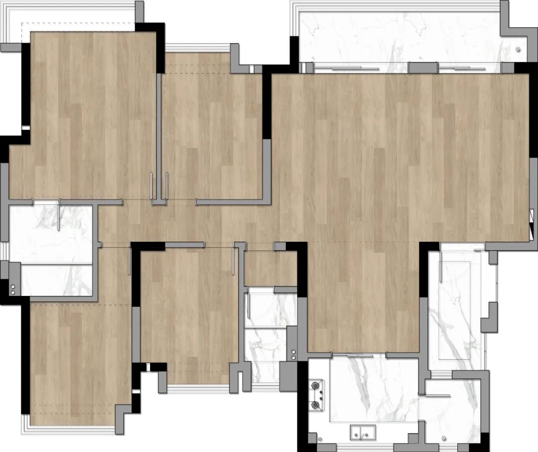
2、实际户型图
单看户型标识可能有点陌生,放到户型图里去看↓↓↓
认识各种户型图标识,才能防止被坑!其中最重要的一点是就是分清楚承重墙与非承重墙。
承重墙=不能拆,非承重墙=能拆,这决定了设计改造的可能性,尤其重要。
●最简单的分辨方法就是看户型图,通常承重墙是纯黑色的线条表示,非承重墙为浅灰色或白色的线条表示。
●如果户型图中看不出来,可以去现场看厚度,承重墙的的厚度通常>24cm。
●或者选择用钢筋检测仪检测,承重墙内部有钢筋。

02
户型方正
选房子,要选户型方正的,也是买房最常见的一个词;那么什么样的户型才算方正呢?有人理解为方方正正↓↓↓

但实际上,户型方正不是指整体的户型是正方形或长方形,而是:
①大致轮廓接近方形即可。
②最重要的是,内部每个空间方方正正,不要有异形空间。
比如,这样的↓↓↓
其次,空间内的开间进深比例在4:6为最佳。
PS:开间通常为房屋东西墙之间的距离,为采光面;进深则是垂直开间。

03
面积均匀
即便整体户型是方正的,也没办法保证内部面积分布比例合理,比如经常有大客厅小卧室这样的户型,部分空间过大利用不上,部分空间又过小舒适度低。所以看房子时,内部空间面积比例合理也很重要。
建议:
●不能光看户型图,要去房屋现场看。
●其次,合理不是说每个空间的面积一样,而是比例合理。

04
坐北朝南
即是选择楼房的朝向。

朝向优劣对比:正南>东南>西南>东>西。
05
南北通透
坐北朝南不是南北通透吗?这还真不是!
坐北朝南指的是房屋的朝向,南北通透指的则是房屋的通风,要南北两侧都有窗户且形成通风对流才算南北通透!

比如有的中间户朝向正南,但是北侧对着电梯间,没有窗户,当然算不上南北通透。

△对流通风
如果有条件,最好的当然是对流通风,其次是南北都有窗户但错落开不对流;后面就是相邻通风,最差的是单向通风。

△相邻通风
06
动线合理
动线,即是行动的路线,家居动线分为三种:居住动线、家务动线、访客动线。
家务动线:通常包括做饭、洗衣服、打扫卫生。
访客动线:客人来访的动线,通常在客餐厅、客卫等公共空间。
居住动线:即是咱们生活中常活动的路线。简单来说:动线越短越好,三条动线相交越少越好。

△图源网络
07
动静分区
动区:客厅、餐厅、厨房、阳台
静区:卧室、书房等
两者分开,才能不互相打扰。

08
无暗间
之前有人问,卫生间的通风井可以代替窗户吗?
当然不能代替!窗户的功能除了通风还有采光,这些都是居住舒适至关重要的一点!

所以在选户型的时候,一定要选择每个空间都有窗户的房型,千万不要选暗厨暗卫!除了采光通风不好,后期改造成本也高!

买个好户型等于省钱+赚钱,不是我诓你,别等到买完了再后悔。关于选户型,就分享到这里了!看到这里的小伙伴,插播一则小福利!如果小伙伴们在买房的时候,已经看好两三套房确定不下户型,那么也可以来飞墨家约设计师面谈,从空间设计规划的角度来选择合适的户型哦~