| PART 1 |

△前宸效果图
万科前宸预计8月中旬首开,北部新城又将迎来一新红盘。
由万象城“镀金”后的北部新城,不断涌现着“摇不可及”的红盘,从幸福里到璀璨澜宸、璀璨澜庭、沁澜、运河云庄再到前宸,北部新城限价天花完成了逐步呈现自身价值的“三级跳”。
而“第三级”便是以前宸为首发的3.05万元/㎡,北部新城正式进入3字头的行列。
明确上涨均价的前宸值不值得买呢?若是与运河云庄相撞,又该选择谁呢?
首先,跟着房叔了解一下前宸的现场情况。
| PART 2 |

余政储出〔2020〕4号地块自挂牌起便备受关注,东至彩虹河、南至郁宅路、西至杭行路、北至桥良路,即是在沁澜正南侧。
这也意味着此地块与万象城之间直线距离仅850m,既可进而享高端商业商务资源,又可退而守自然舒适景观资源。
此地块规模也不小,占地面积约59375㎡,出让建筑面积约136562.5㎡,容积率2.3。
今年3月上旬,余政储出〔2020〕4号地块正式竞价出让,最终由杭州名城博园置业有限公司(万科)以277329万元竞得。
从起拍价的225329万元竞拍至277329万元,溢价率达到了23.08%,楼面价达到了20308元/㎡。
而万科已不是第一次入驻北部新城了,从毗邻余杭拱墅分界线的北宸之光,到与万象城邻居的杭宸,万科对于北部新城寄予了不少信心。
万科竞得杭行路东、桥良路南地块后,将“宸”字辈继续延续,将地块命名为“前宸”。
楼盘处在10号线吴家路站和4、10号线杭行路站之间,与两站步行距离约在640-780m,驾车则可通过西侧的上塘高架,交通颇为方便。
楼盘南侧有杭行路小学(运河校区),西南侧有良渚二小(运河校区),而在楼盘西南角规划了一所12个班的幼儿园。
而医疗资源则规划有华润国际医疗中心、树兰国际医学中心、邵逸夫医院大运河分院,三所三甲医院均已在建,与楼盘之间直线距离基本在2.5km范围内。
商业配套则是楼盘的“拿手好戏”,距离最近且最重磅的万象城(在建)与楼盘直线距离约850m,此外还有星创城(在建)、杭行荟等,而且在楼盘东侧还存在一块商业用地。
| PART 3 |

楼盘规划了17幢建筑,其中2-16#楼为15-17F的可售住宅。
此外,东南角1#楼为商业、物业经营用房,西北角17#楼为公租房,单独设立了公租房用户的出入口。
而楼盘正大门设在北侧,此外,人行还可通过西侧和南侧两门,车行还可通过西侧出入。
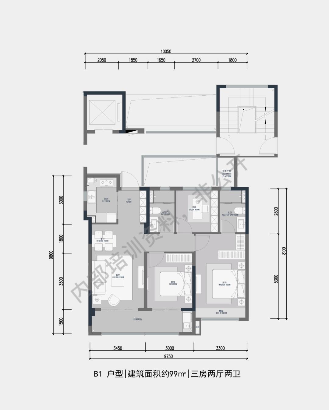
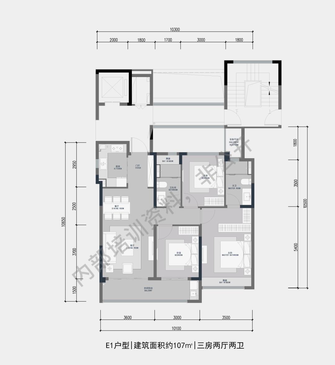
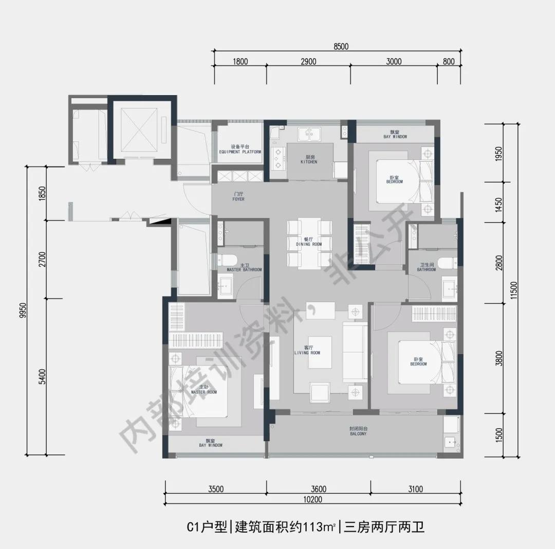
户型设计有约99㎡三房两卫、102㎡三房两卫、107㎡三房两卫、111㎡三房两卫、113㎡三房两卫、128㎡四房两卫和139㎡四房两卫共七种户型,其中除8#、11#楼为2梯2户外,其余为2梯4户。

前宸最大的特色在于,土地出让之时,已有公建化外立面的规定要求,因此前宸为包阳台设计,外立面采用的是中空low-e玻璃+金属铝板+金属漆。
同时,由于容积率2.3相对较低,而且没有高低配,前宸做到了前后三重庭院,所有房源的景观和采光均好性很强,内部园景和配套值得期待。
内部将配套有中央绿地、羽毛球场、环形跑道、儿童游乐场所、“月光宝盒”下沉庭院等。
相信未来前宸将会是北部新城最靓的仔。
据置业顾问特别提醒,前宸东侧会有加油站点规划的不利因素。
预计8月中旬首开2#、3#、5#三幢,除约139㎡户型没有涉及外,其他户型均会在首开中推出。
楼盘售楼部设在原杭行道售楼部,同时开放了约128㎡带软装样板间。




滑动查看更多
从公示的装修明细看,前宸备齐中央空调、新风、地暖三件套,3M净水,方太油烟机、燃气灶、消毒柜等。

楼盘整体体量不小,东侧滨水能给居住环境加分不少。周边安置房、汽修厂等城市界面较一般。

楼盘南侧即为杭行路小学,东南侧为已交付的滨江万家之星及海德公园,西南侧可以看到万象城。

楼盘东侧金恒德汽车城及大片规划用地。

楼盘西南侧即为目前良渚新城国际商务区核心区规划用地。

楼盘南侧为郁宅路,往西可至上塘高架,目前由围挡阻挡。

杭行路小学与楼盘之间仅一条郁宅路相隔。

楼盘东侧彩虹河,两侧树木已是郁郁葱葱。

楼盘北侧桥良路,与已售罄的沁澜一路之隔。

桥良路往西可前往金恒德汽车用品城。

楼盘东侧杭行路,为板块内主干道之一,目前车流已是不息。

| PART 4 |

约99㎡三房两卫户型 →
| 优点 |
①三开间朝南带大面宽阳台,舒适性较好
②全明户型
③U型厨房,操作性好
| 缺点 |
①无明显缺点

约102㎡三房两卫户型 →
| 优点 |
①边套户型,通透性较好
②全明户型
③U型厨房,操作性好
| 缺点 |
①北侧书房空间较小

约107㎡三房两卫户型 →
| 优点 |
①三开间朝南带大面宽阳台,舒适性较好
②全明户型
③U型厨房,操作性好
| 缺点 |
①无明显缺点

约111㎡三房两卫户型 →
| 优点 |
①边套户型,通透性较好
②全明户型
③U型厨房,操作性好
④双阳台设计
| 缺点 |
①无明显缺点

约113㎡三房两卫户型 →
| 优点 |
①三开间朝南带大面宽阳台,舒适性较好
②全明户型
③U型厨房,操作性好
| 缺点 |
①无明显缺点

约128㎡四房两卫户型 →
| 优点 |
①三房朝南,舒适性较好
②全明户型
③U型厨房,操作性好
| 缺点 |
①无明显缺点

约139㎡四房两卫户型 →
| 优点 |
①四开间朝南带大面宽阳台,舒适性较好
②全明户型
③U型厨房,操作性好
④小储藏间设计,实用性好
| 缺点 |
①无明显缺点
| PART 5 |

北部新城的价值,房叔曾在北部新城瞰杭稿件中有所阐释。
自桥西基本完成开发,申花空间不足,拱墅核心区发展面临着向北推进的必然选择。
而当向北进一步推进之后,拱墅与余杭已是边界难分,相互融合。
得益于拱墅向北推进,又有自身重磅综合体在建,北部新城的预期价值已不是当初杭州菜篮子形象的勾庄。
况且,还有良渚新城国际商务区核心区方案已出,城北新中心已在路上。
而毗邻万象城和良渚新城国际商务区核心区的万科前宸是目前的最佳受益者。
虽然前宸的限价已升至3.05万元/㎡,但其周边二手已是3.1-3.7万元/㎡,二手房是最能体现市场价值的,前宸的预期前景仍不弱。
最优之选的幸福里已是往昔,仍在2.9万元/㎡的勾阳路上盖映月璟园仍未有开盘消息。
而由德信大家联手打造的运河云庄是最有可能与前宸撞车的,两者皆与万象城仅一站之距,且与地铁之间距离也均不远。
对购房者而言,两者之间最直接的差异在于价格,1500元/㎡的均价差,按最小面积约99㎡计算,两者总价存在十几万的差距,运河云庄在价格上还是略占优势。
而在规划上,前宸周边有良渚新城国际商务区核心区,运河云庄周边有运河首展区,两相比较,未来想象空间自然是商务、自然景观、地标建筑的前者更有期待值。
若是偏爱运河风光,毫不疑问参与运河云庄的摇号;而若是被包阳台的公建外立面、没有高低配的丰富内部三重园景吸引,前宸自然是那只“鹤”。
愿在看的你能中心头之好。
-END-

文/阿寻 编辑/阿寻