闲言少叙,首先来的是我这次装修的价格清单,15万元120平米的简欧风格装修。可以说是非常详细了。 关于设计中最重要的一点就是下水管道和承重墙的位置。如果不是业内人士,强烈建议按照开发商的预留管道进行布局。比如马桶,现在有位移器可以挪动,但是会极大增加未来马桶堵塞的概率。建议慎重。
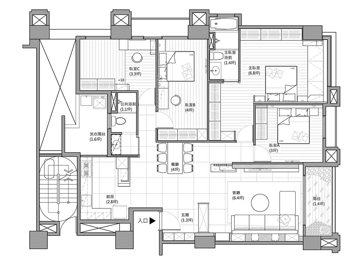
户型图

硬装价格给大家参考:我们这装修公司全包的价格在900元一平米(建筑面积)。120平米大概是10多万,但是用料看似名牌,却都是最最低级的。比如马可波罗瓷砖。是三四十的抛光砖,立邦漆,是300一大桶的漆。质量不会有太大问题。但是对于注重品质的家庭,要升级品质就要加钱了。这个要注意。
客厅

地面的话应该是大头了,安装费用是20-30一平米。总共得4-6千。地砖地板价格差距极大。价格和选购也可提供参考。(小窍门,很多瓷砖大厂有许多品牌生产线相同但是品牌不同,价格差距很大,具体可以百度)。
书房

书房比较的简单的装修布置了一下主要是,把功能做到位就好了。墙壁上直接用的是铁艺置物架,摆放上手办书籍也会是一种很好的装饰。
餐厅

喜欢餐厅的简单设计胡桃木的餐桌搭配铁艺的支架餐厅有种工业风格的感觉,在桌子上摆放一盆绿萝给整个餐厅添加不少的活力。

选择简单的木结构家具,轻现代的皮质感和弧形设计,更贴合人体,满足一家人的日常正常使用。

板材170元×50块+切割封边1500元+安装2800元+柜门2000元。共计14800元。包括:两个6平米的衣柜,一个房间的榻榻米十几平米,一个长桌,一个玄关柜,一个鞋柜。
卧室

电器都是网上买的,唯一一个实体店买的就是主卧空调,因为这个颜色不供线上,心痛。。说到颜色,同一个型号的冰箱,颜色不同线下贵1200块。大家多注意。

次卧室

卧室

几间卧室装修布置都差不多,风格谈不上,最主要的是能够提供一个安静舒适睡眠环境。极具造型感的书架设计,床头柜和书桌的整合也与之对应。
卫生间
