
三代同堂的家庭里,隔代相处有代沟?烦恼个人与家庭之间几乎是负距离,没什么个人空间?
不仅是在视觉与实际功能的使用上思考,如何达到个人与家庭的平衡,也是我们在给大家庭设计时必须考量的因素。
外表柔美与坚固实用可以兼具吗?
有了家庭之后,就只有“我们”没有“我”了吗?
年轻一代与长辈之间的包容与进退,在这个家的格局动线与风格材质之间得到完美和解。
面对着风景优美的杏林湾,这个家位于湖与海的交界处,也是每年候鸟迁徙的地方。
张小姐带着一家人的需求前来进行设计咨询时,表示希望协调长辈的审美和实用需求的同时,也可以保留自己偏爱的浓郁强烈的视觉元素,并大胆地提出使用不锈钢作为家中所有柜体的材质。
——
左边遇见Family
和家人一起动起来

Left
公共区域
Public Area


进门后的玄关,作为一大家人进出的重要区域,也处于整个家的中间位置,视觉和使用上都拥有干净的体块与流畅的动线。
收纳方面,利用柜体的不同朝向与进深,进行衣物鞋子与杂物的收纳规划。门边的侧面鞋柜由于进深较窄采用抽拉式放置常用鞋,而换鞋座旁的柜体作为换季与不常穿鞋子的位置。

左侧柜体的黑色部分为换鞋座方向的置物架,可以随手放置出门小物,黑色部分上下柜子的高度刚好可放置女主人的长靴等非常规尺寸鞋子
进门后,正面右侧的柜子中规划了全家人次净衣与包包的区域,作为家中生活动线的交界处,不论是回家还是出门动作都可以一气呵成。

玄关的窄柜采用双面打开设计,同一个柜子可以同时满足玄关与客厅面使用。


地面采用白色瓷砖与木地板进行玄关与客厅区域的分隔,弧形线条呼应上方的弧形角度
面对客厅的入口,以不锈钢材质弯曲出的优雅弧形拱门弱化了横梁,也带给家人归家的仪式感,金属材质所达到的柔和弧度优雅满分。


进入客厅后即可感受到家中绝佳的光线与视野,客餐厨联动的公区使得家中的聚会活动形式更加丰富。
客厅的背景墙以展示架的形式出现,不看电视时可作为陈列区。

墙上自由的黑色线条充满想象,可以意为“Love”,也可以是“live”



客厅的丰富小细节,细节处的小弧呼应着结构上的大弧
客厅与阳台之间的墙体让公区自然形成环绕式动线,可移动式沙发多面调节的使用方式让家人不论身处哪个区域都可以面对面交流。



电视柜与投影仪柜的结构图,投影仪柜完美融入电视柜的绿色与黑色体块中,其中绿色柜体仍可以作为正常抽屉使用
喜爱观影的一家人,爱看电影但又不希望电视成为客厅的主角,为此女主人与设计师苦思冥想了一周后,终于得到一个两全其美的方案。
将激光投影仪放入上方为光学玻璃的滑动式柜体中,平时严丝合缝地嵌入在电视柜里,使用时即可自由挪动位置,柜体上方嵌入的光学玻璃透光率高达99.9%,实现了完美的观影体验。

步入阳台后,这个5m的长条空间分为书房与观景阳台,由不锈钢弯曲而成的天花曲线,连接墙面与屋顶形成强烈包裹感,也弱化了墙体的存在。
大面积靛蓝与孔雀绿的用色与客厅形成对比,让每一个进入阳台空间的人都产生了意外的冲击感。
书房区域设置了一侧隔档作为分隔,增加了隐私性与包围感,同时又保持了与整个公区的对话。

另一头阳光下的植物休闲区,让一家人在学习与工作中可以得到片刻的放松



餐桌椅使用了胡桃木与金属材质的拼接,十分契合家中气质
书房连接着沙发与餐厨区域,在宽阔的横厅中选择长条餐桌作为一家人的用餐地,让家人们可以面对面进行交流。


岛台的外立面使用波浪板,为整个家增加了一丝现代感
岛台特意增加了水槽与电陶炉,平时男女主人简单用餐时,直接在电陶炉上加热或蒸煮后吃饭,大大提升了便捷度与用餐的舒适度。


厨房使用了透明滑动门,防油烟的同时也增加了视线的穿透性。厨房进门右手边的小电器放置区也可随手放置菜品,将物品归置到对面的冰箱十分方便。

水槽与灶台分别设置在L形台面的两边,便于洗切炒的动线也保证了干湿分离。

厨房的拐角区域是原本的储藏间,根据家人的烹饪习惯打通之后,现在是女主人爸爸的炸鱼区域,未来就可以在这里给家人做拿手菜啦!
——
向右独处
自在不孤独

Right
私密区域
Bedroom Area

两面采光的儿童房视野开阔,以木质色调为主的房间丝毫不孩子气,给未来留下了许多可改动的空间,同时实现的功能也十分多样。


一进门最为抢眼的架子鼓,搭配墙上的滑板壁灯带着音乐男孩儿满满的酷劲儿。
打鼓时搭配专业鼓垫加消音器,孩子在家也能自由练习,不会打扰到邻居们。


丰富又整齐的玩具收纳,是个幸福的小男孩儿了
床头另一侧使用床头柜加收纳柜的组合,便于多种杂物与玩具的收纳,色彩缤纷的家居搭配增加孩子自我组合的乐趣,加个豆袋变身孩子的小小世界。


书桌放置具有包围感的内凹角落,利用墙上收纳放置多种多样的学习用品,洞洞板让物品一目了然,便于孩子拿取物品。



两侧精致的琉璃壁灯,营造温柔的睡前时光;笔触斑驳的褐色系缎面窗帘沉静又耐看

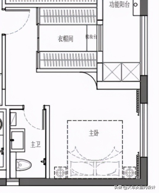
充满油画质感的赭石色主卧空间里,分为衣帽间、卫生间与睡房三大区域。
经过作为简单洗漱与化妆使用的卫生间与相对独立的衣帽间之后,进入油画风浓郁的睡眠区域,自成一派的动线赋予主卧以仪式感。


置物柜上方使用了透光混凝土预制板达到星空效果,引入了生活阳台的光线又不会过于刺眼
步入式衣帽间采用三面柜体设计,根据男女主人的拿取习惯进行区域划分。
衣帽间位于进门的位置迎合了女主人回家与出门前的更衣动线,同时配合主人身高设置了1.1m高的小物收纳柜,可放置各种配饰与美容品库存,在卫生间化完妆之后即可在这里完成最后的出门动作。


卫浴间整体地板材质具有防滑及抑菌功能,莲蓬头下的座位可以坐着洗澡,对长辈也十分友好

家人主要使用的公卫设置成三分离式,将洗手台特意设置在玄关旁便于家人回家后洗手。
卫生间内隐藏着一个集泡澡、淋浴、保温与烘干衣物一体的整体全日式卫浴间, 整体采用模块式搭建3天即可完成,但要注意在砌墙阶段就需要预留位置与沉降尺寸。
据女主人说,这是个在上海的朋友家试用之后感觉自家必须来一个的卫浴间。
——
零碎角落大作战
Pieces Of Home
畸形角落
01 利用柜体,拉平垂直面


由于厨房台面加宽形成的内凹区域,利用透明收纳柜拉平墙体垂直面,作为放置常用杯具兼展示的区域再适合不过啦。
02 利用柜体,填充门后空间


儿童房的房门在右移之后产生的门后空间,使用玻璃书柜增加收纳量,不浪费一丝空间。
03 用储藏间平衡开阔的转角处


开阔的玄关走廊区域中,藏着家中的“王炸”储物间,仅1.3㎡的可步入式空间,成为了家中所有大件物品的终点。

▲原始结构图
房屋优势 | 采光与通风十分优秀,生活动线清晰,周边环境风景优美
房屋缺陷 | 公区偏大而房间偏小,畸形空间难以利用,卫生间和阳台数量过多

▲改造后平面图
分 | 左公区右私区,生活动线清晰明了
减 | 减少卫生间与房间数量
合 | 提高私区生活品质,合并畸形角落,增加收纳与享受型功能
整个家在改造后左右分区十分明显,公区作为家人聚集/朋友聚会的活动场景使用,私区则作为每个家人的小世界存在。通过交界处的玄关与公卫连接动静区域,生活动线顺畅明晰。
项目位置 / 莲花新城
设计团队 / 钟淑敏 石杰
设计面积 / 155 ㎡
装修花费 / 90 w (不含家电)