相信很多人都有这样的梦想:想要一个超大主卧,有大大的衣帽间,有独立小书房安静不受打扰,有休闲小憩的角落……在家的每一刻都得到放松,我的地盘我来做主,我的家住出我想要的样子!
可无奈被户型限制,拿着户型图也不知从何下手……那么接下来要看仔细了哦!

今天就为大家带来<重点小区双清苑E4户型的三种不同需求解析>,保证让你感到惊叹!把家每一处空间充分利用,变换出适合自己的居住的模式,生活品质UP UP UP,将属于自己的独特气质在家居中绽放!
双清苑地处北京市海淀区月泉路南200米,环境优美,交通便利,周围配套设施齐全,管理完善,门禁严格,是一个大型成熟社区。

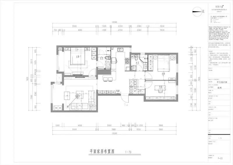
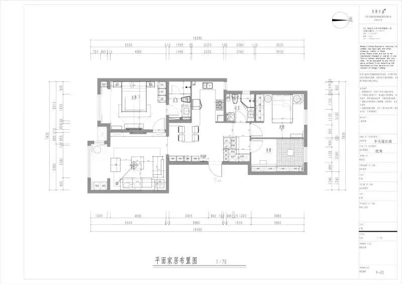
户型解析
下面是E户型原始结构图

从入户门开始
右手的小空间是地暖的设备间
剩下的都是餐厅区域
就总体空间来说比较方正
也很宽阔

北边较小的那个卧室
进门处这个空间虽然很大
但是不实用
空间上是个很大的浪费
除以上两点外
其他空间还算是很不错的
E4户型结构可调整空间有
门厅空间墙体
小卧室空间墙体
及卫生间厨房部分墙体
通过对房屋不同居住需求
对空间进行不同的整改
做了三种方案
供参考

方案一

这一种把厨房和餐厅餐桌连为一体
适合年轻人居住
平常做饭不是特别多
餐厅餐桌选择卡座形式
让餐厅不止为餐桌形式
让这个空间既能偶尔办公


【图片仅供参考-简欧】
拆除掉设备间的墙体
做了定制到顶的柜子在这个地方
把设备完美的隐藏到柜子里面
这样就解决了进门挂衣换鞋的问题


【图片仅供参考-简欧】
在不影响卧室正常使用的情况下
我们把北边的两个卧室门向里移了一点
解决了小卧室进门空间浪费的情况
还增加了一定的储物空间

方案二



【图片仅供参考-新中式】
这一种也是敞开式厨房
厨房和餐厅连为一体
但餐桌还是选择有仪式感的摆放形式
让空间敞开了
但餐桌依然正式



【图片仅供参考-新中式】

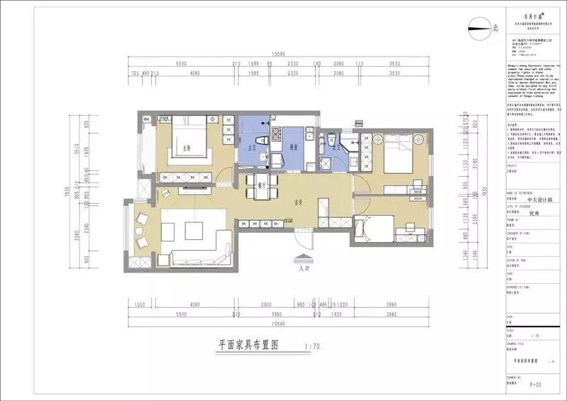
方案三
下面这方案为比较规矩,实用
从收纳,生活的便捷性等
来考虑的一稿平面布置图

进门右手边考虑了
衣帽柜鞋柜
满足正常家里人
平常鞋的收纳和临时的衣服收纳
及进门包和钥匙临时放的位置

鞋柜后身做了大的柜体主要以收纳大件物品
如行李箱等
两个卧室门改为同一平面
让门和门之间的间距更大些
这样三个门就不会特别紧张
厨房做了暗藏式推拉门
以方便厨房里冰箱等的使用方便性



这是餐厅这个区域的现场照片
餐桌选择了标准四人桌
餐桌对面做了整排的餐边柜
保障了餐厅的收纳
也可以收纳一些小件物品


北面两个卧室一个为次卧一个为书房兼卧室来使用
这个空间根据不同的使用者
还可以把整个空间打通作为一个套间形式
书房和卧室通的

两个卧室都是正常的使用布置
没考虑浴缸
如果有浴缸需求可以在主卧加上
浴缸要看咱使用的程度
如果一个月用不了一次的话就不建议用了
毕竟每天都要洗澡
站在浴缸里淋浴是不太舒服和方便的


厨房考虑到家里面会有很多的厨房用品
电器及粮食等等
尽量多的考虑了储藏空间

主卧考虑了两面的衣柜及储纳柜
飘窗上考虑了薄薄的抽屉
为的是高度更合适
也更美观



客厅正常布置的
阳台考虑了休息休闲空间
靠边墙体做了收纳的柜体
柜体上面考虑了晾衣空间




根据我们想要的风格
和喜欢的颜色
来去搭配自己的新家

业主提问
(此问题为真实业主所问)
Q
请问厨房不用推拉门的话,内部布局需要如何设计比较好?

东易日盛设计师刘亚林
那就正常的平开门,可以向右开,不影响的,就是用右面台面时需关门。
Q
阳台储水罐是要保留还是去除?

东易日盛设计师刘亚林
保留太阳能热水器用定制储物柜包住,既能储物也能收纳还能维修储水罐,在增加厨房燃气热水器,保留太阳能以及燃气热水器功能,2者都能使用,到时候加个阀门既能使用太阳能也能使用燃气热水器。
Q
咱们的木作产品系列很多,都用的什么板材?

东易日盛设计师刘亚林
内门是用多层板;橱柜,衣壁柜是实木颗粒板;静电产品是密度板。
Q
拆掉太阳能热水器,是否也可拆掉与之联系的所有管线?

东易日盛设计师刘亚林
专业建议不能打。