各位粉丝:
昨天【京房字】推送了东五环将建3千多套公租房的消息,很多粉丝都在留言中询问,自己所在的区何时能有公租房配租。
这不,门头沟区的粉丝们有福啦!

今天,北京市保障房建设投资中心发布公告,
今年门头沟区共有492套公共租赁住房面向保障性住房申请家庭分配。并公布了配租方案。
先说说房源情况。
492套公租房,分别为何各庄公租房(永定镇MC00-0015-0059等地块R2二类居住用地配建公租房14#楼)373套,安康小区119套。
1、何各庄公租房
项目位置:门头沟区永定镇
装修标准:精装修
租金单价: 42元/建筑平米·月(不分楼层、朝向)(暂定价)
价格说明:租金单价中包含物业费,不包含供暖费、水费、电费、燃气费、电话费、上网费、有线电视初装费及收视费等。
供暖方式:小区集中供暖。
户型面积:约41.82-41.86㎡(小套型、一居)、约 59.02-59.70㎡(大套型、二居)。小套型242套,大套型131套。
也就是说,租一套一居室,每月租金大约1760元。租一套两居室,每月租金大约2480元。
入住时间:预计2018年12月底
2、安康小区
项目位置:门头沟区滑石道116号
装修标准:精装修
租金单价:13.4元/建筑平米·月(不分楼层、朝向)
价格说明:租金单价中包含物业费,不包含供暖费、水费、电费、燃气费、电话费、上网费、有线电视初装费及收视费等。
供暖方式:电取暖
户型面积:约40.01-41.23㎡(小套型、一居)、约49.25㎡(中套型、一居)、约50.26㎡(中套型、两居)、约60.07-64.91㎡(大套型、两居)、约75.16㎡(大套型、两居)、约85.43㎡(大套型、三居)。小套型76套,中套型10套,大套型33套。
租一套最小的一居室,每月租金仅仅536元。租一套最大的三居室,每月租金也仅1145元。
入住时间:2018年6月
❖
再说说那些人可以配租

1、何各庄公租房配租对象为于2014年12月31日(含)前取得公共租赁住房配租资格,且尚未配租配售的门头沟区保障性住房备案家庭。
2、安康小区配租对象为于2017年11月27日(含)前取得公共租赁住房配租资格,且尚未配租配售的门头沟区保障性住房备案家庭。
安康小区本次配租为意向登记,通过申请人登录网站自行登记的方式进行。
申请人可自行登录北京市保障性住房建设投资中心官网(http://www.bphc.com.cn/)进入业务办理-快速配租登记-安康小区快速配租登记系统界面,按照相应提示进行操作。
或者通过所在街道住保窗口代为申请意向登记。(申请家庭可登录北京市住房和城乡建设委员会http://www.bjjs.gov.cn进入住房保障链接在备案结果查询处查询家庭备案编号。)
注意,安康小区意向登记时间为11月28日—12月4日(共计7天)。
而何各庄公租房本次符合配租对象条件的家庭全部直接进行摇号,无需意向登记。在保障房中心的官网上可以查询到摇号名单。
非京籍家庭要问了,这次为什么参加配租的都是京籍家庭,说好的“新北京人”配租呢?
答案也有了。
公告里明确表示:为非京籍配租房源将在后续永和新苑房源项目配租公示中另行公告。

最后再送上福利。
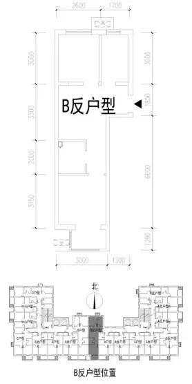
何各庄公租房的周边配套和户型图。
公交路线:
周边公交线路纵横,890路、 931路、960路、964路、 965路、 981路、 994路、 m02路、快速直达专线107路、快速直达专线139路、快速直达专线68路石龙工业区站,959路、977快、977路冯村大桥站。
自驾路线:
路线1:沿阜石路西行,至双峪路(第一个红绿灯),左转南行约3km,至冯万路右转即到。
路线2:沿莲石路西行至石门营环岛,右转驶入石龙南路,北行约1km,至冯万路左转即到。
小区内配套:配套商业、社区服务中心、幼儿园等。
周边公共设施:
教育资源:周边包括北京实验二小永定分校、首师大附中永定分校、北京八中京西校区、大峪中学等教育资源。
休闲购物:365plus商场,冯村商业街、熙旺中心等;
医疗保健:京煤集团总医院、门头沟区妇幼保健院,门头沟区医院等。
户型介绍:共计8种户型


建筑面积:约41.82-41.86㎡
户型朝向:南、东、西


建筑面积:约59.02-59.16㎡
户型朝向:南、北


建筑面积:约59.68-59.70㎡
户型朝向:东南、东西


建筑面积:约59.67㎡
户型朝向:东、西、北
[京房字]系列平台(包括但不限于微信、微博、*今条头日**等)所采用信息均来自北京市政府、北京市属相关部门、部分非市属部门及可信任媒体等公开渠道;数据均来自北京市规划与国土委员会不动产登记事务中心、北京市土地整理储备中心、北京市住建委交易管理网、北京房地产业协会的公开数据统计与分析;所形成的报告、分析、研究成果或观点均由[京房字]相关后台及专家组成员编写,其准确性及预测性的观点,仅供参考。
[京房字]系列平台版权归[京房字]所有。[京房字]保留所有权利,未经本微信公共号系列平台正式许可与授权,任何个人或组织只可原文转发,不得以任何手段或形式窃取发布。如引用刊发,须注明出自[京房字],且不得进行有悖原意的删节或修改,否则[京房字]将保留随时追究其法律责任的权利。另外,平台用户在[京房字]留言视为同意:[京房字]在不泄露个人信息(包括但不限于姓名、头像及其他隐私信息)的前提下,以部分或全部引用、截图等形式在【京房字】平台(包括但不限于微信、微博、*今条头日**等)运用。
[京房字]刊载信息内容或观点表达,并不构成对房地产投资、买卖的咨询建议,任何人因使用本平台所涉及信息、观点而导致直接或间接的投资或买卖损失,[京房字]不承担任何责任。