
项目档案
项目名称: 合肥旭辉·翡翠江来
项目地点: 安徽省 合肥市
开 发 商 : 旭辉集团
业主团队: 谢凯 章小平 邹翔 盛立丰 杨晓光
张政 丁灿 凌丙炎 费翔
建成年份: 2019
景观设计: 山水比德
室内设计: ENJOYDESIGN燕语堂
旭辉·翡翠江来坐落于安徽省合肥市肥西县城的西北处,其住宅产品定位面向当代80后与90后人群,这种定位自然牵动着当下的一个社会问题。当以家庭的维度看待80后与90后,不仅他们是第一次成为父母,这类成长在互联网、多元化时代的父母也是中国社会第一次遇见。



我们如何教育下一代人,将决定社会未来的模样。

中国人的生活以家庭为本位,建筑提供场景,建构起父辈与子辈的对话,这种对话塑造着我们的下一代。而当我们反复思索儿童教育时,问题自然回到了人的天性之中,这成为旭辉·翡翠江来幼儿园的设计基点。


如果说上个世代的人,在教育子女方面尚有悠久的社会传统作为指导,在今天,这种指导已经很难保持权威性,我们正在经历全新的经验。旭辉·翡翠江来幼儿园,作为旭辉集团第六代产品的集中表现,研习蒙台梭利的教学理念,以儿童为中心,创造自我探索的景观,开启建筑营造向少儿教育的探索。

▼形体生成过程


▼透视分析图

人是一种智慧生命,出于保全自我于是建立了社会,却又向往自由。在儿童的成长环境中,因为心智的不成熟,需要比成人更多的规范,但又要尽量释放他们的天性,避免规范让生命产生变形。
▼实体模型

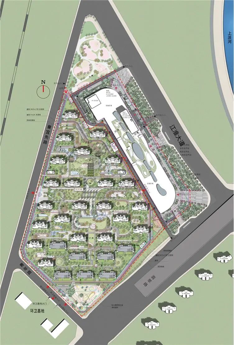
▼总平面图

幼儿园以解放天性为设计内核,提取自然、成长、奔跑、四季、树与阳光等关键词,以交互、友好、成长为设计原则,融合儿童成长功能所需与场景呈现,创造了兼备亲和力与现代时尚的儿童成长天地。

从天空向下看,建筑呈现为一个三角形的稳定形状,并曲化了三个顶点的轮廓,建筑气质变得柔和而趣致。

但三角形并不仅仅是平面,幼儿园是线性的,也是立体的。建筑整体如同海螺纹路般螺旋向上,描绘儿童的成长轨迹,通过功能逐层退台设置、增添连续坡面屋顶、扩展室外娱乐露台,建筑仿佛母亲的双手环抱中庭,为孩子提供自由而安全的成长环境。

基地位于合肥省肥西县翡翠路与青年路的交叉路口。翡翠路是高速主干道,青年路路口有着当地生态环境局,为了避免这些场地周边的消极因素对于幼儿园的使用产生不利影响,整体设计采用了围合式的空间布局。
▼幼儿园俯视图,采用围合式的空间布局

为了保证孩子们活动中所需的日照时间,北侧朝南的3层体量被设置为12个班级的主要教学空间,两侧逐渐跌落,分别附以其他功能用房。整体形体在不同的方位再由不同高度的坡道整合,串通二层以及三层的屋顶,创造了一个连续的屋顶活动平台。这样,每一层的小朋友都可以在所在层享受到室外活动场地的同时,不知不觉玩到下一层或者上一层,与更多的朋友交流互动。建筑内部布局采用了单边廊道,将室内自然采光及通风的效率最大化。
▼功能分析图

▼幼儿园内部庭院,整体形体在不同的方位由不同高度的坡道整合

通过白色铝板在表面的流动和扭转,建筑立面在观感上显得流畅且富有韵律。木纹转印的铝板作为衬托,为建筑进一步增添了温暖和细腻的氛围。双曲铝板在深化过程中做了充分的优化,以此实现了模块化的加工和建筑表现力之间的平衡。而扶手采用的雾化玻璃为连续的屋面勾勒出兼顾安全与诗意的边界。
▼立面铝板分析

▼墙身大样

▼景观分区分析

▼中庭中央位置的滑梯与飞廊俯视图

▼穿过斜坡花园来到顶楼

▼幼儿园入口,预留了等待和缓冲空间


建筑室内设计则主要采用了温暖柔和的糖果色系,结合圆弧的造型营造出了具有安全感的温馨氛围。纤细而不失大胆的造型也能更好地迎合孩子们对世界的各种可爱想象。
▼幼儿园门厅


▼幼儿园休息区,温暖的色调结合圆弧的造型,营造出具有安全感的温馨氛围

在前行的路途中不断上升,特殊的行进经验给孩子们带来了穿梭时空的梦幻感。室内与室外间的界限更加模糊,内外空间的联系更加紧密的同时,规范的力量进一步被消散。

随着信息时代的进步和高速发展,孩子们对世界的认知远远超过了我们的预期,给予孩子一个超越传统的空间更能激发孩子的创新和求知,在那片奇幻的天地有个美好的回忆。
·END·
想看更多可以WX公众号:时代楼盘