设计师语

设计是一个多维思考的结果,每一次的实践都是设计认知的一次改变。围绕着消费观念的求新求变,对于环境文化的体验需要我们不停地探索和思考。我们可以改变手法,力求增强品牌热度的需要,又要释放获客的多元价值。设计能够呈现的形式是否更有助于经营,更有助于消费者。或者说,设计就是阿米巴理论的一次多维解读,希望是准确的,更具直观和张性。
原始建筑







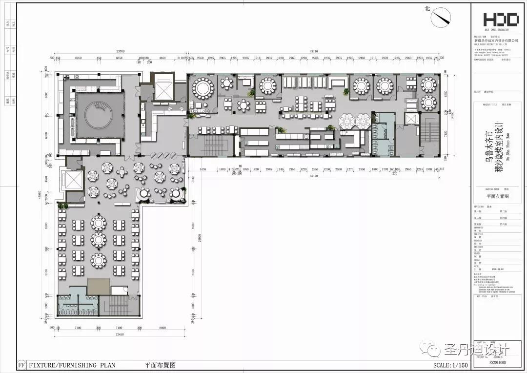
项目概况

项目名称:穆沙烧烤旗舰店
地 址:乌鲁木齐市铁路局商圈内
面 积:室内面积1167 ㎡,露台面积300㎡
项目类型:餐酒吧
主 材:GET瓷砖,新型卷材仿岩石,仿铜不锈钢,亚克力,霓虹管,松木,钢网,透光云石,针织布幔。

△总平面图

△吧台
这是再生成的70平方米,也是所有功能区的中枢部分,连接着烧烤区、室内就餐区、以及室外休闲消费区。

△主入口走廊(侧视)
主入口走廊连通包厢和卡座,沿途可见半嵌入式马车造型,飞檐列栋置于复古翠蓝色柜体之上,艺术陈设不落俗。霓虹灯管的柔光,打在新型卷材仿岩石墙上,墙面立体而通透。半开放式卡包,采用仿木残墙式隔断,营造出独具特色的异域氛围。


△主入口走廊



△露台烧烤区
围绕着原钢结构8米的挑高层,我们没有采用以往的空间拆解,高挑的空间以生态为主题,给年轻人一个可以与自然融合,伴随着清凉的夏意,享受欢快的美食。



△包厢
若您想安安静静全家聚个餐,包厢足够宽敞。西域风情色彩饱满而不繁杂,拱形门配上精致吊顶,足够的层高,唯美的窗幔,满足商务宴请和家人朋友的聚会 。


△轴侧图



写
在
最
后

这是巨变的时代,无论脚步怎么匆忙,不管聚散和悲欢来得多么不由自主,总有一种味道,以其独特的方式,在舌尖上提醒着我们,看清明天的方向,不忘昨天的来处。*疆新**人喜欢用“烧烤”这种最质朴的方式满足味蕾, 是*疆新**人的情怀,也是本案的初心。