对于想要在建筑、景观、室内、城市设计方向留学、就业及考研的同学来说,多多阅读案例图纸及实际案例对于造型能力提升、理论学习、设计推敲过程及形态转译等方面能力的提升具有很重要的作用。为了让同学们更好的了解建筑、景观、室内及城市设计项目中涉及的知识体系,设计亮点及学习方法,王学长推出了案例学习与分享系列,并将对建筑、景观、室内及城市设计中的优秀案例进行分享、解读,希望对同学们有所帮助。
01 场地概述
漂浮的房子位于距苏州半小时左右车程的锦溪镇的最南端,这里的尚明甸是一个富有江南水乡气息的村庄,河道穿梭于村落之间,将村落划分为若干片。

被河流划分为若干片的村庄
场地位于村落的西北侧,原为废弃的厂房,项目即位于此处,建筑的三面紧邻住宅,南侧面临河道。

场地位置示意
项目的客户在上海经营避风塘多年,并在路过此处的时候便喜欢上了村落自然宁静的生活氛围,并希望在工作之余可以在这里生活,并找回曾经村落中的记忆。
02 场地策略
设计对场地进行了深入的思考,通过对于场地周边环境的分析,场地的东、西两侧均为住宅,南侧紧邻河流,北侧仅有一条道路,且入口区域狭小而拥挤。为了优化场地布局,设计将入口区域内退,入口区域形成了一个小型前院,并为场地中增加了一处过渡空间,同时打破了原有民居布局中的横平竖直形式,同时拉开了与周边建筑的舒适尺度关系。

形态演变过程

设计过程与细节演变过程
设计充分考虑了建筑和村落的肌理,场地南侧的河流、树木为场地提供了较好的景观氛围。为了更好的优化场地的布局,提高场地的景观视线,二层以上的住宿空间拆分成为三栋独立的小尺度建筑,并将水面作为景观空间,通过对采光、通风、景观角度等多重因素的充分思考,重新建立了建筑独有的秩序。

建筑空间顶视图示意

从道路鸟瞰建筑

建筑的观景空间全部面向景观水面
03 漂浮理念
建筑设计为了突出建筑的轻盈,在一层的结构上做了内退处理。通过反梁的方式增加了一圈挑板,让一层的结构在立面上看起来更为轻盈。同时,一层大面积的落地玻璃让内退结构在建筑立面上的连续性更为统一。

内退的玻璃及结构,底层的架空形成了漂浮的感觉
建筑的一层为主要的活动空间,一层的部分结构柱放于室外,落在泳池内部。并创造出室外空间与室内空间的融合性,而落地玻璃更好的将室内外的界限模糊。将草坪、休息平台、泳池下沉活动区、餐厅区等室内外空间融于一体。

从一层餐厅看室外空间

室内餐厅空间
通过上述的设计推敲,建筑的漂浮视觉感更为突出,同时建筑尺度与人的对比更为弱化。在功能上,一个类似于裙摆的层板将建筑划分为上下两部分,一层为开放的活动区域,二层为私密的客房区域。

空间分析与功能分析
04 融于村落与自然的建筑
在村落中设计的建筑为了更好的融入村落生活和自然环境,建筑的设计希望尽可能还原村落肌理,同时,也希望创造探索的更多可能性。村落空间的穿堂躲巷、翻墙爬院、上房揭瓦等活动都是儿时在乡村中难忘的乐趣。在建筑流线上,设计做了多种方式的联动,旋转楼梯是主要的流线,同时,在二层设置了一个楼梯过渡空间,形成了空间中的不同感知与切换。

二层平台空间


多重流线

室外行走空间进行
建筑、自然、生活糅合在一起,让身处其中的人们能够充分感受到舒适与自由,并为生活增加一定的趣味性。

半户外楼梯间

楼梯间的光影示意
05 漫游式体验
一层空间中,柱子代替隔墙来划分空间的方式。散落的柱子在布置上把一层划分为三个功能区:包括咖啡接待,儿童活动和餐饮区。而圆形的吧台把动线引导成非直线方式,弧形的玻璃墙面也让动线不断改变,形成漫游式的空间体验。

旋转楼梯

俯瞰楼梯间

户外泳池
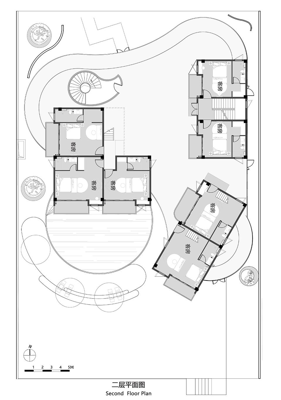
06 建筑图纸展示

总平面图

一层平面图

二层平面图

三层平面图



立面图示意