
巴西 AS Hair Salon
Hair Salon Design
这家理发店位于巴西圣保罗,从外观看,其门面只有4米宽,简约的直线和中性材料构成了设计,还有一点最重要的元素就是其倾斜屋顶。干净的白色墙壁上,嵌着一面玻璃橱窗,门被很好的隐藏在其中,倾斜屋顶是以前建筑结构的遗留,这决定了入口门面上框架玻璃的形状。


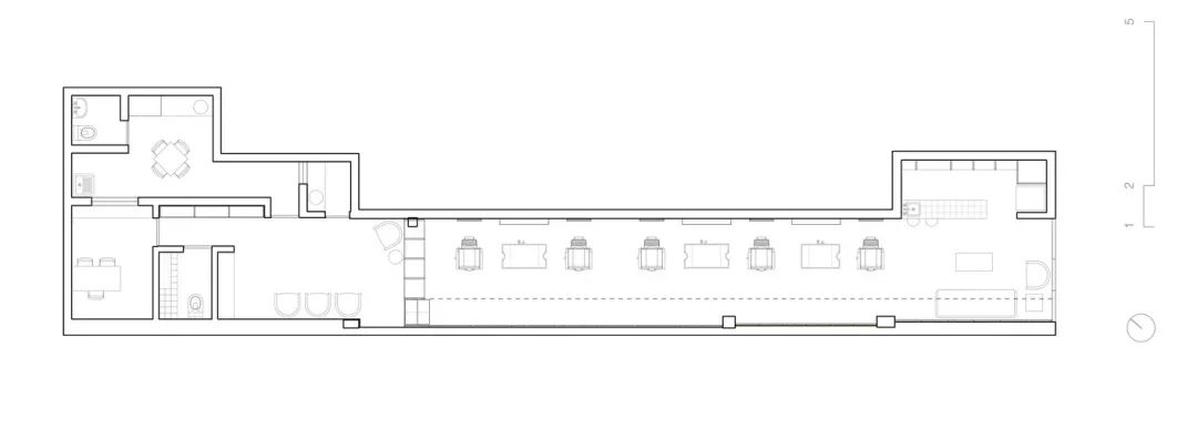
全透明的玻璃门面毫无保留地对外展示,透过玻璃门进入室内,是简单的接待台和等待区,等候期间接待台可以作为吧台供客人使用,此部分与狭长的工作空间也没有明确的空间分隔,一切都一目了然。


暖黄的原木饰面墙在裸露的混凝土承重柱旁铺开,与浅色系的陶瓷地砖协调呼应,然而最有趣的地方是连接着天花的高光白瓷方砖墙,高反光的特点不仅开阔了视觉感受,而且是一个怀旧感满满的时代符号。



空间延伸到最尽头始终保持着同样的斜顶造型,与橱窗门遥相呼应,此部分承担的主要功能则是盥洗室、储藏和休息室等。

项目平面图

