《心晓天地》今天工地有些忙,没有来的及好好整理资料,今天就整理这里,希望大家喜欢!更喜欢能为大家服务工程
中铁建工集团精品工程装饰装修创新做法集锦,包括楼地面、墙柱面、吊顶、幕墙、卫生间、饮水间细部、不锈钢栏杆、玻璃隔断、无障碍设施、室外广场等8个部分的内容,主要采用节点图、3D模型、渲染效果图及实景图进行分析,清楚明了!
1
楼地面
1、石材地面
(1)地面温度缝设计

兰州西站地面石材分层做法图

地面石材节点做法(3D模型)

地面石材节点做法(渲染效果图)
(2)地面检修口设计

地面检修口节点剖面图

地面检修口节点(3D模型)

地面检修口节点(渲染效果图)

敦煌机场项目地面检修口安装实景图
(3)地面变形缝设计


(4)黄铜警戒线设计

黄铜警戒线剖面图

黄铜警戒线节点设计

敦煌机场项目黄铜警戒线安装实景图
2、门厅入口防尘垫设计

门厅入口防尘垫节点(3D模型)

门厅入口防尘垫剖面图

门厅入口防尘垫(渲染效果图)

2
墙柱面
1、石材墙面
(1)墙面阳角处理



(2)墙面单元格凹缝设计

石材墙面单元格凹缝节点剖面图

石材墙面单元格凹缝节点(3D模型)

石材墙面单元格凹缝节点(渲染效果图)

石材墙面墙根部位凹缝节点剖面图

石材墙面墙根部位凹缝节点(3D模型)

石材墙面墙根部位凹缝节点(渲染效果图)

(3)铝蜂窝-石材复合板暗门设计

铝蜂窝-石材复合板暗门设计(3D模型)

铝蜂窝-石材复合板暗门设计节点模型


(4)“回字纹”文化元素的应用

“回字纹”文化元素(CAD节点图)

2、柱面处理
(1)柱板与顶板的分色处理


兰州西站项目柱顶与梁板涂料施工实景图
(2)清水混凝土柱面处理

兰州西站项目仿清水混凝土做法工艺参考图:




兰州西站项目仿清水混凝土装饰装修实景图

(3)石材R200mm圆弧墙面做法

圆弧石材墙面节点做法详图

圆弧石材墙面节点(3D模型)


沈阳南站项目石材墙面整体效果实景图
3、玻化砖墙面阳角的处理


墙面阳角处理常规做法效果图
阳角的精细化处理:


4、吸音板墙面

吸音板墙面立面图


沈阳南站吸音墙面分格条安装实景图
3
吊顶
1、铝板吊顶
(1)弧形铝条板与平面板交接做法

弧形铝条板与平面板交接节点做法

弧形铝条板与平面板交接节点(3D模型)

弧形铝条板与平面板交接节点(3D模型)

敦煌机场项目吊顶实景图
(2)反吊法施工铝条板吊顶

敦煌机场铝条板吊顶反吊法施工(CAD节点图)

敦煌机场铝条板吊顶反吊法施工节点

敦煌机场项目航站楼吊顶实景图
2、铝网板吊顶
(1)沈阳南站做法
做法工艺参考图:


沈阳南站铝网板安装节点

沈阳南站铝网板安装节点(3D模型)

沈阳南站铝网板安装节点(剖面图)

沈阳南站铝网板安装节点(3D模型)

沈阳南站铝网板实景图
(2)兰州西站做法:
做法工艺参考图:

兰州西站铝网板吊顶做法(平面图)

兰州西站铝网板吊顶做法(剖面图)

兰州西站铝网板吊顶做法(3D模型)

兰州西站铝网板吊顶实景图
3、单元板吊顶






兰州西站吊顶圆弧段与平直段连接节点实物图
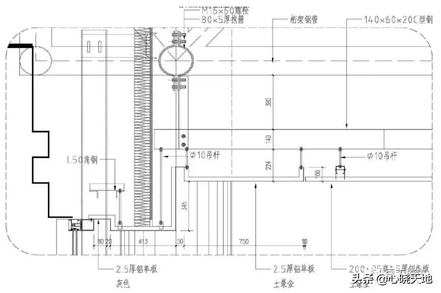
4、吊顶末端设施
(1)成品铝合金检修口

沈阳南站铝合金检修口节点设计图

沈阳南站成品检修口实物图
(2)装配式检修口的应用

兰州西站检修口做法剖面图

兰州西站检修口做法(3D模型)

兰州西站检修口做法(渲染效果图)

兰州西站项目装配式检修口实景图
(3)装饰百叶与反光灯槽组合


沈阳南站卫生间装饰百叶与反光灯槽设计节点剖面图

沈阳南站卫生间装饰百叶与反光灯槽设计节点(3D模型)

沈阳南站卫生间装饰百叶与反光灯槽设计节点(渲染效果图)

沈阳南站卫生间装饰百叶与反光灯槽安装实景图
4
幕墙
1、外墙变形缝做法

敦煌机场石材外幕墙变形缝设计图

敦煌机场石材外幕墙变形缝(3D模型)

敦煌机场石材外幕墙变形缝(渲染效果图)

敦煌机场石材外幕墙变形缝实景图
2、石材外墙阳角做法




3、石材外墙开放缝做法






4、斗拱做法




5、幕墙双柱回字纹

敦煌机场幕墙双柱回字纹平面图

敦煌机场幕墙双柱回字纹剖面图

敦煌机场幕墙双柱回字纹(3D模型)

敦煌机场幕墙双柱回字纹(渲染效果图)

6、石材幕墙局部造型处理方法

敦煌机场石材幕墙局部造型平面图

敦煌机场石材幕墙局部造型剖面图

敦煌机场石材幕墙局部造型(3D模型)

5
卫生间、饮水间细部
1、隔断



2、搁物台



3、盥洗台
3.1盥洗台窄镜做法:



敦煌机场盥洗台窄镜安装实景图
3.2 盥洗台整镜做法:

敦煌机场卫生间整镜立面图

敦煌机场卫生间整镜(3D模型)

敦煌机场卫生间整镜(渲染效果图)

敦煌机场盥洗台整镜安装实景图
4、饮水处

6
不锈钢栏板、玻璃隔断
1、不锈钢栏板


兰州西站不锈钢栏杆(3D模型)

2、玻璃隔断


敦煌机场玻璃隔断(3D模型)

敦煌机场玻璃隔断细部设计

敦煌机场玻璃隔断(3D模型)

敦煌机场玻璃隔断栏杆立面图
7
无障碍设施
1、盲道设置

敦煌机场盲道排版图
敦煌机场盲道钉节点图

敦煌机场盲道钉节点(3D模型)
敦煌机场盲道钉节点(渲染效果图)
敦煌机场盲道实景图
2、无障碍卫生间
兰州西站无障碍卫生间(3D模型)
兰州西站无障碍卫生间(渲染效果图)
8
室外广场
1、中心广场石材飘带设计
敦煌机场石材飘带(3D模型)
敦煌机场石材飘带实景图
2、金水桥汉白玉栏杆设计
3、五彩石应用