不靠子女,年纪大了,后半生你们有想过怎么过吗?
住进养老院?还是和一群志同道合的小姐妹找一个山清水秀的地方抱团养老?
今天我的心里全想着《梦想改造家》这五位来自成都的姐姐们,平均年纪50+,精神气特别足,有孩子的李姐、宋姐也完全没有被子女束缚住,姐妹五人跑了十几个地方,最终决定在气候宜人的丽江定居,抱团养老。

共同买的老房子有520㎡,杂草丛生,以为修一修自此能过上神仙般有山有水的生活▼

但现实终究不遂人愿,修缮后的房子整个布局越看越像乡镇企业、农家乐▼


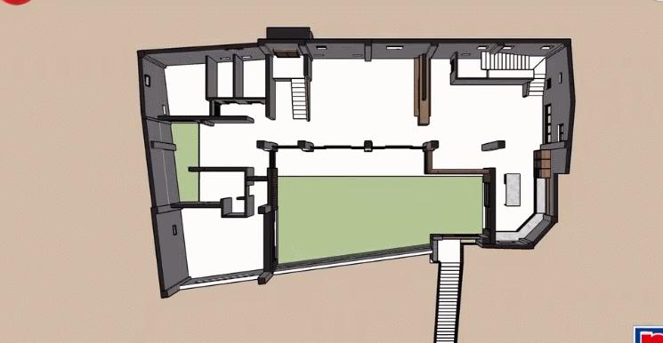
另外内部规划也存在很多缺陷:
①一楼空间基本无采光,西北两面全被周围邻居家挡住了▼

②卫生间全集中在一楼且一条直线上,画面特别好玩(节目组后期也是可爱了)▼

这样不合理的家,显然不能够满足对未来生活充满期待的五位姐姐。这次改造找到设计师谢柯,第一步打破现有格局:
①8间房保留6间,两间改成姐妹可以唠嗑的公共休闲区。
一楼

二楼

②西侧外墙内退2米,打造阳光天井增加室内采光,还多了一个小花园,为一楼的客房和公共区域提供了景观。


小板凳坐好,下面开始进入这个家的高光时刻。
进门有院子有绿植有桌椅,朴实无华但悠哉悠哉,是我向往的退休生活没错▼


客厅宽敞明亮,壁炉取暖,冬天姐妹们围坐一起丝毫不觉得孤独▼

餐厨区域

拐角增设了一个小休闲区,这样的空间,在整个房子中多达5处,姐姐们都有合适的休闲空间,可以两三人小酌,也可以十多人共聚。

一楼聊天室

二楼茶室

如此之大的开放式厨房,我一个不爱做饭的人都表示想学▼

一楼蔡姐卧室,风景绝美,玻璃窗又是取景窗,其大小以及安装高度极其微妙,引景入室刚好可以看到柿子树▼

二楼会客厅是全屋视野最好的空间,可以看到丽江古城景色▼


二楼4间卧室,每间都阳光充足
西卧带内退花园


中卧

东卧

胡姐的房间我的最爱
(姐姐们,你们还缺小姐妹吗?我太羡慕嫉妒恨了……)


留个洗衣房对520平的大房子来说也是绰绰有余,即便姐姐们后期想作为民宿用也是可以的,空间大储物充足可满足多人使用。

看完整个改造,花了多少钱,你们是不是也特好奇?183w姐妹5人平均一人36w不加买房钱▼

最后问句,这样的后半生你们向往吗?在一个景好,生活惬意的地方(当然医院不能够太远)与闺蜜相伴共度余生。


ps:图片动图来自网络