
英伦• 风尚 都会
ZHONGTIANJIAN PALAZA
项目概况
Project Overview

以更新的眼界·更新世界
全球顶级设计团队RTKL进行项目前期建筑设计
项目地上建筑由商业街、公寓楼、LOFT、写字楼、住宅等组成.地下为大型停车场,部分为库房、设备用房及人防工程.。项目位于兰州市七里河区西津西路194号,总占地面积为56035.82平方米,项目地上建筑由商业街、公寓楼、LOFT、写字楼、住宅等组成。地下为大型停车场。为了将兰州中天健广场(七里河)项目打造成兰州新的中央商务区,中天健集团特委托了全球顶级设计团队RTKL进行项目前期建筑设计,力争做到统一规划、统一建设、统一运营,从而快速完成西客站周边城市公共设施配套建设,提升兰州市七里河区的整体形象。

设计思维
Inspriration source

“我想在一个从不睡觉的城市中醒来,发现我是山顶之王”
——弗兰克·西纳特拉
将抽象的艺术表达,转化为可感知的空间语言,并为商业经营增加效益,是本项目设计思考的核心。
材质定位
Material Positioning

大面积以灰白打底
混合金色的和木色对比的色彩搭配
家具款式呼应空间的简洁,线条亦十分直接、干脆
在材质上高质感的皮为底加上金属与玻璃为跳跃色点缀
既风雅又不失奢华感

颜色分析
Color Analysis

沙发选用高级灰色感体系内的黑色与米黄色
整体色调统一
彰显出一种克制的华丽质感与格调,
令整体视觉上十分自然和谐
雅致而宁静的奢享体验
尽显都市精睿的舒适怡然而又不失时尚与商务感
整个空间大气内敛
案例赏析
Case Appreciation

LOFT 大堂软装设计方案
托尔斯泰曾说:“我们到陌生城市,还不是凭几个建筑物的尖顶来识别的么,日后离开了,记得起的也就只几个尖顶。”
地图是平的,历史是长的,那些美好的都是尖的。

—— 原始固装设计 ——
芝加哥以其丰富多元的资源,激烈复杂的竞争闻名于世,是不折不扣的逐梦者的天堂。我们正试图将这种城市生活上游人群的生活方式具象化。
LOFT 大堂 / Plan design

▼

—— 设计效果图 ——

敦煌是甘肃的精神名片,飞天则是敦煌莫高窟的艺术成就集大成者,是敦煌艺术的标志。只要看到优美的飞天,人们就会想到敦煌莫高窟艺术。 敦煌莫高窟492个洞窟中,几乎窟窟画有飞天。
住宅大厅的主灯造型来源便是著名的飞天,金黄色的琉璃造型如天女的缎带飘逸出尘,俯瞰众生。

主灯位于大堂的顶部正中,如果说设计师用建筑重塑天际线,那居尚中国携着中天健飞向城市的天空,开启新的生活方式。

上帝说:“要有光”。于是有了光,它是我们感知世界的基础,亦是抚慰人心的温度。明亮的光线总会给人以无需多言的柔软与舒适感,流线灵动的琉璃造型,辅以大面积的金属构架,优雅明快之感油然而生。赋予空间鲜活的生命力,它仿若一个有血有肉,饱满而清晰的人,充斥着跳跃的思维和有趣的灵魂,而不是一张苍白无力的白纸,动与静之间带给访客丰盈的体验。

前台 proscenium

休息区 Rest Area

沙发细节 Product Details
极简的设计体现在中性色调和线面的组合,理性的空间沉淀情绪,将大堂从城市的喧嚣中抽离出来,缓和的喘息。

茶几细节 Product Details
“大音希声,大象希形”,粗犷的金属未经修饰,同样以留白的形式带给人无尽的奇思遐想。

屏风细节 Product Details
空间中琉璃马赛克底墙,喧哗热闹,恬静且安然的金属镜面木质屏风一体两用,置于空间天花板之下排列于地板与背景墙之间界定空间场域,让水平景深藉由虚实错位屏风可沁于后方。

屏风细节 Product Details
大堂的地毯有凹凸延伸纹理质感,光线随着时间变化,就像潮汐一般涨幅,从早到晚拥有不同的光景。

配饰细节 Decoration Details
在色彩搭配上,设计师将抽象的艺术表达,转化为可感知的空间语言,共同绘制出铿锵有力的潮流宣言。
慵懒治愈的松绿色大理石进一步强调沉稳与清新,给人以舒适、自然的感觉,率真直接的亮色镜面为补充,增添一抹明亮与酷炫。两者形成鲜明对比,极具视觉冲击力,从空白的画布中脱颖而出,使空间焕发新生。再加入硬朗挺拔的深灰金属色,让整体自然过渡且增添一丝稳重、沉静的味道,引人无限深思与遐想。

住宅大堂软装设计方案

—— 原始固装设计 ——
在这个空间中,尝试如何与住宅大堂的传统印象建立联系,并保持距离,以及更接近新的年轻的消费群体?是设计的核心要点。我们试图通过“轻奢时尚”背后纷杂的词语、图像意向,对一系列线索进行整理和表达,比如“米兰”符号暗示的情结,时尚之都的印象,以及具有意大利风情元素的描述。
住宅大堂 / Plan design

▼

前台 proscenium

休息区 Rest Area

沙发细节 Product Details
长形的装饰沙发引导人的视线到更加内部的空间。沙发后方半弧形的摆放的圆柱状落地灯组营造出舒适的氛围空间。

灯具细节 Product Details

沙发细节 Product Details
在住宅大堂的空间中,设计师试图通过真实的体验来引导设计的完成:从进入大厅,过道的包容度,每一个座位的舒适度,沙发之间的衔接,灯光的适宜度,每一种材质之间的平衡与补充,都围绕着具体的场景与体验的发生。

地毯细节 Product Details

配饰细节 Decoration Details
光滑的不锈钢墙饰恍若能将大堂里的陈列的反射出来,另一侧的吧台引用了建筑穿插手法,将明亮跳跃的色彩点缀其中,产生不一样的视觉效果。单人沙发小巧的设计大大凸显了大厅内的空间,流畅简练的线条将材料的特性发挥到极致,辅以造型奇特的灯具,在平静且克制的语境中,注入恰到好处的美学情趣,营造出活泼、轻快的空间氛围。

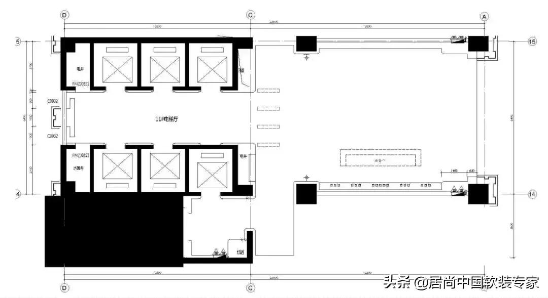
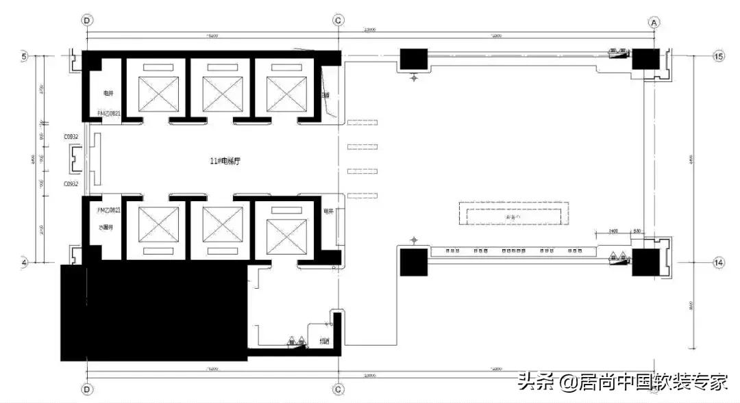
写字楼大堂软装设计方案
好的设计,先划分生活,再划分空间。写字楼对于空间的细致划分还延伸到电梯间,门禁分隔功能的细致,并没有影响到空间之间的对话,对光线的控制也暗示着功能的私密程度。

—— 原始固装设计 ——
好的设计,先划分生活,再划分空间。写字楼对于空间的细致划分还延伸到电梯间,门禁分隔功能的细致,并没有影响到空间之间的对话,对光线的控制也暗示着功能的私密程度。
写字楼大堂 / Plan design

▼

东京———“你的脚步还不够快”这是你在东京街头最容易听到的话。
为了快人一步,我们将所有的线条简化为直线,帮助所有高速运行在这个办公环境中的开拓者畅通无阻,如履云端。

前台 proscenium

休息区 Rest Area

沙发细节 Product Details

山中遨游的欲望以柔和的细线条表达,美在其中,蕴藉多致,耐人寻味,画尽意在,故初平平而终见「妙境」。


配饰细节 Decoration Details
通过倒置的方式,在天花悬挂无数错落有致的圆阵,解放地面空间,使整个空间变得通透,令人的视觉得以延伸,人的行为得以自由伸展,最终营造一片高低起伏,时髦而独特的「律动之林」。

配饰细节 Decoration Details
信息碎片化的当下,人容易迷失在快速变化之中。设计师希望通过视觉语言物化世间变幻的种种,鼓励来客在这个空间中,通过观察、触摸、感受造物者情绪的波动,体味变化中的规律,重拾生活的质感。

个中的冲击与变化、传统与现代的碰撞交织在一起,相互渗透,又相互融合,形成历史尘烟中萦绕的温柔和壮阔,我们才得以看到那或许缥缈却也美妙的诗和远方。

办公大堂软装设计方案

—— 原始固装设计 ——
未来—如果你能完全看懂,说明你只能看到现在。
办公大堂 / Plan design

▼

黑色添加棕色的皮质,搭配光泽度尽显的底座,简约又不失格调的座谈区整齐的排列。落地窗外的光线如圣史般改变了商务化的沉闷,光影的艺术气息弥漫整个办公大堂。工作不再一如以往的单调。

前台 proscenium

休息区 Rest Area

配饰细节 Decoration Details
空间以其独有的灵魂与姿态存在着,沉默而富于感情,而那些感情就雕刻在细枝末节之中。安静地尘伏,这也是时间洪流独有的情调,这些极其冷酷,精确又优雅的形态,像是被一种不朽的力量瞬间擒住,吸引着观看者驻足触摸、感受。

空间氛围
Home atmosphere

初熟秋梨的感性清爽包围在白色
小苍兰花束中,又因琥珀、广藿香和木香而愈加
芳醇,甜美金灿。香雾朦胧,迸发迷人芬芳,
为空间即刻打造个性印象。
前调 : 威廉梨
非同寻常的创新成分,芳醇的果香无
比清新,多汁之感令香型倍显饱满。


中调 : 小苍兰
纯正英伦格调,清爽的白色小苍兰
为中调注入细腻而独特的芬芳。
后调 : 广藿香
感性而深沉的木香令整体香氛历久弥新。



空间灯效
Home Light Effect


色温:
冷色光加强金属质感
暖色光加强室内暖色调材质,营造温暖的感受
2700K(稳重,温暖)温暖 - 4000K中介(爽快) - 5000k(清冷)
3000k物体呈现紫红色 5000k物体呈现蓝紫色
质量:
漫射光能表现出物体的线条和轮廓
直射光则营造出爽快与令人侧目的效果
意向:
侧光可表现物体的立体感,正面光是物体平板
平行光可清晰的刻画是平面的细致质感
___________________________
项目名称:兰州中天健广场办公•住宅•LOFT大堂软装
空间陈设方案
项目地址:兰州市七里河区西津西路194号
空间陈设设计:居尚软装设计机构
PERFECTION IS A BELIEF • COME FROM DEDICATION
—— 因执着•而完美 ——

不必再担心最终效果与图纸不符
用极致的专业
帮您细致还原到每一寸肌理
从尺寸比例到色彩搭配
从材质肌理到置身体验
优质的产品资源
满足一切需求
所见即所得
从不曾失望
......


精英团队为您服务!
Elite team to serve you!
