
屋主是一对丁克夫妇,养了一只大二哈。由于对原户型十分不满,于是找到了设计师,希望可以围绕自己的生活方式进行户型改造。
在这套使用面积只有76㎡的小户型里,最终塞进了双卧室、双人书房、独立衣帽间、9㎡的三分离卫生间、4米长的玄关柜,以及5米长的观景飘窗LDK,可以说是相当厉害了!
而且“塞进”这个词其实也并不准确,实际上,住起来感觉还非常宽裕呢。

户型:两室
使用面积:76㎡
花费:25万
地点:四川 成都

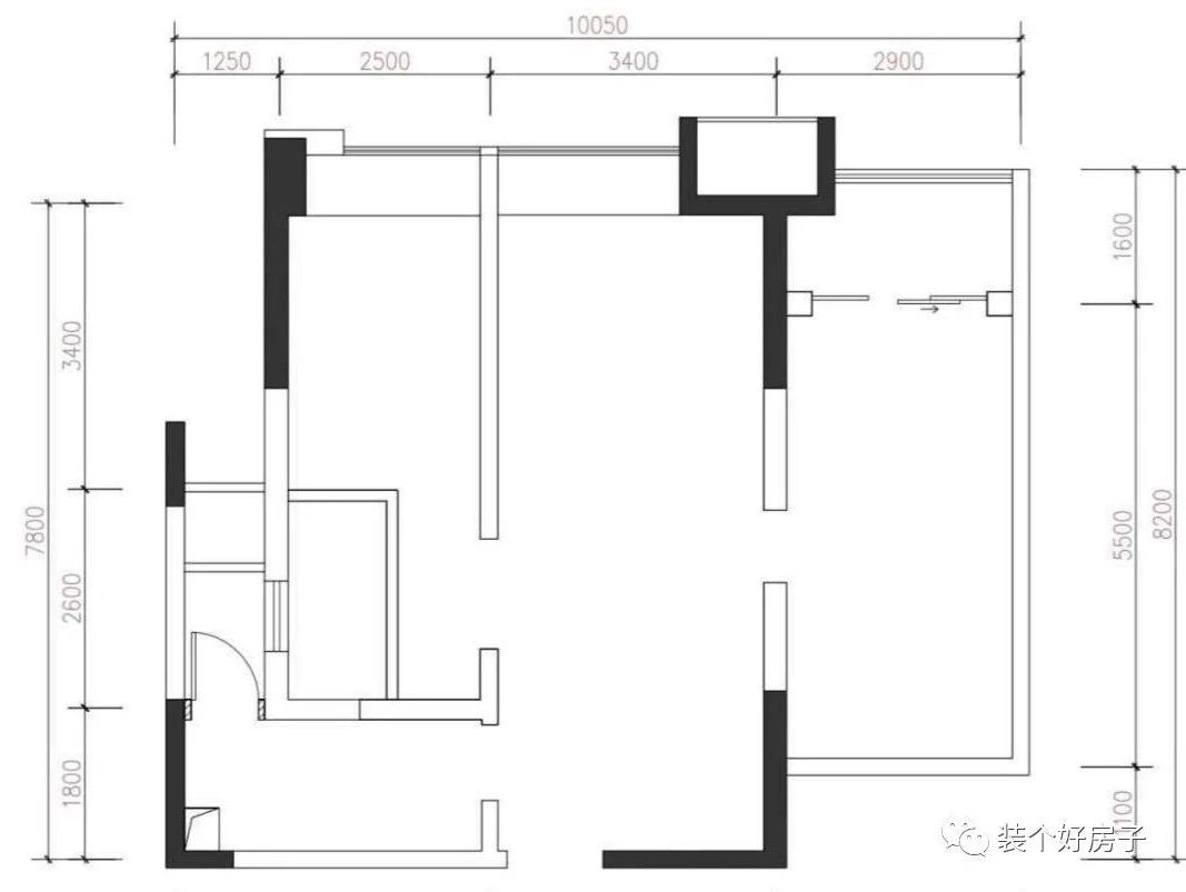
▲原始结构图
存在问题:
1.没有玄关,进门就是餐厅,大门外几乎正对电梯,隐私性非常差。
2.只有一个4㎡的卫生间嵌入主卧,主卧的空间十分局促。
3.剩下的一个大房间隔成两个小间也不好利用。

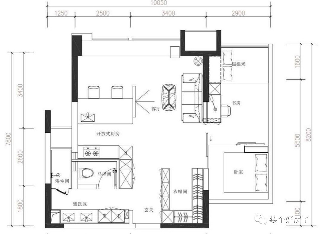
▲平面布局图
改造提示:
1.将原餐厅区改为了衣帽间和玄关,实现了近4米长的玄关收纳柜。
2.屋主在家下厨的时候非常少,可以接受灶台离烟道较远以及开放式厨房,于是将原卫生间和厨房位置互换,获得了9㎡的三分离家政卫生间,和5 米台面的U型开放式厨房。
3.打通了原主卧和客厅的墙体,实现了具有豪宅感的5米飘窗LDK空间。
4.原小两房的客卧格局设置成主卧加书房兼客卧的形式,满足屋主日常起居和偶尔接待父母的需求。

▲全屋收纳示意图

由于大门与公用电梯几乎是正对,所以打造了一个长长的玄关解决隐私问题。
玄关采用六角砖,与客厅做区分,通道两侧顶天立地的4米长玄关柜不仅提供了充足的收纳,视线尽头望不到边的横窗还给人一种别有洞天的豪宅既视感。

玄关右边依次是换鞋凳、挂衣架、鞋柜、展示柜、家务工具柜。左侧是大衣柜,主要用于冬季出门用的大衣、围巾等物品,也免去了换季倒腾的麻烦。
整组柜体的容量和尺寸都根据男女屋主的身高、衣量做了区分,可以说是超级人性化设计了。


▲家政柜内部采用洞洞板,有序收纳清洁工具

L型的衣帽间就在玄关鞋柜的背面,依然是根据男女主人的身高和衣物量做了不同尺度和形式的划分。

L的短边加了一扇镜柜按压门,里面主要放置行李箱等不常用物件,同时为女主人提供了尺度合适的试衣空间。


通过狭长的玄关进入客厅,有种豁然开朗的感觉。一张沙发,一张易于移动的小茶几和一个懒人豆袋,简单的构成了客厅区域。

沙发对面的天花上还隐藏了投影幕布,可以偶尔变身家庭影院模式。

女主人坐在窗边豆袋沙发上投喂足有半人高的二哈。

从窗边餐桌看向室内,可以看出功能十分紧凑,但活动空间却很充裕。

背后的书房空间通过玻璃门以及百叶窗的设计,可以灵活选择半融入客厅还是作为独立的空间。


改造后的厨房,除去冰箱的空间外,厨房还获得了5米长的U型台面和充足的收纳空间,以及一大面的黑板墙。

橱柜转角是U型厨房的老大难,这里索性做了朝向餐桌的外开门(暖气片旁),作为类似餐边柜的餐厅收纳补充。

虽然家里安排了双人书房,但男女主人有时候也很享受开着音响,面对面坐在窗边的餐桌上一起奋斗的时光。抬头望向窗外,也大大舒缓了在家加班的心情。

萌萌哒餐椅腿套


原计划想把主卧放在窗边,但是顶上的梁位置不合适,所以改成了客卧加书房的空间。
男主人在一开始就提出了想要一个属于他自己的“洞穴”般的空间打游戏,而且喜欢盘腿坐,借由梁、地台、衣柜和墙体所包围的空间,正好满足了他这个愿望。
平时没有客人的时候,这里就是他的专属游戏区。


主卧室放在房间的最内侧,用玻璃门和布帘作为隔断,仅保留了最基本的休息功能。

从书房看向主卧,平时玻璃隔断和帘子打开,主卧的采光和通风也很好。

从书房主卧看向客厅,当通向客厅的玻璃门全部拉倒主卧一侧时,书桌与LDK之间的交流就更通畅了。


改造后的卫生间利用原始户型里厨房的位置做了双人洗手台和洗衣间,原本的生活阳台也被收入为动线尽头的淋浴房。

改造后的下水位进行了抬升,空间宽裕的前提下,没有将洗衣机干衣机上下放置而是并排,也更符合屋主的使用便利性。
旁边利用包管后的空间做了一组窄柜,正好用来存放洗衣液等物品。上方的艾格特架则用来晾晒一些手洗的小件,或者烘干机的衣物取出后,直接悬挂,再一次性的拿回衣帽间,十分顺手。

独立的马桶间背靠淋浴间,小窗的设计让卫生间不再是暗卫,给淋浴间也留下了放置洗浴用品的小平台。

------ [END] ------
案例及图片来源于设计师:Jasmine 孙雅珏