
本次办公室设计案例来自广西南宁,整个空间的设计风格是根据业主本人的审美爱好、个人品味以及接待客户的性质等因素决定。我们从企业品牌形象的角度出发、寻找与之定位相匹配的氛围和审美,希望能通过环境为办公人员营造不一样的情绪价值,同时也能突出企业品牌的基调。
设计理念
Design concept

诗意,禅意,宁静,创新,跟紧时代审美的脚步,这是我们需要为这个空间赋予的属性,为此我们在空间种融入了古典和现代两大类型的元素,并通过灯光与材质的运用,把办公空间的形象推向了全新的维度。
01/
前台入口


深灰色的木饰面与灰色的大理石形成呼应,而墙面白色的大理石与白色的天花形成呼应,二者的结合凸显了空间的稳重感,线条元素和弧形设计方式相配合,为空间增添了一丝活跃的气息。
02/
区域通道


通道作为贯通整个空间的区域,我们减少了该区域的软装,仅通过硬装材质的搭配,让通道保持一个简洁,通透和宽敞的形象。同时我们在硬装的基础造型上,增加了一些弧形的设计元素来突出通道的层次感。
03/
案例展区


案例展厅,展示的是企业的文化风采,因此为了呼应企业的文化色彩,我们在该区域中沿用了企业的品牌色青蓝色作为区域背景,凸出区域个性的同时也强调了品牌的个性。背景墙上整齐排列的线性灯光,深化了区域的设计感。
04/
开放式办公区

开放式办公区,不做格挡,保持空间的协调性,降低空间的压抑感,让空间更加开阔,让办公更舒服。
05/
禅意茶室


茶室作为修身养性的空间,我们将其设立在靠近大落地窗的位置,白天通透明亮,晚上宁静祥和,不同的时间可以感受不同的意境。硬装上我们减少了造型的设计,给软装保留更多的施展空间,以此塑造整体的氛围感。
06/
保安专业部

回归原始,空间整体沿用了白色的基调,洁白、干净、特立独行,与其他区域形成了对比。沿用白色的基调除了保证空间的明亮度和通透感之外,也是为了降低空间的压抑感。
07/
财务室

财务室的设计沿用了公共通道的设计方法,同是木色与白色的碰撞,但与公共通道不同的是,财务室在硬装的设计上减少了弧形元素,保留原始的线条,营造的是更加简洁舒适的空间形象。
08/
总经理办公室



总经理的办公室设计风格偏向于经理本人的品味,整个空间风格比其他区域相比更加具有新中式的氛围,我们运用了大量的原木元素,凸显空间的禅意、诗意和宁静的氛围感。
09/
禅房

禅房通常讲究私密和氛围,我们通过原木元素的设计来勾勒出禅房的氛围。
10/
副总办公室


副总办公室设计,我们主打年轻化为主,空间大量运用白色元素,减少了原木元素的使用,让空间风格更偏向现代感,少部分的原木元素则呼应整体空间,保持了空间的连贯性。
11/
大会议室


会议室沉稳大气,排列有序,红色元素的点缀,体现了空间庄严的氛围感。庄严代表了企业的价值,活力则凸显了公司的形象,二者相互交织形成了一种新的空间态度
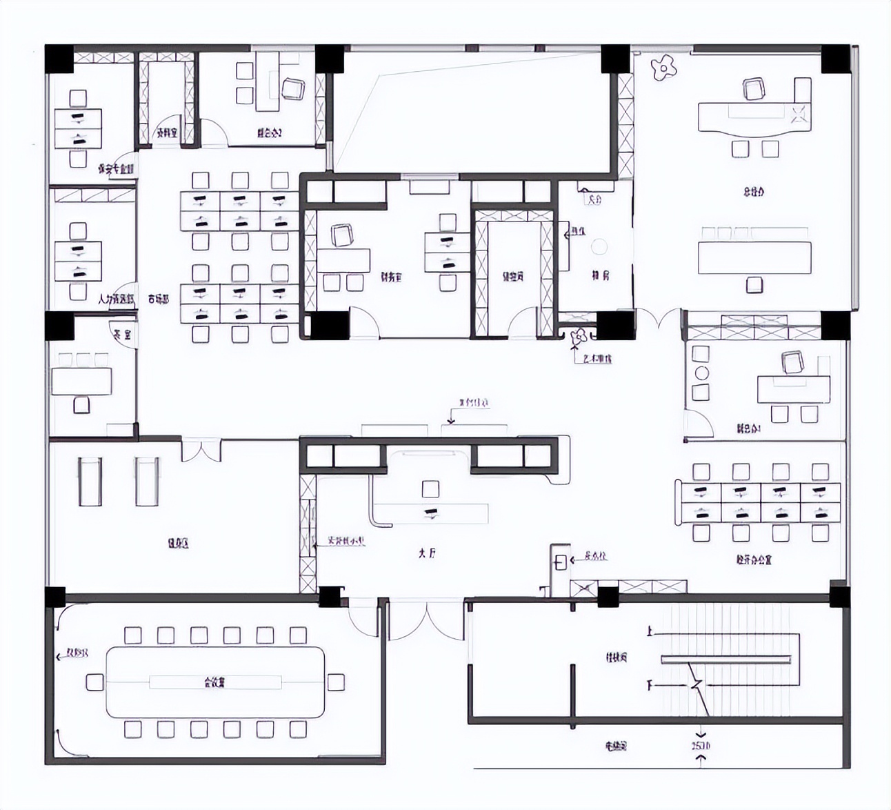
项目名称 / 广西靖天安保办公室
套内面积 / 530㎡
设计风格 / 现代、新中式
氛围打造 / 自然 · 庄严 · 禅意
项目位置 / 南宁市 · 鑫隆国际
设计单位 / 无造空间设计
施工单位/ 无造空间设计

AGENCY FOUNDER

谢树声
无造空间创始人 /设计总监

团队 / TEAM