这是我们在浙江做的一家300平左右的大型水果店,门店选在居民商业街附近,消费群体偏年轻化。
1.平面布局
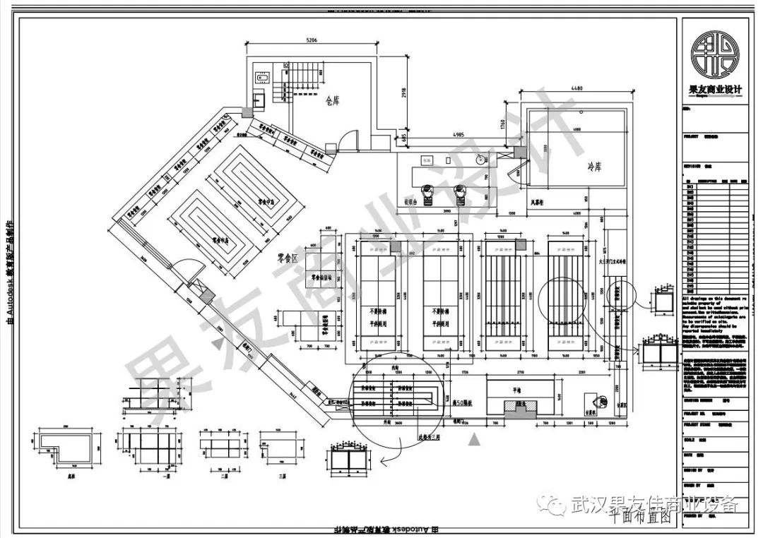
门口临街处设计了入口和出口, 极大提升了门店的客流量。入口处设置摆放了促销堆头,吸引路过的人群进店购买。在店面最后端布局了一个冷库和一个仓库,零食区和水果区分区明确。 收银台设置在店铺中部靠深的位置,这样便可诱导顾客进入店铺的最里面,从而看到更多的商品,购物动线流畅 ,同时也吸引一些闲逛的人群买单。

300平店铺平面布局图
2.门头设计
门头色彩采用柠檬黄和多瑙蓝搭配,异形造型设计搭配撞色,极大的提高了门头的设计感,同时也吸引客户的回头率。

门头效果图
3.整体色彩搭配
店面整体色彩采用活力橙和孔雀深绿,搭配白底墙,整体清晰、明亮、视觉冲击力强。过道宽敞,动线设计合理,水果货架用的布纹灰色搭配。中间货架整体高度不超过1.2米,客户拿货轻松舒适,色彩整体视觉感官强。天花板上采用暖白色水果轨道射灯,射灯可颜色可调节,光线打在水果上更亮眼。

店铺整体效果图
4.水果区设计
水果货架需要选择承重力强,防水耐脏等性能。我们在水果区设计了两组阶梯货架中岛和两组平面货架中岛,方便放置不同形态的水果。货架采用布纹灰色搭配横梁上的活力橙和孔雀绿,整体视觉冲击力强。

店铺水果区效果图
5.零食区设计
零食的形状各异,因此零食货架的选择很重要。我们这块设计了两种类型的零食货架,一种是双用零食层板货架,层板上面可放礼盒零食,底部柜体可用来放存货。另一种是柜体零食货架,柜体上面配有零食盒子,盒子里面可以用来放散称零食。两种货架颜色和店铺整体和谐搭配,陈列清晰明朗。

店铺零食区效果图
6.收银台设计
收银台采用暖白色大理石材质,材质耐脏易清洗。整体色彩搭配背景墙柠檬黄和孔雀绿,设计简洁大方明亮。 收银台位置设定,是店铺的画龙点睛之笔。决定收银位置的因素可以有很多,而收银位置对销售等方面产生的影响,有时也如“蝴蝶效应”一样悄无声息而不易察觉。

店铺收银台效果图
今天果友小编就给大家分享到这里啦,如有任何有关水果店装修、水果店布局、水果货架、水果店经营等以上需求的亲们可以关注小编,同时也可以随时私信果友小编~