
◎南通房谈(ID:NTFT2018)
编辑&美编 | 小白
校对 | 灿灿
近年来,南通通州,大牌地产纷纷发力,搅动一池春水!
喧嚣的背后,一家高端楼盘映入眼帘——【万科·官山望】。
2020年7月底拍地至今,该项目沉寂多日,不少买房人猜测:万科势必又在酝酿大招?亦或是,“你要悄悄拔尖,然后惊艳所有人”?
今天(2021年1月30日),该项目实景示范区首度公开亮相,让小编带领大家一探究竟!


项目实景示范区实拍
南通房谈|小白摄
重点关注信息:
1、不负久候!【万科·官山望】实景示范区今起正式开放,项目“气氛组”身穿50万“龙袍”华丽应景!
2、斥巨资打造!精睿会所、优雅洽谈区、现代感沙盘…示范区随时展示一种量身而设的格调,处处彰显聚合融洽之美!
3、万科新府系豪宅!装修交付含“精装3大件”、5大关键标准、7大智能化配置、8大细节化配置,全力打造区域门户新形象!
4、放风价2.4万/㎡!年前首开约200套房源,建面约138-198㎡!销售直言:抱歉,参观样板间得先至少验资100万!
5、周边利好不断兑现!教育资源近在咫尺,片区土拍热情高涨,项目或将成为提升区域能级的全新驱动力!

项目区位图效果图
1、 不负久候!【万科·官山望】实景示范区今起正式开放,项目“气氛组”身穿50万“龙袍”华丽应景!
盼望着、盼望着,终于等来了通州【万科·官山望】实景示范区今起正式开放。
早前听闻到访参观项目得先预约,由专业的置业顾问采用1v1带看模式全程陪伴,为客户严谨介绍项目实景示范区。


项目实景示范区实拍
南通房谈|小白摄
小编大致估算了一下,整个参观过程耗时近1.5个小时,置业顾问全面详细、有条不紊的精心介绍,确实给包括小编在内的来访客户带来了与众不同的体验,绝对不虚此行!
小编今早抵达【万科·官山望】实景示范区时,正逢项目“气氛组”专业模特拍摄宣传图片,一个不经意居然还幸运看到了身穿50万“龙袍”的专业模特走秀,华服应景可谓气场全开!



项目实景示范区实拍
售楼处吧台还专门聘请了资深咖啡师,准备了颜值与口感俱佳的甜品秀,当然还有必不可少的水果自由……如果你不赶时间,不妨细细感受一番美好下午茶时光。


项目实景示范区实拍
南通房谈|小白摄
2、 斥巨资打造!精睿会所、优雅洽谈区、现代感沙盘…示范区随时展示一种量身而设的格调,处处彰显聚合融洽之美!
黑格尔说“建筑的艺术在于人类把外在本无精神的东西改造成为表现自己精神的一种创造。”
今天,小编有幸全方位参观了低调奢华的【万科·官山望】实景示范区,从售楼处的整体设计到室内装潢技巧,毫无例外的展示了另外一种表达境界, 让设计回归精神之本,这是一种有温度的奢华 。


项目实景示范区实拍
南通房谈|小白摄
整个实景示范区斥巨资打造,光是售楼处整个门头就已经耗费超700万匠心打造!
此外示范区还专门设立了供业主私享的精睿会所,如:健身房、棋牌室、私宴厅、酒吧台等,巧妙利用空间关系的微妙,息息相关又视觉独立,妥妥的充斥着人文艺术美学会所。


项目实景示范区实拍
南通房谈|小白摄
往内里走,过渡厅最大程度地将室外的建筑、景观纳入室内视野,首先映入眼帘的就是苍劲有力的松树观景台,背景则是采用“中国黑石材”为原材料打造的仿真水帘幕墙。


项目实景示范区实拍
南通房谈|小白摄
移步易景,现代感十足的沙盘区位、优雅的洽谈区、充满基调的吧台区一一呈现,给人最直观的感受是简洁而不显单调,整齐而不失优雅,置身其中整个人得以完全的放松身心,十分惬意。


项目实景示范区实拍
南通房谈|小白摄
总体而言,【万科·官山望】实景示范区随时向参观者展示了一种量身而设的格调,处处彰显聚合融洽之美,感兴趣的买房人可以仔细参观品鉴一番!
3、 万科新府系豪宅!装修交付含“精装3大件”、5大关键标准、7大智能化配置、8大细节化配置,全力打造区域门户新形象!
据了解,【万科·官山望】是通万十年打磨的通州封面府系作品,作为南通方圆的迭代更新项目,该项目将为高净值人群提供最人居的居住环境。
此次万科于通州高新区再筑新章,拟规划6-11层纯洋房,总住户约600+,产品系列为万科新府系豪宅!


项目实景示范区实拍
南通房谈|小白摄
且值得一提的是,该项目可以被称之为“通州目前最壕配精装项目”,目前已确定装修交付含“精装3大件”,即:中央空调、地暖、新风系统等高端配置。
项目还配备有:5大关键标准【即:节地与室外环境、节能与能源利用、节水与水资源利用、室内环境质量、节材与材料资源利用等】、7大智能化配置【即:先进入户门、全屋中央空调、全屋地暖、全屋新风、0感通道打造、全屋净水系统、主卧及第一次卧采用主灯三控设计等】、8大细节化配置【即:客餐厅吊顶、客餐厅厨房地面、全屋墙布、厨房移门、厨房电器、厨房燃气包管、卫生间酒店式设计、建筑隔音设计等】,全力打造区域门户新形象!


项目实景示范区实拍
南通房谈|小白摄
据悉,【万科·官山望】还将通过“大尺度的景墙,礼仪性树阵”等场景打造,从外部到内部烘托出威仪府院的气质。后期还将利用名贵造型树木与水景等,用心布置小区内下沉庭院空间,从而突出府邸在文化、贵隐、品质、细节等方面亮点,为业主营造一个更为舒适的家。

项目效果图
4、 放风价2.4万/㎡!年前首开约200套房源,建面约138-198㎡!销售直言:抱歉,参观样板间得先至少验资100万!
【万科·官山望】项目位于通州希望路与碧华路交汇处,开发商——万科,物业——万科。
整个项目17栋层高6-11F洋房,带装修交付,主力户型为138㎡、165㎡、198㎡三种,该项目放风价为2.4万/㎡,产品主要面向通州高净值改善型客群。

项目实景示范区实拍
南通房谈|小白摄
据透露,该项目将于春节前首次开盘,首开楼栋5栋,分别为:15#、16#、20#、25#、27#号楼,共计约200套左右房源,首开楼栋总层高都为11层,首开户型建面约138㎡、165㎡、198㎡三种,带装修交付,首开放风价为2.4万/㎡。【注:实际价格以售楼处公布为准】

项目首开楼栋标记
目前该项目实景示范区已经设立了三个户型各自的展示样板间和清水交付样板间,不过,销售表示:抱歉,参观样板间得先至少验资100万!

为了实地参观样板间,小编可是绞尽脑汁费了九牛二虎之力,由于参观过程被嘱咐不能拍照,所以也实在无法和各位房谈粉丝/通州粉丝分享更多绝美大气样板间图片了,仅以小编的观后感分享:直观反馈出开发商对房子设计细节的重视,搭配一系列高端舒适的家居配套,简直就是超值而舒心的感官享受!


项目实景示范区实拍
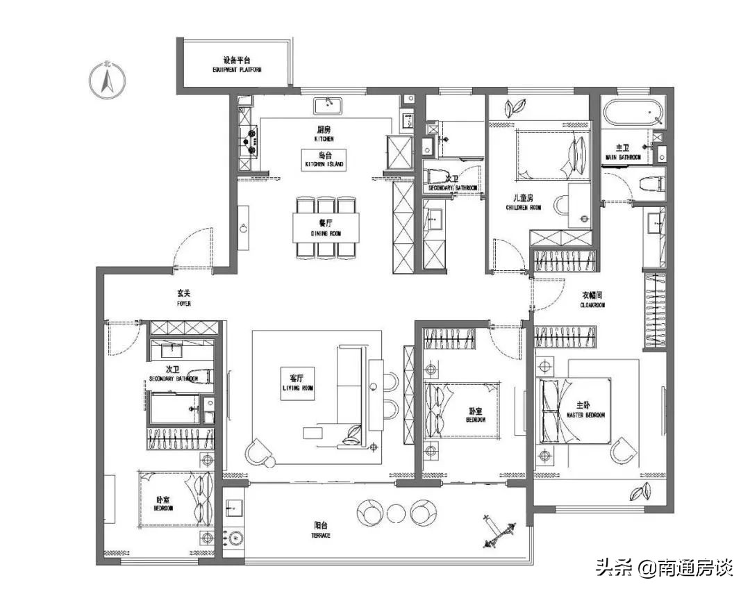
不过可以和大家一起共享最新公布的户型图——138㎡三房两厅两卫、165㎡四房两厅两卫和198㎡四房两厅三卫。

138㎡三房两厅两卫

165㎡四房两厅两卫

198㎡四房两厅三卫
5、 周边利好不断兑现!教育资源近在咫尺,片区土拍热情高涨,项目或将成为提升区域能级的全新驱动力!
在通州,高新区中轴线碧华路想必大家如雷贯耳,并不陌生!在碧华路之上,通州重要的政府决策机构、城市公建配置都很齐聚于此。
如:①政府部门——通州区政府/人民检察院/人大常委/政务服务中心;②公建配套——城南医院/通州区体育馆/通州区图书馆/文博中心/市民中心/金融港等!通州政经轴线,可谓实至名归。
而【万科·官山望】就位于通州希望路与碧华路交汇处,项目一路之隔的北侧即为古沙小学(在建中),学校总建筑面积约32000平方米,总投资约1.5亿元,学校将采用新中式的建筑风格。


古沙小学鸟瞰图、效果示意图
目前来看,该项目所属区位高新区内,周边优质楼盘环伺,居住氛围浓厚!如:春晓熙岸(洋房+小高,毛坯交付、均价1.67万/㎡)、荣盛·金溪府(10-11F洋房,毛坯交付、均价1.78万/㎡)、文澜府(11F洋房,毛坯交付、均价1.88万/㎡)等;
另一方面来看,周边项目都是毛坯交付,而【万科·官山望】(6-11F洋房,带装修交付,放风价2.4万/㎡)为带装修交付,还是较受各位高净值改善型购房者青睐!

R2020-025地块大致位置图
且值得一提的是,2020年12月7日,通州土拍市场新出让一宗优质宅地R2020-025地块,就位于【万科·官山望】项目的东南侧,该地块历经5个小时的激烈竞价,参与434轮报价之后,最终被【南通市房地产开发集团&江苏吉浩置业】强势竞得,最终成交地价26690元/㎡,楼面价14047元/㎡,总价9.8亿元,溢价率40.47%!
该地块总出让面积36851㎡,容积率1.5-1.9,建筑密度≤20%,限高60米,出让年限为70年。结合该地块的各项经济指标分析,该地块未来或将打造成精品住宅楼盘——12-18F小高层系列产品。

R2020-025地块成交详情
土拍市场持续热浪迭起,新房市场又不断添火加薪,【万科·官山望】是万科进驻通州的又一城市运营项目,有项目品牌带来的资源导入和城市开发经验,该项目或将成为提升区域能级的全新驱动力,后期正式开售势必又将掀起一股抢房大战!
【注:本文输出价格、户型、项目介绍等仅供参考,最终以该项目售楼处公布为准,最终解释权归售楼处所有!】
文章部分内容来源:网络
南通房谈、楼市通州收集整理,侵权即删