
恐怖短篇鬼故事
独家专业原创鬼故事大全 →(kbdpggs)

从零开始学吉他
典谱,教学,作品 →(clksxjt)
水利水电施工技术 导航分栏,点击相关字体进入相关分类
论文
书集
仪器
空位
空位
规范
二建
教学
空位
空位
图集
软件
空位
空位
空位
地面
1
篮球专用运动地板

篮球专用运动地板三维示意图
1、设计时应考虑地板下通风,并在施工图中绘出地板通风箅子和龙骨骨通风阵位置及大样;
2、粘结用胶需选用运动用木地板专用胶粘剂
3、详细技术参数见厂家资料

网络地板安装

静电地板安装三维示意图
1、原建筑钢筋混凝土楼板
2、1:3水泥砂浆找平
3、1:3水泥砂浆抹面压实赶光,干后卧铜条分格(铜条打眼穿22号镀锌低碳钢丝卧牢,每米4眼)
4、可调节支架系统
5、静电地板

自流平做法

自流平做法三维示意图
1、原建筑钢筋混凝土楼板
2、50厚C10细石混凝土垫层,Φ6钢筋@150
3、20厚1:3水泥砂浆找平层
4、1.5厚JS或聚氨酯涂膜防水层
5、10厚1:3水泥砂浆保护层
6、20厚1:3水泥砂浆找平层
7、自流平界面剂
8、水泥基自流平砂浆层
9、底涂层
10、环氧树脂(或聚氨酯薄涂层)

地沟做法

地沟做法三维示意图
1、最低处增加暗藏地漏且有暗沟防止第二层防水渗满
2、原建筑钢筋混凝土楼板
3、∮50 水管,丝扣固定
4、20厚1:3水泥砂浆找平层
5、1.5厚JS或聚氨酯涂膜防水层(一次防水)
6、10厚1:3水泥砂浆防水保护层(一次防水)
7、灰砖砌筑水沟一次防水完成后做防水保护(厚度依现场实际)
8、30厚1:3水泥砂浆找平层
9、1.5厚JS或聚氨酯涂膜防水层(二次防水)
10、30厚1:3水泥砂浆粘结层
11、10厚素水泥膏
12、防滑砖
13、1.5厚不锈钢
14、20厚不锈钢防滑格栅
15、10厚1:3水泥砂浆防水保护层
16、20厚1:3水泥沙浆粘结层
17、地砖(8~12厚,干水泥擦缝)(找坡)

铝型材轨道门槛制作

铝型材轨道门槛制作三维示意图
1、原建筑钢筋混凝土楼板
2、1:3水泥沙浆找平层
3、改性沥青防水层,水泥砂浆防水保护层
4、1:3干硬性水泥沙浆结合层
5、10厚素水泥膏(黑/白水泥膏)
6、铝型材移门下轨道预埋
7、石材(六面防护)

木地板+门槛石+地砖工艺

木地板+门槛石+地砖工艺三维示意图
吊顶
2
风口与金属板相接

风口与金属板相接三维图示意图

工艺说明:
1、根据图纸确认风口的大小和位置
2、根据开好的风口与吊顶的高度确认帆布的大小长短
3、安装空调系统风管
4、龙骨的安装
5、风口的安装

玻璃隔断与铝板相接

玻璃隔断与铝板相接三维图示意图

工艺说明:
1、在顶棚和地面弹出玻璃隔断的位置线
2、安装固定下部的锚固件
3、再完成隔断上部的安装
4、中间填满橡皮垫或填充剂
5、最后用密封胶密封

窗帘盒与玻璃幕墙相接

窗帘盒与玻璃幕墙收口节点三维图示意图

工艺说明:
1、龙骨吊件与钢架转换层焊接固定,连接处满焊,刷防锈漆三遍
2、50主龙间距900mm,50副龙间距300mm,副龙横称间距600mm
3、18mm细木工板刷防火涂料三度,与吸顶吊件采用35mm自攻螺丝固定
4、9.5mm厚纸面石膏板,用自攻螺丝与龙骨固定
5、满批耐水腻子三度
6、乳胶漆涂料饰面

暗藏灯带窗帘盒

暗藏灯带窗帘盒三维图示意图

工艺说明:
1、龙骨吊件与钢架转换层焊接固定,连接处满焊,刷防锈漆三遍
2、50主龙间距900mm,50副龙间距300mm,副龙横称间距600mm
3、18mm细木工板刷防火涂料三度,与吸顶吊件采用35mm自攻螺丝固定
4、9.5mm厚纸面石膏板,用自攻螺丝与龙骨固定
5、满批耐水腻子三度
6、乳胶漆涂料饰面

木饰面与钢结构圆柱相接

木饰面与钢结构圆柱相接三维图示意图

工艺说明:
1.龙骨吸顶吊件用膨胀螺栓与钢筋混凝土板固定;
2.50主龙间距900mm,50副龙间距300mm,副龙横称间距600mm;
3.9mm厚多层板刷防火涂料三度,用自攻螺丝与龙骨固定;
4.木饰面采用挂条固定;
5.加工定制内经300mm,外径350mm成品木饰面线条,与木饰面固定
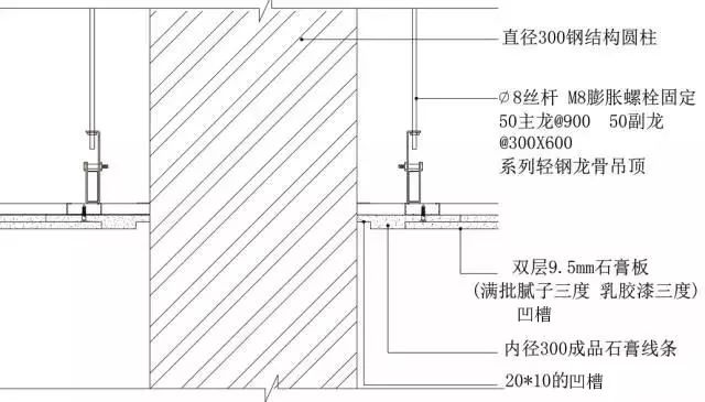
纸面石膏板与钢结构圆柱相接

纸面石膏板与钢结构圆柱相接三维图示意图

工艺说明:
1.龙骨吸顶吊件用膨胀螺栓与钢筋混凝土板固定;
2.50主龙间距900mm,50副龙间距300mm,副龙横称间距600mm;
3.加工定制成品石膏线条,内经300mm,外径450mm,预留20*10的凹槽;
4.9.5mm厚纸面石膏板与成品石膏线条用自攻螺丝与龙骨固定;
5.满批耐水腻子三度;
6.乳胶漆涂料饰面;
注意:留20*10的凹槽
墙面
3
石材与混凝土墙相接

石材与混凝土墙相接三维示意图

工艺说明:
1.墙面做JS防水层;
2.选用石材18mm,均经过六面防护、晶面处理;
3.塑造石材造型,上下口做3mm倒角;
4.石材安装前进行打眼,方便铜丝固定(上下共4个眼);
5.钢筋与石材固定;
6.土建墙体固定膨胀螺栓;
7.钢筋于螺栓固定,钢筋成网状;
8.铜丝栓绑与钢筋网;
9.石材与墙体之间填充水泥砂浆,即灌浆。

陶瓷马赛克隔墙工艺做法

陶瓷马赛克隔墙工艺做法三维示意图

工艺说明:
1.选用马赛克,表面平整、尺寸正确、边棱整齐。
2.上下固定75天地龙骨,上38穿心龙骨完成基层施工。
3.固定水泥板,上双层钢丝网。
4.水泥砂浆抹灰找平处理,一定保证平整度。
5.刮毛处理,保证粘结层的附着力。
6.铺贴马赛克,完成施工。
7.揭纸、调缝、擦缝。

玻璃窗户与墙面相接

玻璃窗户与墙面相接三维示意图

工艺说明:
1.玻璃物料选样,无划痕,无损伤。
2.钢架基层预埋。
3.U型槽的焊接安装。
4.弹性胶垫填充。
5.安装玻璃,透明胶条填充。
6.收口处3mm打胶处理。
7.清理,保护。

加气块墙石材干挂

加气块墙石材干挂三维示意图

工艺说明:
1.选用石材18mm,均经过六面防护、晶面处理。
2.塑造石材造型,上下口做3mm倒角。
3.加气块墙体固定镀锌钢板,一般用8#穿墙螺栓固定。
4.在干挂件无法满足造型的需求下,采用满焊5#角钢转接件,以调整完
成面与墙体的间距。
5.满焊8#镀锌槽钢竖向。
6.满焊5#镀锌角钢横向龙骨。
7.固定不锈钢干挂件。
8.固定不锈钢干挂件,AB胶固定石材,完成安装。
9.近色云石胶补缝,水抛晶面。

艺术玻璃与墙面相接做法

艺术玻璃与墙面相接做法三维示意图

工艺说明:
1.玻璃物料选样,无划痕,无损伤。
2.钢架基层预埋。
3.钢架基层焊接。
4.使用结构胶安装艺术玻璃。
6.安装完成,清理,保护。

木龙骨干挂木饰面墙面做法

木龙骨干挂木饰面墙面做法三维示意图

工艺说明:
1.30*40mm木龙骨中距300mm,刷防火涂料三度,用钢钉与木桢固定,
木桢固定在混凝土墙体内。
2.12mm厚多层板基层找平处理,用钢钉与木龙骨固定,刷防火涂料三度。
3.木挂条中距300mm,用枪钉与多层板固定,木挂条背面刷胶,且刷防火
涂料三度。
4.木挂条背面刷胶与木饰面用枪钉固定。
5.木饰面卡件安装,木饰面平整度调整。

混凝土隔墙乳胶漆类做法

混凝土隔墙乳胶漆类做法三维示意图

工艺说明:
1.混凝土隔墙表面清除干净,墙面滚涂界面剂一遍,素水泥浆一道内掺水重
3%~5%的108胶。
2.10厚1:0.3:3水泥石灰膏砂浆打底扫毛
3.6厚1:0.3:2.5水泥石灰膏砂浆找平层
4.满刮三遍腻子(内掺水重3%~5%的108胶)
5.封闭底涂料一道,待干燥后找平、修补、打磨
6.第三遍涂料滚刷要均匀,滚涂要循序渐进,最好采用喷涂。

业务范围
一.著作类
代做专利发明,实用型,计算机软件著作,作品著作
二.软件类
广联达,易达,易投,PKPM,恒智天成,天津建经,算王,E算量,E筋,品茗资料,品茗安全计算,筑业,宏业,同望,3D3S,盈建科,南方CASS-纬地,斯维尔等.定额等. 成心要的直接联系,先款后货!
三.学历类
中专,高升专,专升本+学士学位
四.职称类
代评中高级职称,*文代论写**代发!
五.布鲁克S25吉他
从我这拿布鲁克吉他.终生享受指弹版曲
注:想要各种资料软件的一定要先款后货.1个月内发货!您的先款用于购买相对应的空狗,本人在进行调试.测试.完成后就发货.不要问无关的话题. 免费资料请加QQ群:8682839
关注微信公众号:cyq4088401 从零开始学工程
