北方民间家具用材 (民间家具鉴赏与收藏)

北方民间家具用材,民间家具鉴赏与收藏

- 学海遗珍 · 第八十九期 -

今天《学海遗珍》专题刊载的是陈增弼教授《北方民间家具初论》一文,原载于《室内设计与装修》,1997年第4期。

北方民间家具用材,民间家具鉴赏与收藏

北方民间家具初论

文 / 陈增弼

本文“北方”一词,是指我国在北纬35°以北的西北、华北、东北地区,也就是秦岭以北包括黄河流城、塔里木河流域,以及辽河、松花江、黑龙江流域。

在这辽阔的北国,最大的自然条件就是夏无酷暑,冬有严寒。冬季平均气温大约都在摄氏零度以下,少部分地区在-20℃以下,因此防寒保暖就成为北方民居首要考虑的问题。

北方民间家具用材,民间家具鉴赏与收藏

北方民间家具用材,民间家具鉴赏与收藏

于是在长期历史流变中,形成了房屋外墙厚、层高低、外轮席简洁以及使用火炕、火地、火墙的特点。北方民居的这些特点也必然对当地的室内、家具产生影响。

北方民间家具的粗犷有力,用料大,装饰纹样豪放的风格,在中国传统家具中占有重要的地位。

北方民间家具用材,民间家具鉴赏与收藏

民间家具与民居的关系是“表”与“里”的关系。家具是建筑使用功能的延伸和补充,因此对民间家具的研究,应是对民居研究的一个重要侧面,对民间家具的研究和保护,应当提到日程上来了。

应当提出的是,对民居的破坏,往往出于无知或不重视,而民间家具的流失或被破坏,则是更多地受经济利益的驱动。我们希望更多研究民居的学者、专家能够关注并重视民居中的家具。

笔者呼吁:应当加强对民间家具的研究,应当对民间家具中的精品给以保护。

一、北方民居室内的家具布置

北方民居与其他地区的民居一样,也是由各种使用功能的房间组成的,其中摆放较多家具的房间是卧室与客厅。

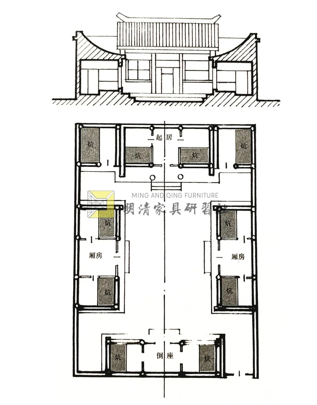
北方民居院落的主房一般是坐北朝南,一明两暗式布局。明间多为客房,两侧次间则是睡觉用的卧房(图1、图2)。

北方民间家具用材,民间家具鉴赏与收藏

图1 北方民居一明两暗室内布局示意图

北方民间家具用材,民间家具鉴赏与收藏

图2 东北民居中的家具布置

(一)以八仙桌为中心的客厅家具布置

经济殷富之家,明间作为会客和生活起居用房,有时还用于婚丧嫁娶,四时节气举行仪礼的地方。在民居各类房间中,它具有更多的家庭公共活动的性质。

从家具类型来看,明间布置的家具多属可供垂足坐的高型家具。常见的格局是:靠北墙放平头案、翘头案或架几案,上摆砚屏、胆瓶、自鸣钟。案前放一张八仙桌,桌两侧为两把椅子,讲究一些的为扶手椅。桌前还摆放有高型的火盆架。明间两侧多摆放面盆架、半桌、凳、墩子等,为全家用餐、会客等人多时使用。

北方民间家具用材,民间家具鉴赏与收藏

山西乔家大院

一般民家客人较少。明间只作为厨房和仓储之用。两侧各有一个灶台,与次间的火炕相连,做饭、烧水,甚至煮猪食都在这里进行。靠北墙摆放八仙桌、条桌或者是储粮的躺柜,还有碗橱,甚至小型农具等。

(二)以火炕为中心的卧室家具布置

北方天寒,卧室内必须取暖,取暖的方式普遍使用火炕。再冷的地方还有火地、火墙,除此以外还有矮型的火盆,用以辅助取暖、保存火种。

炕,就是固定式的床。一般沿南向靠窗搭设(图3、图4)。此处室内光线比较明亮,冬季也是争取阳光直接照射的地方。炕上铺席,席上有的还铺一层毛毡。沿墙或糊纸,或油漆、彩绘炕墙画。

北方民间家具用材,民间家具鉴赏与收藏

图3 晋中民居火炕分布示意

北方民间家具用材,民间家具鉴赏与收藏

图4 陕西民居单体窑洞中炕的分布图

人在炕上活动,基本上是盘腿坐或跪坐式,或自由坐式,同时炕上摆放的家具,从家具类型来看,都是属于低型家具,如矮的炕桌、炕案、炕几、炕琴、被格、矮火盆架等,因此北方民间火炕上的生活方式也可以看作是古代席地而坐生活方式的一种遗存。

北方民间家具用材,民间家具鉴赏与收藏

卧室内除大面积的火炕外,地下摆放的家具也可大致分为两种:一种是经济条件富裕之家,地上摆放顶箱立柜、衣箱、立柜、条桌、抽屉桌、凳、板凳等。一般农家则大多沿北墙一字排开摆放躺柜,柜前摆放板凳、凳子等。

这里应当说一说北方特有的家具——躺柜(图5)。

北方民间家具用材,民间家具鉴赏与收藏

图5 躺柜示意图

躺柜一般是农村木匠就地取材,就地打做。它的特点是容量大,基本上是放大加长的大箱子,有二联躺柜、三联躺柜之分。

长度约为150~300厘米,宽度约为120厘米左右,储存衣物、被褥、粮食等,还具有案桌的家具功能。柜上还可摆放生活用具,如镜、饮水具、学习用具等。

它的基本构造是把柜面分成前后两部分,靠墙处为固定式柜面,不掀起不移动,其上就是摆放器物的地方,靠前面为活动的柜面,可以掀起、拿下,并在前面中间边缘处安有扣吊,可以上锁。

还有一种躺柜如晋中、雁北等地,躺柜的上部柜面全为固定式,而在前面做成左右可开启的门,使用时把门打开,装入或取出储存的衣物。

晋南或山东、河北等地,还有一种箱柜,上部是箱子,下部是一个矮柜,可分开搬动,使用也很方便。

总之卧室中的家具,多种多样,随地区不同,也会有不同类型的家具。

二、北方民居家具类型

北方民间家具用材,民间家具鉴赏与收藏

民间家具受经济条件限制,一般因陋就简,注重功能。在类型上,大略可分为七类。

(1)坐具:如*团蒲**、小板凳、条凳、马扎、墩子、方凳、靠背椅、灯挂椅、扶手椅、圈椅、山柳圈椅(乞丐椅)、直背交椅、圆背交椅等。

(2)承具:如炕桌、炕几、炕案、肴桌、八仙桌、月牙桌、抽屉桌、条案、平头案、翘头案、架几案等。

(3)庋具:如炕琴、被格、拜匣、印匣、小箱、药箱、衣箱、柳条箱、官皮箱、小柜、坐柜、躺柜、碗柜、箱柜、药柜、书柜、书格、立柜、顶箱立柜等。此外还有梳妆台、闷户橱、联二柜、联三柜等。

北方民间家具用材,民间家具鉴赏与收藏

(4)卧具:如榻、罗汉床、架子床、拔步床等。

(5)架具:如面盆架、衣架、手提式衣帽架、灯架、镜架等。

(6)屏具:灯屏、砚屏、座屏、折叠屏风以及隔扇等。

(7)其他:脚踏、滚凳、枕凳、都承盘、茶盘、神龛、祖先匣、笔筒、捧盒等。

北方民间家具用材,民间家具鉴赏与收藏

三、北方民居家具用材

“就地取材”是民居家具的用材原则。北方树种多为榆、柏、槐、桑、柞、梓、椴、栎、紫榆、曲柳、松、杉、杨、柳等。

在长期劳动实践的基础上,民间木工,对当地的树种、材性、纹理、强度、韧性、色泽等十分了解。因此本着材尽其用的精神,什么家具用什么材种,在民间已形成了一种习惯的做法,而且在同一件家具上,不同材质的搭配,也有了不成文的一套规矩。

北方民间家具用材,民间家具鉴赏与收藏

榆木纹理(一)

北方民间家具用材,民间家具鉴赏与收藏

榆木纹理(二)

坐具因为受力多样和移动性大,大多使用强度大、韧性好的材种,如榆木、紫榆、柞木、槐木、桑木、枣木等。

如:马扎用桑木、枣木、柞木为多;凳、椅、圈椅用榆木为多;乞丐椅(一种简易圈椅)的椅圈和腿为一木弯成,河南以紫榆为多,山东以河柳为主(图6)。

北方民间家具用材,民间家具鉴赏与收藏

图6 北方常见的乞丐椅

承具用木比较广泛,几乎北方树种都可以制作,常见的桌案仍以榆、柏、梓、槐为主。庋具因为要求变形小,有足够的强度,以榆木、槐木、核桃楸木为多,大漆类箱柜,多用杉木、松木为胎。

卧具以榆木、紫榆、核桃楸木、槐木、梓木为主。屏具以楸木、核桃木为主。

北方民间家具用材,民间家具鉴赏与收藏

核桃木纹理(一)

北方民间家具用材,民间家具鉴赏与收藏

核桃木纹理(二)

以上就北方民居家具总体而言,至于具体的使用木材,基本上是有什么木材就使用什么木材,因此民间家具用材花色品种是五花八门,十分丰富多彩的。

四、北方民居家具装饰

民间木工工匠在对家具的装饰纹样和手法上,也是积累了丰富的经验。

1.对木材纹理和色泽的使用

对各种木材的天然纹理和色泽的选择与利用,是民间家具的一种很优秀的手法。例如柜橱类家具的两扇门的门心板,是木工匠师着意选择的部位,一般都是选择一块花纹比较好的木材,锯解为二,以中线为轴左右对称镶嵌,这样既有木纹变化的自然美,又在变化中获得对称美,更有讲究的橱柜,不仅两门心板是对称的,而且两侧山板也是纹样对称的,有的榆木柜就是如此,既美观又富有创意。

对椅、榻、罗汉床等显要部位的构件如靠背、围板,工匠也挑选木纹好、色泽美的木板为之。

北方民间家具用材,民间家具鉴赏与收藏

此外民间工匠还利用木材的不同纹理、色泽,进行有意识的搭配、镶嵌以取得赏心悦目的美学效果。例如在核桃木上,镶嵌瘿木、黄杨木,在硬木上镶嵌椰壳、竹簧等,都有优秀的作品留存后世。

2.线脚的设计

对家具的零部件的断面轮廓造型设计,是民间家具取得感人整体美的重要组成部分。

如家具的腿子、掌子、杆部、边抹、牙板、楣子等,一般都根据家具整体风格的要求,进行或简或繁的线型和截面的细部造型设计。

北方民间家具用材,民间家具鉴赏与收藏

这种对家具细部的造型设计,民间家具为我们积累了十分丰富和宝贵的经验。例如阴线、阳线、灯草线、皮条线、剑脊线、荞麦棱、文武线、冰盘沿、打洼、剁边、两柱香、三炷香、泥鳅背、螳螂腿……造型多样,组配自由,变化多端,十分丰富。

北方民间家具用材,民间家具鉴赏与收藏

北方民间家具用材,民间家具鉴赏与收藏

北方民间家具用材,民间家具鉴赏与收藏

北方民间家具用材,民间家具鉴赏与收藏

3.攒接、斗簇

民间家具在床榻的围子、倒挂楣子,气死猫柜的门扇、侧山板,书格的围栏、后身板,衣架的花牌子等处,面积大的需要灵透的装饰花板处往往使用这两种装饰工艺手法。

攒接、斗簇与传统建筑的栏杆和窗格是共同和一脉相承的。

攒接:就是用纵横直斜的短料,用榫卯衔接、交搭而组成各种图案纹样,如“卍”字不到头、“十”字连方等。

北方民间家具用材,民间家具鉴赏与收藏

斗簇:是把锼镂出的小型花板,用榫卯斗拼在一起形成各种图案纹样,如四簇云纹、四簇夔纹等。

北方民间家具用材,民间家具鉴赏与收藏

在家具中除单用攒接或斗簇外,有时二者兼用,组成变化灵活的各式图案。

4.雕刻

雕刻在民间家具的装饰手法中是一个大项,变化多,表现力强。

(1)技法有线刻、浮雕、透雕、圆雕、混合雕等。

(2)民间家具雕刻的题材十分丰富。

①植物纹:卷草、折枝、竹、松、梅、桃、柳、灵芝、牡丹、荷花、菊花、兰花、西番莲、树皮、竹节以及诸多花卉瑞草,如满池娇、穿枝莲、玉堂富贵等。

②动物纹:龙、草龙、夔龙、狮子、麒麟、螭纹、大象、十二生肖等;凤、草凤、夔凤、仙鹤、喜鹊、春燕等。

③人物纹:历史故事、儿童游戏、仕女、神仙、戏剧人物等。④山水云气纹:云纹、水纹、山水纹、落花流水纹等。

⑤ 文字纹:十字纹、万字纹、寿字纹、福字纹、禄字纹等。⑥几何纹:龟甲纹、双矩纹、雷纹、连珠纹、冰裂纹等。

⑦宗教纹:如佛八宝(轮、螺、伞、盖、花、罐、鱼、肠)、暗八仙(渔鼓、葫芦、萧、荷花、花篮、宝剑、扇子、笏板)、杂宝(银铤、方胜、珠、珊瑚、钱、元宝、犀角等)和五岳真形图等。

⑧ 吉祥纹:三友图(松、竹、梅)、四君子图(梅、兰、竹、菊)、五伦纹(凤、鹤、鸳鸯、鹊鸽、黄莺)、五福纹(福、禄、寿、喜、财)、四象纹(青龙、白虎、朱雀、玄武)、玉堂富贵、喜上眉梢、五福捧寿、狮子滚绣球、鲤鱼跳龙门、瓜瓞绵绵、鹤鹿同春、吉庆有余、龙凤呈祥、喜相随、太平有象、寿山福海等。吉祥纹大多出在清代,越到晚期,用的越普遍。

北方民间家具用材,民间家具鉴赏与收藏

北方民间家具用材,民间家具鉴赏与收藏

5.镶嵌

也是民间家具装饰工艺的一种,可供镶嵌的材料有木、竹、瓷、螺钿、珐琅、玳瑁、牛骨、牛角、象牙、玉石、珊瑚、珍珠、玛瑙、金、银、铜片等,百宝镶嵌为其代表。

6.铜饰件

民间家具使用铜饰件也是对家具进行装饰的重要手段。

素铜饰件:饰件表面光洁无瑕。

装饰铜饰件:在铜饰件表面再加工,如镀金、鎏金、錾花、锤合等。

北方民间家具用材,民间家具鉴赏与收藏

北方民间家具用材,民间家具鉴赏与收藏

北方民间家具用材,民间家具鉴赏与收藏

北方民间家具用材,民间家具鉴赏与收藏

铜饰件的造型多种多样:面叶和合页有圆形、长方形、委角方形、葵花形、菱花形、云字形、寿字形、蝴蝶形、自由形等。

吊牌有圆环、椭圆、长方、泉布、古瓶、铃铎、双鱼、双龙、双凤、凸字、套环、小坠、套方等形。提环有半圆、长方、凹字等形。

- END -

北方民间家具用材,民间家具鉴赏与收藏