房屋信息
居室:4室
建筑面积:142平
所在城市:广东,广州
装修花费:40W

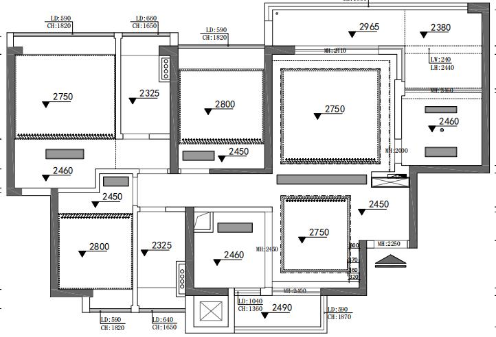
原始结构图
原户型问题:有一间房间较暗较小,分工不明确,狗狗没有地方
业主诉求:储物功能明确,需要有自己的游戏空间,女儿的小天地,有一间客房父母来的时候住,要有养狗的区域

户型改动:电视柜旁边的门改隐形门,小房间外扩
每个空间的改动:客厅原有推拉门拆掉,通铺出去,改成拱门。原有的电视护墙板和玄关柜拆掉,新增玄关柜位置跟餐边柜相连。电视背后原有房间太小,整体进行外扩连接大阳台。全屋木地板更换刷漆
客厅





原户型客厅的开间不打,将阳台的空间进行延伸,原本的推拉门改成拱门,电视护墙板采用栏栅格设计,将其旁空间的入口隐藏于其中,天花上无过多的灯饰,简约的无主灯加筒灯的合集,软装上克莱因蓝的布艺沙发、装饰画、地毯彰显强烈的线条感。
餐厅


餐桌台圆润的边角设计,可以减少日常走动时的磕碰,餐桌上方的吊灯造型别致,半圆弧形的筒灯形状设计, 靠墙处定制一排餐边柜,放置咖啡机等设备,充当小水吧台。
厨房

U字型的台面设计,动线流畅到位,地砖与墙面采用大理石通铺,耐用易打理。
主卧



主卧的色系以蓝色调为主,人字型木地板通铺,简约大气,利用飘窗台上方处设置软垫,闲暇之余可以坐在上面,放空半刻。软装上蓝灰色的床品与背景墙颜色相呼应,左侧做顶天的衣柜,转角处延伸做女主人的化妆台。
次卧

则是男主人专属空间兼顾次卧,方便客人与亲朋好友留宿、无过多的墙面装饰, 米驼灰色的的设计基调;简单不失温馨~
女儿房


整个女儿房打造了一个粉色的小天地,榻榻米地台式设计,形成一个高低差。靠墙面衣柜延伸到书桌一体式 ,四季衣物收纳毫无压力~