CAD打印图纸是一种数字化的设计过程,CAD打印图纸可以帮助设计师快速创建和修改设计,提高工作效率。此外,CAD打印图纸还可以提高设计的准确性和一致性,减少设计错误和重复工作,从而节省时间和成本。另外,CAD打印图纸也可以帮助工厂加快制造和生产过程。此外,CAD打印图纸还可以用于生产线上的机器控制和自动化,提高生产效率和准确性。

下面是一些常用的CAD打印图纸的工具分享。
AutoCAD
AutoCAD是一种强大的CAD软件,它被广泛用于各种领域的设计和绘图。它具有许多功能和工具,可以轻松地打印图纸。使用AutoCAD打印图纸的过程非常简单,只需要选择打印机和纸张大小,然后设置打印选项即可。

迅捷CAD编辑器
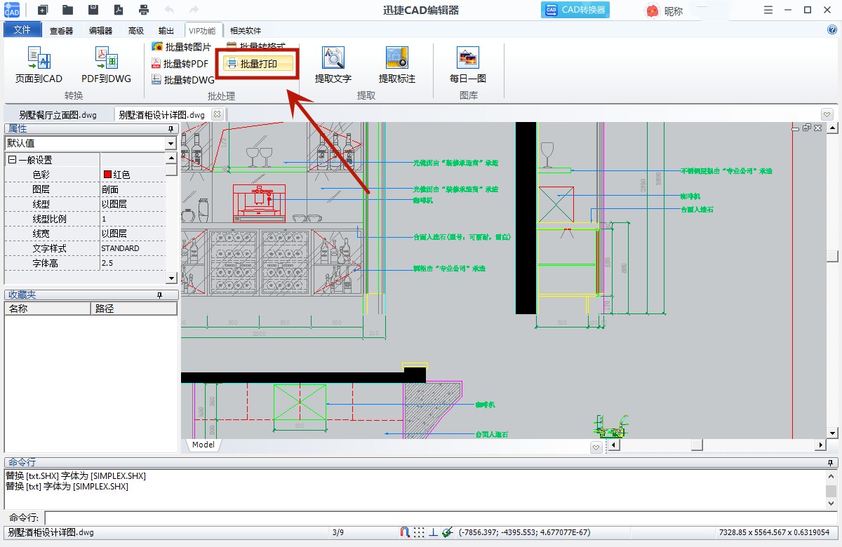
迅捷CAD编辑器是一款功能强大的CAD软件,它拥有许多优秀的功能,其中包括CAD批量打印功能。它可以同时打印多个CAD文件,大大提高了工作效率。

还可以根据自己的需求进行设置,包括打印页面大小、打印比例、打印机选择等。确保打印出的图纸完全符合原始CAD文件中的尺寸和比例。

CATIA
CATIA是一款3D CAD软件,可以用于设计和绘制各种三维图形。它也可以用于打印图纸,但与其他软件相比,打印图纸的过程可能会有些复杂。

通过使用CAD打印图纸,设计师和工厂可以更加高效、准确和可靠地完成设计和生产过程,从而提高产品的质量和竞争力。