

转眼又到周四了,明日就是周!五!心想各位心里应该早已经打起了节日的小灯笼吧。
屋哩好屋集的第三期新鲜出炉!上一周,wuli屋主@shuyan & @nono让一家人直接住在了花园里边。而这一次则是一个彻头彻尾的北欧风楷模,并且房子是半包结束,所有的规划、购买和安排都是由屋主夫妻两人亲自结束的~


“在大学时期,最早是通过花瓣网看到了许多漂亮的家居图,保藏了许多,但是那个时分对风格没有明晰的界定,仅仅单纯觉得漂亮,可能什么风格都有。作业往后常常用pinterest搜集材料,就看到了更多的外网家居图片。纯净极简的北欧风格深化我心,我志向中的家就是要白色居多,原木配色,绿植装点,黑色勾勒,尽可能完结北欧。”
——Daisy

「房屋信息」
户型:两室一厅,目前就只需Daisy和老公二人寓居,使用面积:产证面积70㎡,实践使用面积大约56㎡。房屋位置:上海 普陀,装修花费:20万,含家电。

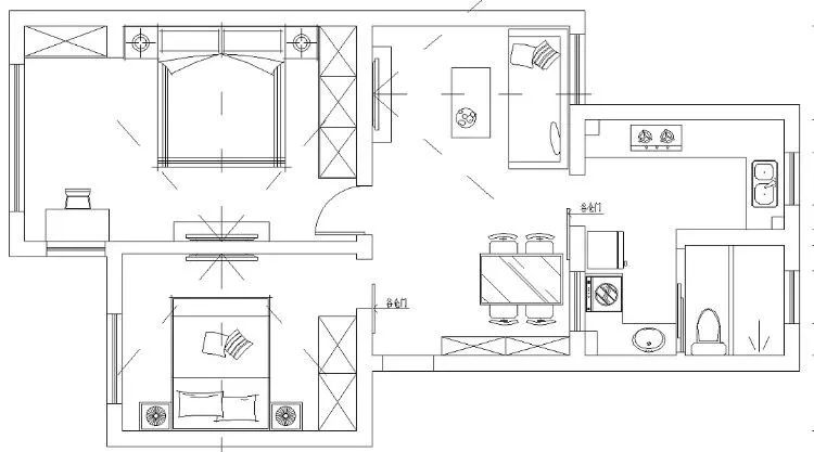
▲装修前户型图

这就是Daisy第一次走进这个家时它的姿态,老实说这种90年代遗留下来的蜡黄蜡黄的画风,跟漂亮这两个字彻底沾不上边。好在户型规矩,其时是全小区可贵出来的双南户型。位于小区中心,很安静。
拿到房后,夫妻二人想都不想就初步进行了一场大改造,原有的装饰统统砸掉一点不疼爱。改造很辛苦,但它的意义就在于亲手把家一点一点变成自己最喜欢的姿态所带来的幸福感。

▲装修后户型图
墙体没有做许多改动,整个改造是半包下来的,只需水电、垒墙、刷油漆、做柜体内部是装修队做的,其他,瓷砖,橱柜,各个柜门,卧室门,入户门,墙面油漆,黑色铝合金窗户,白色浴室隔断门,厨房吊顶,木地板等等都是自己周末去买的。
「门厅」

即使是门外也要美美哒,好迎接来家里的客人,以及自己~Dreamhouse,就是字面意思愿望小屋。这个词出自很久从前看的一部电视剧《绝世好爸》,那个时分我就种下了dreamhouse的愿望。
「玄关」

家里位置小,根本没有什么额定的空间给到玄关。但是怎么说呢,仍是觉得“回到家”是一件隆重的事吧,所以使用墙面的空间做了洞洞板,来应对室内室外空间变换时需求放置的物品,实际也证明这个主意真的很明智。

「客厅」

这是一初步自己P的客厅效果图,虽然粗陋,但是也能大约说明一些状况啦。我并不是一个实用主义至上的人,对我而言漂亮颜值是第一位,然后才是实用性(我这么说会不会被喷,哈哈~~)其次,对我来说小户型动线流畅,视感亮堂很重要,这也是我使用大面积白色的重要原因。

这是17年10月从前的安排,客厅和餐厅连在一起,虽然空间不大,但是还挺舒适连接的。周末的晚上经常关上主灯,点着我的小串灯窝在沙发里看电影感觉特别温馨~~

沙发来自宜家,很喜欢,方方正正的线条,浅灰色耐脏。因为担心小空间颜色太多会比较紊乱,失去我心目中志向的北欧,所以在家具和软装配色上我尽量都选用低饱和度的颜色或许直接纯白。茶几购于淘宝hay,之后应该会换成四条腿的圆形茶几,因为我家机器人每次扫地会有阻碍。地毯是淘宝minimore的质感感人~客厅的黄铜吊灯应该是全家产品里我最喜欢的一件了。来自Housedoctor 代购。第一次见到就被深深吸引,感受紊乱空间的线条魅力吧~
这是17年10月往后的安排啦,仅仅换了地毯、装饰画,增加了绿植和置物架,比过去多了一些颜色,整个空间的感受就不一样了,变得愈加温暖的感觉。地毯购自zara home,装饰画是屋主自己挑选的图片打印的看,置物架是muuto的,上面摆了圆叶尤加利和毛边弗朗的插花,家里一直都有插鲜花,花是家里的佳人,美化家里的颜值还能取悦自己。
啊,还有Normann的钟。
「餐厅」

从客厅看餐厅。红色谷仓门后就是我家的厨房。

这个谷仓门是我看了许多谷仓门图片之后选出来的,我觉得是我家的点睛之笔。

喜欢谷仓门是因为它本身就极具装饰性,来一抹大红,感觉整个空间很活泼。但是我们的客厅位于中心,只需一扇小窗,所以我又期望有一个大幅度镂空的玻璃门,来加强客厅的通透性,采光性和客厨的互动性。终究就把这两个需求结合起来,拿着网图找淘宝专门做谷仓门的店家定做的。

要评拍摄最佳那就是小串灯没跑了,性价比最高的气氛大师。

很想要透明玻璃的餐边柜,里边放一些漂亮的陈设。BUT,橱柜供货商第一次做回来没有做玻璃,第二次做回来做成了磨砂玻璃。终究就这么凑合了。。。里边目前放一些杯具,和酒。漂亮的陈列品需求逐渐搜集。

「厨房」
从厨房看客厅是酱婶的。冰箱上贴满了冰箱贴,都是我淘宝的售后卡片,实在是情不自禁,看到漂亮的就想往上贴,当搜集明信片了。顶上放了一盆常春藤,就变成了红配绿造型。

厨房其实挺小的,只需6㎡,好在跟卫生间干区连在一起,显得不那么短促了。受网图影响,我更偏心亮堂仙气十足的白色橱柜,包括台面也固执的用了纯白高密石英石,价格略高于带杂点的一般石英石。
许多人会问白色的台面是不是很难打理。*操我**作下来的感受是,每次做晚完饭就会拾掇洁净,并没有特别难收拾啊,难道用黑色的台面就可以随便打扫么。。。定时给台面撒点氧净,撒点热水泡开,用旧牙刷大致刷一下,再放置半小时,然后清洗掉,可以去黄去除固执污渍。洗完闪闪的白~~

厨房一角和周围的卫生间干区,正本的户型是厨房穿过卫生间再出来餐厅的,我觉得端着菜穿过卫生间十分不爽,所以就把厨房门的位置改了过来,正本卫生间的门封起来,考虑到客厅的采光,留了半扇铁艺玻璃窗,窗户正对餐厅。

好了,,今天的分享就到这里

如果有对设计感兴趣的好友,可以加入我们的设计学习交流群:687521844, 有个验证码填写 菲欧 就行了
群里有各路大牛以及很多学习资料和软件。不管你是小白还是大牛,我都挺欢迎,不定期分享干货,欢迎初学和进阶中的小伙伴。
大家可以一起学习一起进步
