玻璃轻质隔断让你的家美了100倍 (玻璃隔断给你一个宽敞明亮的家)

当现代简约与美式风格相融合,孕育而出的简美风格,清爽温馨又不失质感,受到很多年轻的小户型业主的喜爱。就如这套82㎡简美风格的家,主人是一对年轻小夫妻,男主人是一位从业多年的室内设计师,经手过很多不同风格的设计项目,最终给自己的家选择简美风格,而整个家也是自己着手设计的。

极简风小卧室玻璃隔断,玻璃隔断极简意式风

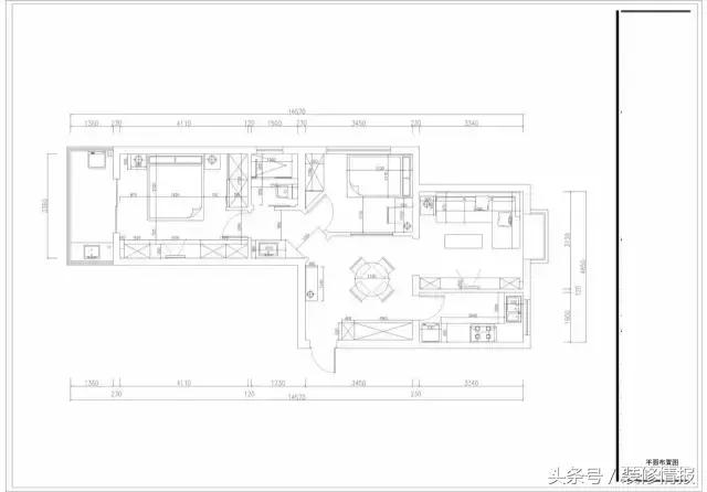
户型格局是两房一厅一厨一卫,入住业主一家三口和狗狗们。房子本身是*迁拆**房,采光挺好的,就是户型太普通,原本的户型一进门,餐厅和客厅就毫无保留地暴露在眼前,私密性太差。

所以设计师果断把客厅和次卧的位置进行了对调,在格局上做了很大调整:首先在原本客厅的区域做了玻璃轻质隔断,隔出一间儿童房;再把原本次卧的房间打通变成现在的客厅,增大了客厅深度。同时把厨房略微缩小了一点,采用了透明玻璃门,通透和采光性更好,同时增加了一组收纳柜,担当收纳重任。

极简风小卧室玻璃隔断,玻璃隔断极简意式风

进口玄关处的瓷砖很美观,美式经典的工字砖与地上的八角马赛克砖搭配,简约大气,悬挂处的鞋柜与餐厅的储物柜连在一起,节省空间,又是最佳动线的设计。

极简风小卧室玻璃隔断,玻璃隔断极简意式风

这样设计,不仅很好地保护了房间私密性,而且格局看起来也立刻高大上了。女主人说她最喜欢这样私密一点的客厅,可以窝在沙发上看看电视,睡个下午觉,感觉很好。

极简风小卧室玻璃隔断,玻璃隔断极简意式风

简美的风格无论是软装还是硬装线条都比较简洁,空间看起来更加清爽。就像设计师家的客厅非常强调美式的线条,比如,电视背景墙和天花板、护墙板的线条都有美式风格的影子。

咖啡色、驼色、米色、暖灰、灰蓝灰绿等都是美式风格比较主流的墙面色彩,他们家在装修的时候,以白色和暖灰色做为房间的基调,这样会让房间看起来更明亮也也更大,主色调确定之后,可以通过变换软装来让家的色彩更丰富。

极简风小卧室玻璃隔断,玻璃隔断极简意式风

电视墙的设计非常实用,简洁的墙壁两边增加了两排对称储物柜,可以很好地收纳常用物品、装饰品或者书,客厅同时兼具了书房的功能。客厅的飘窗设计非常赞,不仅采光好,而且也释放了很多的储物空间,坐在窗台看书喝茶,或者摆放几盆绿植,都是非常棒的体验。如果喜欢这个储物柜,点击文末“阅读原文”,可查看编辑推荐哦!

地板也是客厅的一大亮点,木质纹理,质感很好,即便光脚踩在上面都非常舒适,也不怕孩子磕碰到。茶几、边桌还有台灯都是网上淘来的,性价比高,质量也不错。

极简风小卧室玻璃隔断,玻璃隔断极简意式风

极简风小卧室玻璃隔断,玻璃隔断极简意式风

按照原本的房型布局,餐厅采光很差,所以设计师想尽一切办法把把光线引进来。除了将客餐厅设置成开放式之外,设计师在餐厅与卧室、厨房之间使用了玻璃轻质隔断,这样既保留了原有的采光,又可以把卧室、厨房的光引进来,餐厅的感觉更加通透。

极简风小卧室玻璃隔断,玻璃隔断极简意式风

装修的时候,业主的宝贝还没有出生,但考虑到将来家庭人员的增加,一定会多出很多杂物,于是他对储物空间做了很多的设计安排。在餐厅和客厅增加了很多储物柜,扩大了收纳功能。

极简风小卧室玻璃隔断,玻璃隔断极简意式风

餐厅边上的这组收纳柜,框架是木工现场手工打造的,门板是订制的素门,后期统一刷的油漆,它兼具杂物柜、餐边柜和鞋柜三种功能。靠门的那边是鞋柜,虽然柜门和其他的一样,但它的亮点是在侧面,柜子下面设计了一个鞋凳,进出门换鞋就十分方便。

储物柜的中间采用镂空设计,并为小家电预留了插座,平时可以用来放手机钥匙钱包等杂物,也可以收纳碗筷。其他的柜子可用来收纳如吸尘器、烫衣板、小孩子的玩具车,还有替换的餐巾纸等生活杂物。

极简风小卧室玻璃隔断,玻璃隔断极简意式风

简约的餐桌,loft餐椅都是设计师从网上淘来的和整体的风格完美的融合在一起,餐桌上de 向日葵装饰,为家里增添了田园风。罗马地图装饰画是设计师的太太在网上找了好久才淘回来的,价格比较昂贵,但是挂在家里,格调满满。

极简风小卧室玻璃隔断,玻璃隔断极简意式风

主卧的设计非常简约,实木质感的床与床头的斗柜选择统一风格色系,有和谐美感,床头柜有非常棒的收纳功能,和墙纸同一色调的暖灰色移门衣柜非常省空间,卧室吊灯和台灯都选择了简约款。如果感觉单调的话,后期可以通过床品、灯饰、地毯之类的软装,来变换不同面貌的卧室风情,让人每一天都有不同的心情。

极简风小卧室玻璃隔断,玻璃隔断极简意式风

设计师的女儿非常喜欢百叶窗,所以想在儿童房的这个地方用百叶窗,但是在设计师的一再坚持下,采用了玻璃隔断的设计,女儿也很满意。所以儿童房与客餐厅之间透过玻璃连接,非常通透明亮舒适。

儿童房的床和写字台以及主卧的床都是定做的,因为空间小,买成品家具难免会遇到太大放不下,太小浪费空间等问题,这个时候就显示出定制家具的优势了,而且定制还有很有优势,比如材料可以随心挑选,木工师傅手工去做,更加有质感,也更放心。儿童房的这款椅子是设计师在淘宝上买的,看起来有种工业风的感觉,现在孩子还小,所以这个房间暂时充当居家办公时的书房。

极简风小卧室玻璃隔断,玻璃隔断极简意式风

选择玻璃轻质隔断,五金和玻璃的选择很重要,玻璃最好选择有隔音功能的,也要定期注意保养和维护。之前编辑专门分析过玻璃轻质隔断,想了解更多可以查看(轻质隔断链接)

极简风小卧室玻璃隔断,玻璃隔断极简意式风

因为家里只有一个卫生间,使用上不大方便,于是将卫生间改造成干湿分离,这样就不会出现卫生间的尴尬啦!卫生间干区的吊顶很别致,暗藏的灯带,晚上开灯感觉很温馨。台盆和房门的连接非常自然,门锁和柜门钮扣拉手都是用拉丝不锈钢的,间洁干净。

编辑留言:

设计师的家最打动编辑的就是玻璃轻质隔断的利用了,让家里显得轻盈又透亮,无论哪个房间,都能接收到阳光,惬意舒适。你喜欢这个简美的家吗?还有哪些疑问吗?欢迎留言与编辑分享。