卡洛·斯卡帕的细节运用
20世纪最神秘和被低估的建筑师
当属卡罗·斯卡帕( Carlo Scarpa)
Carlo Scarpa 的建筑以充满了细节而著称

斯卡帕出生于威尼斯,在维琴察度过了他大部分的童年时期,斯卡帕先是在威尼斯的皇家美术学院学习建筑,在那里,他第一次展示了手工艺方面的才华。
卡洛·斯卡帕是一位没有追随者的大师,他不属于任何流派,没有任何惊人之语,而他又是一位令人敬仰和钦佩的大师,这不仅在于他的作品,更在于他的精神。

Scarpa对建筑局部与整体的观念充满了哲学的意味,建筑并非纯粹抽象的空间而是不同元素间的关系,墙、地面、天花、楼梯、门。
第二次世界大战之后,一大批的知名地标建筑需要再改造,国际上开始认可他的建筑设计。斯卡帕对细节的关注在现代建筑师当中几乎是无人能比的。他的手工艺技术经常让他沉醉在最小的细节上。

他认为,人与动物最大的区别在于:人有历史感。许多建筑师都希望自己的作品能在建筑历史的纵轴上表现出与前人呼应、让后人感动的力量。对此,斯卡帕有他自己的理解。
他毕生致力于一些历史性建筑的修复或扩建等小项目上,并在这些项目中倾注他全部的智慧和心血。

他的学生劳斯在斯卡帕的专集中这样写道:“卡洛·斯卡帕是运用光线的大师,是细部的大师和材料的鉴赏家,从本质上来说,他并不是一位纯粹的建筑师,而是一位艺术家,是一位有着建筑房屋冲动的艺术家。
一起来看卡洛·斯卡帕5部经典作品
老城堡博物馆
1955年—1957年

维罗纳老城堡(Castelvecchio),是中世纪斯卡利格尔王朝(Scaliger dynasty)最为重要的军事建筑。

14世纪的统治者斯卡拉家族在原有基础上建造了Castelvecchio城堡。随着维罗纳城成为威尼斯共和国的一部分,于18世纪该城堡被改建为威尼斯陆军学院。19世纪初,城堡遭拿破仑*队军**的破坏与改造,在居住院落建造了一座L形的新古典主义建筑用作防御工事及营房。一战后,城堡完成“军事使命”,于1925年改为陈列该地区中世纪艺术的博物馆。


设计稿
1956年维罗纳市政府决定将该馆改为市博物馆,并由卡洛·斯卡帕主持该项目改造。1958年到1964年斯卡帕对该博物馆进行修复和改造设计,并于1969年到1975年完成了整个工程。
斯卡帕在新与旧之间做了精心的平衡,通过各种片段的有序并置与分离来复活这些历史,适当的展示了原有建筑的历史并产生了全新的空间。

正面建筑立面采用了哥特风格的窗口形式,而右侧则采用了罗马风格的窗口形式,两者在拐角处过渡,产生历史穿越的微妙感觉。

博物馆入口的整体环境设计堪称完美,巨大尺度的整片大理石铺地,古典和现代混搭的喷泉水池,还有装饰风格的主入口以及侧面结合展厅突出空间的局部围合小花园都非常令人折服。即使在当下,都是绝佳的好设计。

卡洛·斯卡帕设计的老城堡博物馆首层,在继成城堡建筑厚墙斗型窗(北向)的同时,面向庭院的开窗完全采用现代装饰风格铁窗并且与外立面哥特式开窗及柱廊结合,创造出迥然不同的光影效果和展示场景。



卡洛·斯卡帕设计的老城堡博物馆城堡和新建建筑衔接的部分,由于发现了古罗马时期的遗址而必须加以保留,激发了大师的创作激情,局部设计精彩异常。首层展厅最后一跨其实已经在遗址上面了,斯卡帕采用了展厅跨过遗址在楼板开口俯视遗址的方式将遗址直接作为最后的展品拉进观览动线。

在古罗马遗址的部分,也是历史穿越时空加错的所在,设计地面部分和下沉空间源自意大利人文特色的文化遗迹生态理念,完全处于自然的保护状态和随意性的参观选择。

回望新建建筑,混凝土材料的竖向构件承托着一尊武士雕像,这里的风格似乎又有一点路易斯康的影子。进入古堡塔楼的门厅和楼梯间充分展示了斯卡帕的综合设计功力,将结构构件、工艺装饰、展品共同创造了一个展示场景。

卡洛·斯卡帕在古堡的内部改造中,大量使用了现代理念和材料,手法极为成熟和简练。这部钢板悬挂楼梯的细节设计也令人惊叹,旁边的钢板栏杆设计和加工都有非常高的水平。



改建中使用了传统的威尼斯磨光硬灰泥抹面、熟石灰抹面以及 Istrian 大理石铺面,较好地构筑出建筑空间的传统氛围,杆到地斜切,只有四五公分的收口,其实从这些地方可以看得出他对设计的用心。
奎里尼·斯卡帕里亚基金会
1961-1963年


奎里尼•斯坦帕利亚基金会所在宫殿,是意大利境内唯一一处将古老家族的遗产、住所、图书馆、档案馆、艺术收藏、内部装饰和家具摆设融为一体并完美保存的经典范例。这座十六世纪的宫殿坐落于里亚托桥和圣马可广场之间,内有公立图书馆和环境博物馆。底层和花园由建筑师卡罗·斯卡帕(Carlo Scarpa)于1960年代初修复。

斯卡帕设计的大门

博塔设计的大门
木桥原本是基金会主入口,卡罗·斯卡帕还在步行入口设计了有趣的空间。马里奥·博塔设计的白色部分,增加了公共活动部分,同时也把主入口移动到了白房子的石桥后面的大门。

一层平面图(深色区域为卡洛·斯卡帕Carlo Scarpa设计区域)
两栋建筑的外观都没有大的变动,沿河部分对步行入口和船行入口分别进行了重新设计,内部庭院重点进行了设计。


在翻修(1961-1963)之前,这里时常水患成灾,但在建筑师斯卡帕眼里水并不是一个问题,而是一个灵感的来源。



斯卡帕没有把水拒之门外,反而让它在建筑里流动得更加自由,更加戏剧化。他将水作为创造不同空间高度的水平隔断,考虑到威尼斯常见的涨水现象,将户外运河的水引向宫殿后的花园,从整栋大楼的正门到背后,是一个完整的令光影游戏的屏障,精雕细琢的细节处理,令每一角落都构成从材料、结构到颜色的有趣对话。


庭院花园的设计与主体建筑特别是一层展厅完全是一体化设计,不同潮位的水灾分级的地面上涨落,构成了不同形状的图案。



花园中有一个层次分明的方形荷花水池,流至迷宫纹样的大理石盘,再经高于步梯的狭长水道流经中古时期的石狮缓缓跌至铜制的同心圆水盆中,漫步园中仿佛时间也如同水流一般变的缓慢、轻柔,似乎忘记运河经年潮起潮落的印记。
Olivetti奥利维蒂陈列室
1957-1958年

Olivetti奥利维蒂威尼斯商店坐落在威尼斯的中心:圣马可广场的一角,于1958年开幕,由当时Olivetti品牌的掌管人Adriano Olivetti邀请意大利著名建筑师卡洛·斯卡帕设计。

首层平面图

二层平面图

剖面图

剖面图




这不是一个单纯售卖Olivetti打字机的空间,而是一个品牌展示厅,如同Olivetti品牌的一张名片,与企业坚持不懈追求创新与高质的文化相一致。斯卡帕在这里将建筑与周围环境的关系处理得恰到好处,完美的融合到一起。



此店虽小,但十分精致。它入口的精心设计,空间的妥帖安排,材料的巧妙运用,细部的精妙处理……都展现了卡洛•斯卡帕是一个细节大师。



地面铺装上,斯卡帕选择带有色差的马赛克不规则铺砌,营造了类似于威尼斯水面的波光和闪烁感。



斯卡帕还设计了一个自由伸展且带有漂浮感的楼梯,营造更加通透的空间。

最经典的设计还是斯卡帕利用商店前部的窗户,设计成眼睛的形象,引导游客进一步参观。



与石匠、木匠和铁匠的紧密合作,使他自己的建筑语言不断丰富,对材料的触觉不断敏锐。形状不再带有任何内涵或延伸的意义,它只代表它本身,它只代表美。手工艺是本土建筑语言逻辑的最佳载体。建筑师用独有的符号谱成乐章,工匠们运用各自娴熟的技巧建构美妙的音乐。
卡诺瓦博物馆
1955-1957年


博物馆原建筑为一座由拉扎里设计的巴西利卡式陈列馆。后来为迎接卡瓦诺诞辰200周年,斯帕卡(Carlo Scarpa)被委托在原馆东侧扩建一座新馆。

平面图
新馆位于与老馆毗邻的一块狭长空地上。斯卡帕将光的特性运用到极致,馆内所有展厅在空间体量及形式上都各不相同,提供了丰富的观展体验。


在卡诺瓦石膏雕塑博物馆的扩建设计中,卡洛 · 斯卡帕使用三面体玻璃窗让空间获得了多向度的光源,在各个方向起着漫射作用,而他无非是想“割一角蓝天下来”。


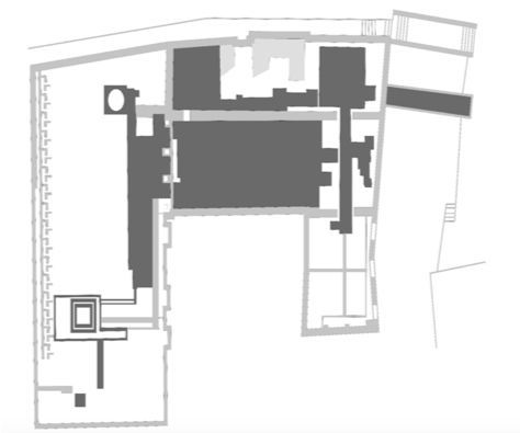
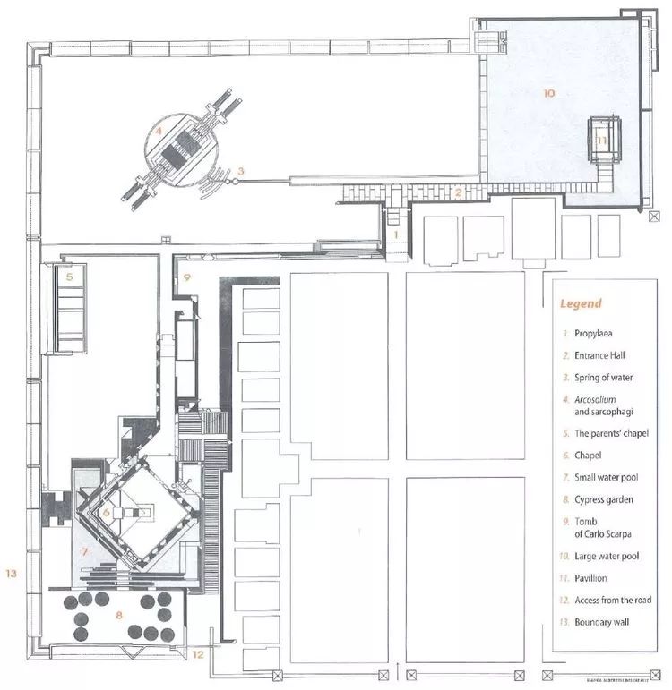
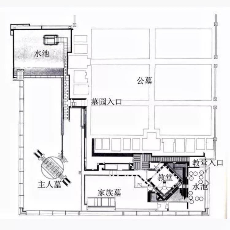
布里昂家族墓园
1968-1978年


布里昂墓地是意大利建筑师卡洛·斯卡帕最为著名、重要的晚期作品,也是建筑史上不朽的作品之一。与其它较为受限的建筑改造作品相比,该墓地的设计被赋予了足够的自由度,是凝聚了斯卡帕一生建筑、景观创作手法和理念的集大成之作。


布里昂墓地平面图
墓园基地紧邻桑·维多公墓,约2200平方米,呈L形。墓园外缘由略向内倾的矮墙围合,园内分布了三个中心。



对这片富裕的墓地,斯卡帕并未走一般路径,即塑造一个肃穆的、中心突出的纪念性空间序列,而採用了接近中国古典园林的设计手法,消除严谨的层次关係,以一种漫游式的布局叙述著一连串的情怀。墓地入口前的那一小片碎石,在宣告著,从这里开始你进入另外一个不属于公墓的领域。


入口连接着长长的门廊,右侧通向一个大水池,经过一扇安有滑轮的玻璃门,前方便是沉思亭。


在达到水池的小亭之前,那「神秘的双圆」暗示著另一个空间的存在,在狭窄的、相对封闭的走道的对比之下,显示出达到小亭之后那种空间的开放感,典型的中国园林的先抑后扬的处理手法。


沉思亭的本身立于混凝土基础上,犹如“浮板”一样“浮”在水面上,4个大小各异不对称的合金件链接上铜块共同组成四个支架,而这四个链接件又使用了四分之三圆线脚的处理方式。用钢架支立于水中,整个亭子显得空透、轻灵。

站在沉思亭里面,透过“斯卡帕双圆环”的开窗可以看见双圆构图形成的远与近,“双圆环”是斯卡帕设计中的母题之一,小到设计中的节点大到建筑外立面构成皆被广泛应用,通过“双圆”开窗里可以看到主人墓和小礼拜堂。双圆环像极了一组双眼向前探望。


主人墓是全园的点睛之处,充满了隐喻与象征。棺木置于一块略微下沉的圆形地面上,上面跨一拱桥,其意象来自早期基督徒尊贵墓地形式“arcosolium”,这个词又有方舟之意。


在混凝土拱桥朝向地面的一面充满马赛克装饰图案,两只棺木成八字形搁置,似是相互致敬。大理石棺木充满叠涩装饰线角。从门廊处引来的水渠一直通向棺木,最后隐入地下。




墓园小礼拜堂有独立出口与公路相连,成为墓园的另一入口。小礼拜堂座落在水池上,不大的室内空间围绕祭坛展开,自然光与水池的反射光从垂直窗洞射入;祭坛后面转角处下部设两扇矮窗(角窗),在祭奠时可以打开,由水面反射的光漫溢进来,庄重而神妙。

运用立面,形成立面的凹凸感,捕捉阳光下的阴影,运用墙的端部,表现墙的厚度感等。斯卡帕曾说希望他的建筑不通过柱式能给人一种古典的韵味。

水,也是斯卡帕反复运用的元素,出现反射、映射等不同的处理手法。生活在威尼斯的他对水有著深深的依恋,并有著一种特殊的象徵意义:水是生命的开始,也是生命的结束。

斯卡帕运用了独特的天窗处理,为了表现有关于生死信仰的宗教之光。控制光线的关键是它的位置和开窗方式。这种处理方式使得祭坛刚好处在正北的位置上,决定了光线来自于祭坛之上的天光。这个顶部的天窗设置由斯卡帕签名般的褶皱形式堆砌成的金字塔形天花中央,一束精致的光线从叠叠的倒方椎中央洒落下,溢满整个空间。

对于斯帕卡而言,光以亮度和阴影创造了物体的体量,而材料肌理的产生、表达、变化则依靠于同光线产生的共鸣:正是因为光线的存在,才使得建筑的物质性和形式感得以充分表达,并且随著光线融入到空间之中。他对光线的理解不仅限于方向、强度和色彩,他甚至把光当成一种实体来对待。