一、安徽宿州张家中式四合院

建设地点 安徽宿州
图纸编号 1457
尺 寸 面宽 19.6米 进深 28.7米
建筑面积 704.0㎡
设计机构 易盖房殊舍建筑
土建造价 126.7万
项目概况

△总平面示意图
基地情况:
东:村内小路
西:邻家住宅
南:村内道路
北:村内道路
项目简介:
业主在项目前期表示喜欢传统中式的四合院建筑,在平面布局上除了需要多个卧室以供居住外,还希望在前院规划两个车库。设计师根据项目场地原始状况,及业主的需求和喜好将项目确定为带双层主房的中式风格四合院。
平面布局
户型概况:
2层 / 11室 2厅 11卫 1厨 5衣帽 2露台 2车库

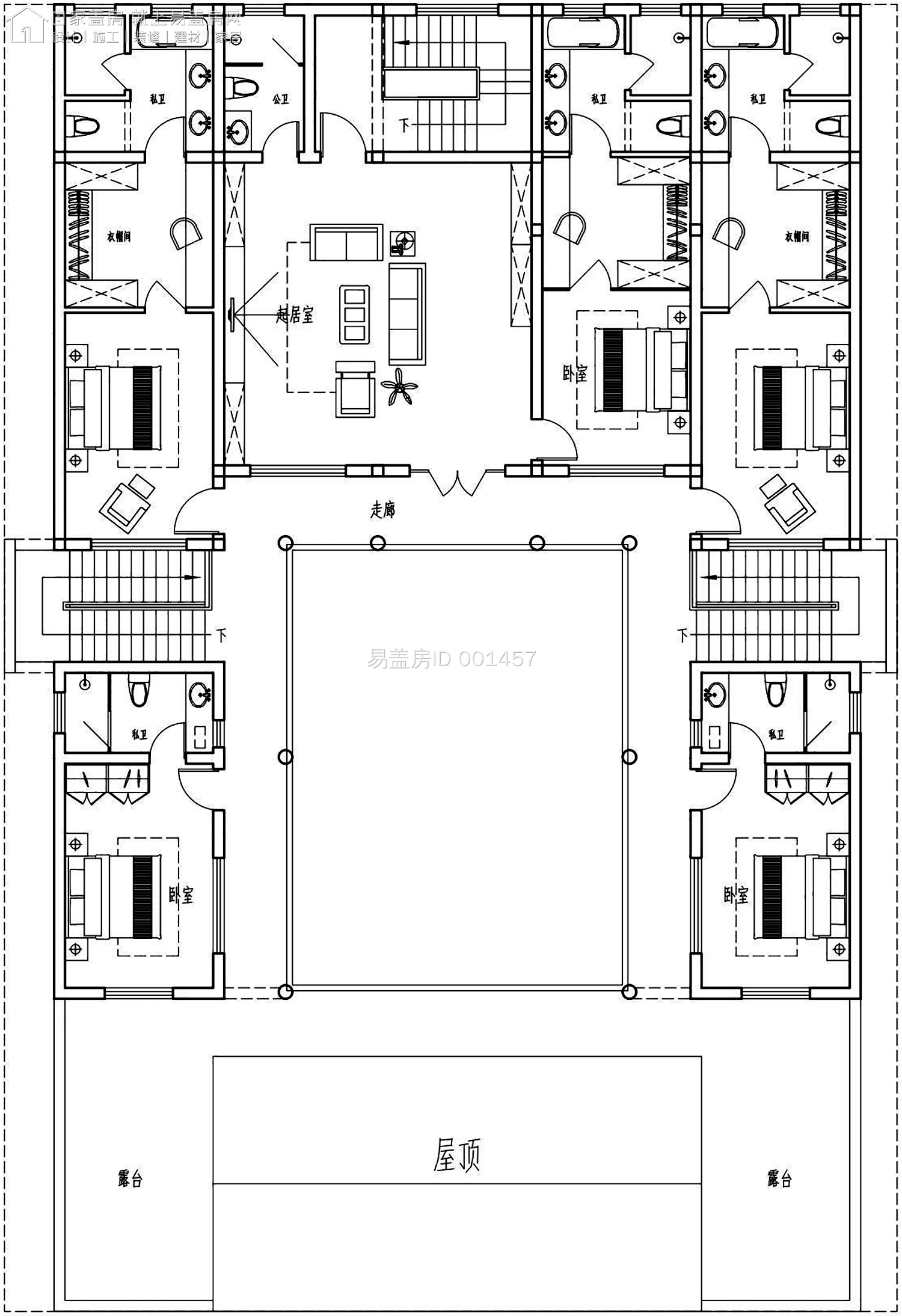
△一层平面图
东厢房以厨房功能为主,主房和西厢房以居住空间布置,大面积客厅搭配多间次卧和卧室套房。回廊将正房和东、西厢房串成一个整体。倒座房以餐厅、客房和双车库布局。
平面整体采用对称设计,每个区域功能划分十分明确。

△二层平面图
整层空间以居住待客为主,南侧的露台提供观景视角,也提供了足够的休闲空间,使得建筑在满足实用性的前提下,整体造型更加均衡和美观。
造型设计

△南侧效果图

△东南侧效果图

△西南侧效果图
立面采用灰墙黑瓦配合传统中式元素形成极具气势的效果,强化视觉冲击感的同时,带来更多的历史感和威严感。通过露台将各个空间串联,让居住者在室内各处都能拥有开阔视野,享受到庭院的美景,提升居住体验感。

△鸟瞰图
二、甘肃白银杨家新中式三合院

建设地点 甘肃白银
图纸编号 1330
尺 寸 面宽 25.0米 进深 15.0米
建筑面积 442.0㎡
设计机构 易盖房钱帅工作室
项目概况

△总平面示意图
基地情况:
东:村内道路
西:自己院子
南:自家花园
北:村内胡同
项目简介:
设计师充分站在业主的角度考虑问题,得到了业主的认可,设计前期与业主进行沟通时,业主提出当地有天然气的具体情况,设计师建议采暖采用的是比较节能环保的天然气壁挂炉的方式,了解到业主提出并不长期在家居住的实际情况后,设计师建议制冷设备采用分体式空调,可以更加节约和方便。
平面布局
户型概况:
2层 / 6室 3厅 6卫 1厨房 1储藏 4衣帽间 2储藏间 1棋牌室 2书房 2茶室 1早餐室 1佛堂 1花池 1廊道 2露台

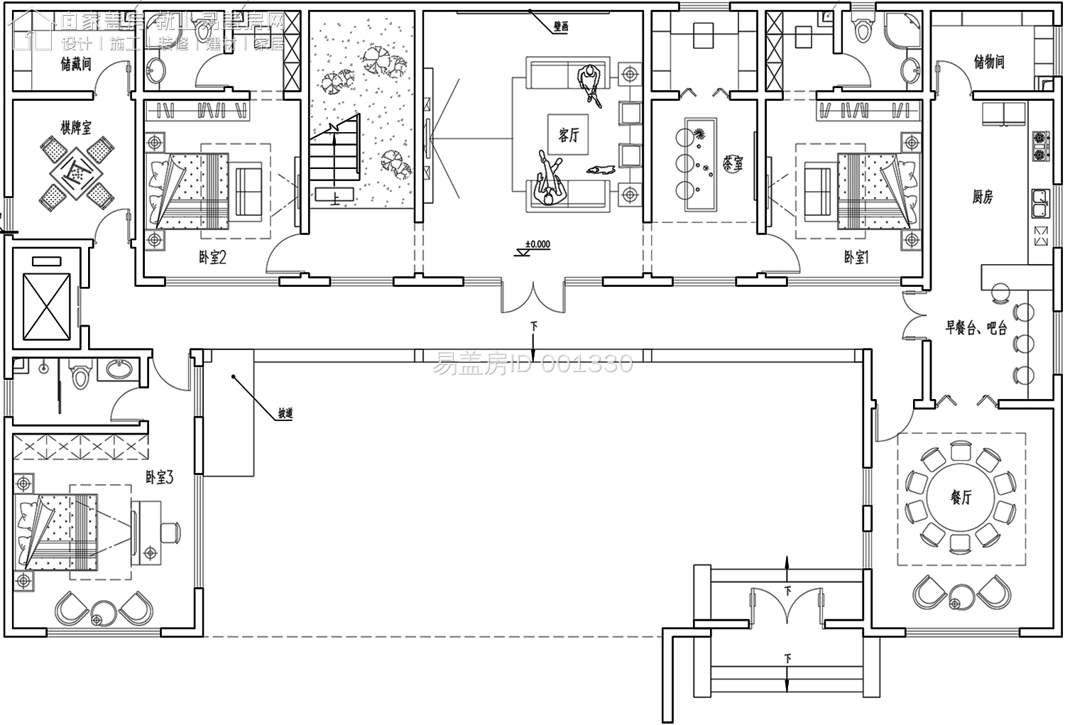
△一层平面图
建筑由一间正房和东西两间厢房组成。东厢房为卧室,西厢房为餐厅;北面为正房,功能房间呈一字形排开,以客厅为中心左右对称布置卧室,最西侧为棋牌室和储藏间,最东侧为厨房和储藏间,厨房和餐厅经由早餐室过渡,正房和厢房间借由廊道加强联系。

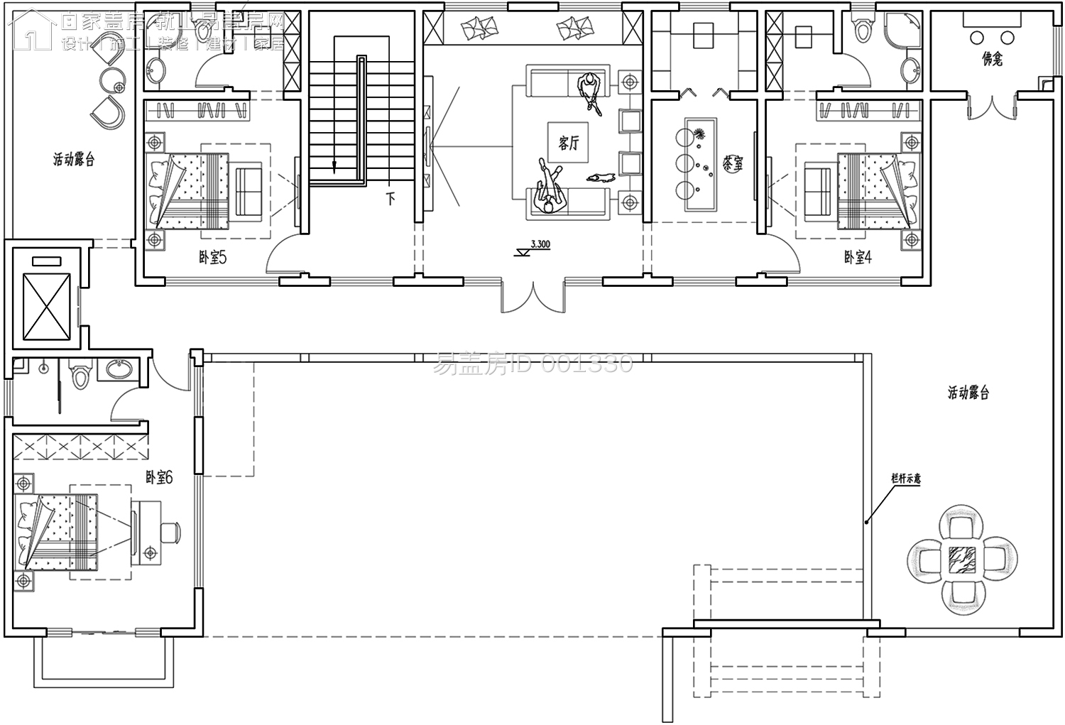
△2层平面图
二层空间主要作为私密性较强的居家套间。整体布局仍以客厅为中心,配有衣帽间、卫生间的卧室套房,分布于两侧。独立设置佛堂于东北角,朝南变为超大露台,为佛堂提供清净之地。
造型设计

△南侧鸟瞰图
设计师对南北中式文化元素加以提炼,将北方典型的合院与南方典型的徽派建筑风格相融合,白墙灰瓦的整体配色,三段式的广亮大门,窗框、柱子、栏杆、大门,廊道等建筑构件无一不把中式韵味体现得淋漓尽致。

△南侧透视图

△东南鸟瞰图
三、四川自贡丁家中式合院

建设地点 四川自贡
图纸编号 1376
尺 寸 面宽 21.2米 进深 21.5米
建筑面积 508.0㎡
设计机构 易盖房殊舍建筑
土建造价 83.9万
项目概况

△总平面示意图(右上角为北)
基地情况:
东:自家田地
西:自家田地
南:村内道路
北:自家田地
项目简介:
业主在前期表示对中式建筑特别着迷,并希望能建成合院造型。功能上希望除了满足家庭日常生活需求外,还要有堂屋、土灶等功能空间。业主专门找到我们公司和设计师和业主进行了充分的沟通,并提供了相关的参考资料。设计师根据场地情况及业主需求和喜好,将项目形式确定为二层中式合院。
平面布局
户型概况:
2层 / 8室 2厅 7卫 1厨 1堂室 1土灶 2储藏 1衣帽 1书房 2露台

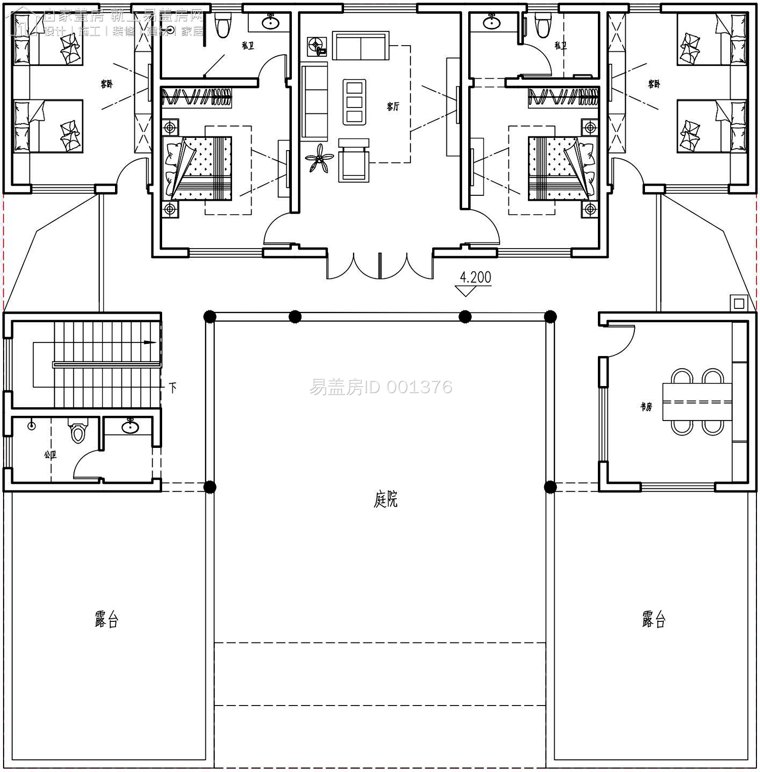
△一层平面图(右上角为北)
主体建筑外,整个都是自家的竹林,场地宽敞,入户位置位于南侧,通过不同的朝向,建筑整体分为三部分,东、北侧空间主要用于休息居住,通过堂室形成过渡,使得该区域安静而不被打扰;东侧主要以餐厨空间为主。中间围合成的院落将建筑的向心性大大增加。

△二层平面图(右上角为北)
二楼主要为居住休闲空间。包括了业主自家人的起居生活和日常接待亲朋好友的房间。东、南侧两个对称布置的露台既方便了业主休憩赏景、接待宾客,又为建筑品质的提升锦上添花。
造型设计

△东南侧效果图

△鸟瞰图
建筑的整体配色符合中式建筑的审美需求,白墙青瓦的搭配完美体现了中国传统建筑的色彩美学。对称的色彩分布呼应对称的建筑立面,给人扑面而来的端庄与稳重之感。

△鸟瞰图

△东侧效果图
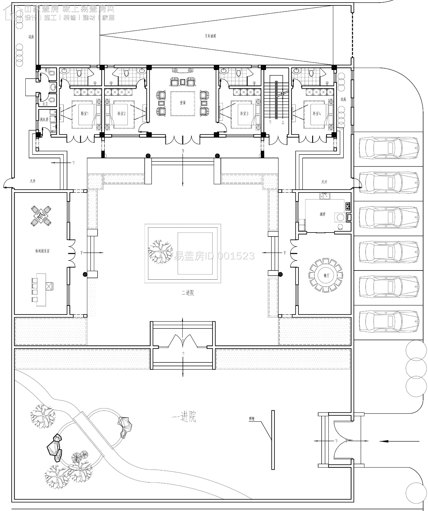
四、江苏南通谢家中式三合院

建设地点 江苏南通
图纸编号 1523
尺 寸 面宽 29.4米 进深 42.9米
建筑面积 1025.0㎡
设计机构 易盖房殊舍建筑
土建造价 103.5万
项目概况

△总平面示意图
基地情况:
东:村内道路
西:空旷场地
南:村内道路
北:村内道路
项目简介:
业主在项目前期表示喜欢中式风格的建筑,希望按照中国古建歇山顶形制设计,除了对房间数量有硬性要求外,希望将餐厨功能置于附属空间;将自绘的平面图和网络寻找的中式传统合院立面造型提供给设计师参考。
设计师根据项目的场地情况,及业主的需求和喜好,将项目形式确定为带地下室的双层主房+单层厢房中式三合院。
平面布局
户型概况:
2层+地下室 / 8室 1堂室 1厅 10卫 1厨 1洗衣 1设备/储藏 1休息区 1娱乐室 1酒窖 1仓库

△地下室平面图

△一层平面图
地下室预留酒窖和仓库区域,满足业主家生活习惯和对储物的需求。建筑整体采用三合院布局形式,东侧厢房设置餐厨空间;主房通过中部堂屋划分南北区域,预留卧室和独卫搭配使用,有效提高了日常使用的便捷性。

△二层平面图
主楼二层共设4间卧室,均搭配独卫使用,功能齐全;中部设置了大面积客厅区域;南侧通过连廊设计串联整层空间。
造型设计

△西南侧鸟瞰图

△东南侧鸟瞰图

△东北侧效果图
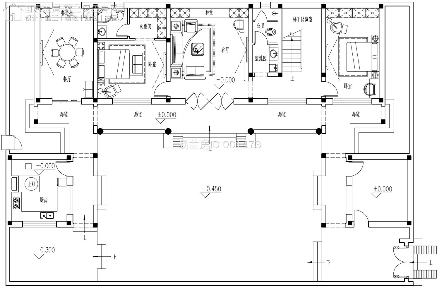
五、安徽阜阳吕家中式三合院

建设地点 安徽阜阳
图纸编号 1473
尺 寸 面宽 25.1米 进深 17.3米
建筑面积 366.0㎡
设计机构 易盖房殊舍建筑
土建造价 96.0万
项目概况

△总平面示意图
基地情况:
东:村内道路
西:邻家菜地
南:村内道路
北:村内水塘
项目简介:
业主在项目前期对空间规划和平面布局方面有一些明确的思路,同时表示喜欢易盖房官网上的628编号项目,因此设计师根据场地情况,及业主的需求和喜好将项目形式确定为带双层主房的中式风格三合院。
平面布局
户型概况:
2层 / 5室 2厅 4卫 1厨 1土灶 1储藏 2衣帽 1书房

△一层平面图
入户位置位于南侧,建筑分为三部分,主房规划出了待客和居住空间。厢房为餐厨空间,搭配灵活性较强的备用间布局。

△二层平面图
二层主楼共3个卧室,主卧位于东北侧和西北侧搭配独卫、衣帽间或书房使用,功能齐全;中部设置了大面积客厅区域;南侧预留连廊空间,大大提升了室内的采光效果。
造型设计

△东南侧鸟瞰图

△西南侧鸟瞰图

△正立面效果图
建筑为三合院形式,白墙黛瓦、中式窗花、青石板等元素凸显出中式风格的内在文化的传承。屋顶采用双坡屋顶形式,考虑到冬天从室外走不方便,预留连廊设计将室内串联起来。

△院门效果图

△东南侧效果图

△主房效果图
中式传统大门样式让此处空间感更加强烈,墙面没有较多装饰,而是通过中式门窗上的花纹装点立面,形成极为丰富的层次和效果。

△局部效果图

△庭院效果图

△庭院效果图
中国人对庭院有着深深的感情。庭院的绿色为古色古香的建筑带去生机。庭院中规划出的室外活动空间丰富了建筑整体使用功能。

△庭院效果图

△连廊效果图

△庭院效果图
宅院整体造型与平面布局呼应,通过严格对称的形式营造上佳的建筑风水。庭院部分通过阳光玻璃廊分割空间,影壁搭配绿植营造古朴静谧的休闲环境。

△局部效果图