
直流系统概述
变电站为什么要采用直流系统,与交流系统相比有哪些优势?
1. 电压稳定好,不受电网运行方式和电网故障的影响,单极接地仍可运行 。
2. 单套直流系统一般有二路交流输入(自动切换),另有一套蓄电池组,相当于有三个电源供电,供电可靠高。
3. 直流继电器由于无电磁振动、没有交流阻抗,损耗小,可小型化,便于集成。
4. 如用交流电源,当系统发生短路故障,电压会因短路而降低,使二次控制电压也降低,严重时会因电压低而使断路器跳不开!
直流电源系统的作用
1. 直流系统是给信号及远动设备、保护及自动装置、事故照明、断路器(开关)分合闸操作提供直流电源的电源设备。直流系统是一个独立的电源,在外部交流电中断的情况下,由蓄电池组继续提供直流电源,保障系统设备正常运行。
2. 直流系统的用电负荷极为重要,对供电的可靠性要求很高,直流系统的可靠性是保障变电站安全运行的决定性条件之一。
3. 在系统发生故障,站用电中断的情况下,如果直流电源系统不能可靠地为工作设备提供直流工作电源,将会产生不可估计的损失。
直流电源系统的组成

直流系统包括:交流输入、充电装置、蓄电池组、监控系统(包括监控装置、绝缘监测装置等)、放电装置(可选)、母线调压装置(可选)、馈线屏等单元组成。
直流系统结构框图及常用术语

蓄电池组
用电气方式连接起来的两个或多个单体蓄电池。
蓄电池
能将所获得的电能以化学能的形式贮存并将化学能转变为电能的一种电化学装置。
充电模块
将交流电整流成直流电的一种换流设备,其主要功能是实现正常负荷供电及蓄电池的均/浮充功能。
合闸母线
直流电源屏内供断路器操作机构等动力负荷的直流母线。
控制母线
直流电源屏内供保护及自动控制装置、控制信号回路等的直流母线。
合闸母线与控制母线的区别是什么?
控制母线提供持续的,较小负荷的直流电源;而合闸母线提供瞬时较大的电源,平时无负荷电流。在合闸时电流较大,会造成母线电压的短时下降。
控母电压一般为220V,合母电压稍高一些,一般为240V。
直流馈线
直流馈线屏至直流小母线和直流分电屏的直流电源电缆。
监控模块
直流系统的充电模块统一受控于一台中央控制系统,系统采用模块化结构,实现系统的“四遥”功能,这样的系统称为监控模块。
常用术语
1. 直流标称电压:
是指直流系统中受电设备的直流额定电压。有48 V、 110V、220V三个电压等级。
2. 直流额定电压:
是指供电设备的直流额定电压,一般指母线电压。50V、 115V、 230V三个电压等级。
3. 直流额定电流:
是指供充电装置输出的直流额定电流。5A、10A、15A、20A、30A、40A、50A、80A、100A、160A、200A、250A、315A、400A。
4. 充电:
充电装置用不同的方式对蓄电池进行充电。
5. 恒流充电:
充电电流在充电电压范围内维持在恒定值的充电。
6. 浮充电:
在充电装置的直流输出端始终并接着蓄电池和负载,以恒压充电方式工作。正常运行时,充电装置在承 担经常负荷的同时向蓄电池补充充电,以补充蓄电池的自放电,使蓄电池以满容量的状态处于备用 。
7. 恒压充电:
充电电压维持在恒定值的充电。
8. 限流恒压充电:
采用限制电流,电压维持在恒定值的充电。
9. 均衡充电:
为补偿蓄电池在使用过程中产生的电压不均匀现象,使其恢复到规定的范围内而进行的充电,称为均衡充电。蓄电池事故放电后进行的补充充电,也称为均衡充电。
10. 蓄电池容量C10:
10小时率额定容量。单位:Ah。
11. 核对性放电:
在正常运行中的蓄电池组,为了检验其实际容量,以规定的放电电流进行恒流放电,只要有单节电池达到了规定的放电终止电压,即停止放电,然后根据放电电流和放电时间,计算出蓄电池组的实际容量,称为核对性放电。
直流系统的划分

48V系统主要用于通信、远动装置及保护通道接口装置及载波机等。
110V 主要用于保护、自动装置、信号、断路器的分合闸控制等。
110V蓄电池个数少,占地面积小,安装和维护工作简单。
220V直流电源对变电站的事故照明比较有利,接线简单。因照明电压一般采用220V,如使用110V直流系统时,需要采用逆变装置或其它办法来解决事故照明的供电问题,较为复杂。
常见接线方式
直流系统常用接线包括:
直流电源系统接线
直流馈线接线
直流电源系统常用接线方式
直流系统电源接线应根据电力工程的规模和电源系统的容量确定。按照各类容量的发电厂和各种电压等级的变电所的要求,直流系统主要有以下几种接线方式。
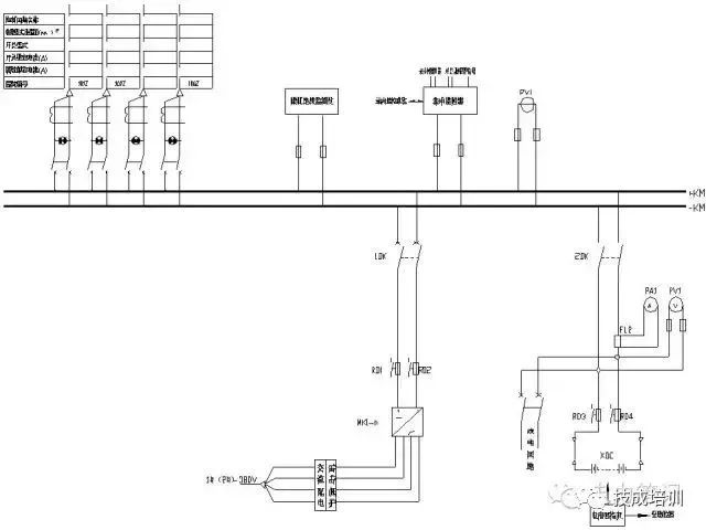
一组充电机一组蓄电池单母线接线

特点:
接线简单、清晰、可靠。
一套充电机接至直流母线上,所以蓄电池浮充电、均衡充电以及核对性放电都必须通过直流母线进行,当蓄电池要求定期进行核对性充放电或均衡充电而充电电压较高,无法满足直流负荷要求时,不能采用这种接线。
适用范围:
适用于110kV以下小型变(配)电所和小容量发电厂,以及大容量发电厂中某些辅助车间。
对电压波动范围要求不严格的直流负荷,不要求进行核对性充放电和均衡充电电压较低,能满足直流负荷要求的阀控型密封铅酸蓄电池组。
二组充电机一组蓄电池单母分段接线

特点:
蓄电池经分段开关接至两端母线,二套充电机分别接至两段母线。
分段开关设保护元件,限制故障范围,提高安全可靠性。
适用范围:
适用于110kV 以下小型变(配)电所和小容量发电厂,以及大容量发电厂中某些辅助车间。
对电压波动范围要求不严格的直流负荷。
不要求进行核对性充放电和均衡充电电压较低的蓄电池,如阀控型密封铅酸蓄电池组。
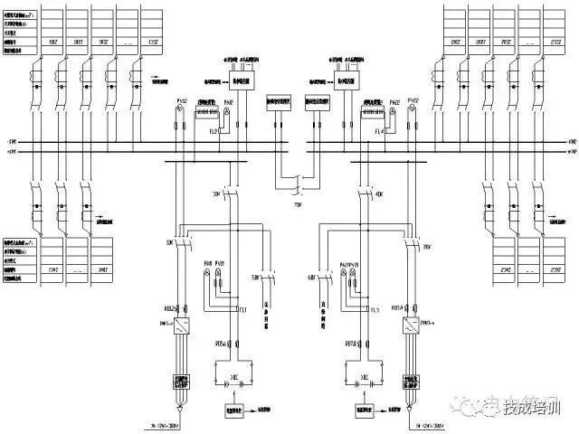
二组充电机二组蓄电池双母接线

特点:
整个系统由二套单电源配置和单母线接线组成,两段母线间设分段隔离开关,正常两套电源各自独立运行,安全可靠性高。
与一组电池配置不同,充电装置采用浮充、均充以及核对性充放电的双向接线,运行灵活性高。
适用范围:
适用于500kV 以下大、中型变电所和大、中型容量发电厂。
负荷对直流母线电压的要求和对运行方式的要求不受限制。
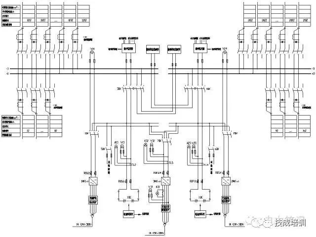
三组充电机二组蓄电池双母接线

特点:
备用充电机采用均充、浮充兼备的接线,运行方式灵活,可靠性高。
正常运行时充电装置与蓄电池在母线并联运行,直流母线电源切换时不停电,提高了直流母线供电的可靠性
适用范围:
适用于500kV 大型变电所和大容量发电厂。
适用于对直流母线电压有任何要求的负荷和任何类型的蓄电池,可以满足蓄电池各种工况运行的需要。
500kV变电站直流系统,应满足两组蓄电池、两台高频开关电源或三台相控充电装置的配置要求,每组蓄电池和充电装置应分别接于一段直流母线上,第三台充电装置(如果有备用充电装置)可在两段母线之间切换,任一工作充电装置退出运行时,手动投入第三台充电装置。
补充说明:
1. 直流系统中的主要电源是蓄电池组,其次是充电和浮充电设备。220~500kV变电所蓄电池正常情况下以浮充电方式运行。直流负荷实际上由浮充电设备供电,蓄电池处于浮充电状态。
2. 当有两组蓄电池时,每段直流母线接一组蓄电池和一套浮充电设备。两套浮充电设备应接在不同的交流电源回路。
3. 110kV以下变电所一般采用单母线接线,220~500kV变电所常用的直流母线接线方式有单母线分段和双母线两种。
4. 330kV及以上电压等级变电站应采用三台充电装置,两组蓄电池组的供电方式。
5. 重要的220kV变电站应采用三台充电装置,两组蓄电池组的供电方式。
常见馈线接线方式
直流系统馈电网络有两种供电方式:
环形供电
辐射形供电
环形供电

在大型直流网络中,环形供电网络操作切换较复杂、寻找接地故障点也较困难;环形供电网络路径较长,电缆压降也较大,因此,变电站直流系统的馈线网络应采用辐射状供电方式,不宜采用环状供电方式。
辐射形供电
辐射电源供电网络是以直流屏上直流母线为中心,直接向各用电负荷供电的一种供电方式。

采用辐射电源供电方式的优点:
一个设备或系统由1~2条馈线直接供电,当设备检修时或调试时,可方便地退出,不致影响其他设备。
当直流系统发生接地故障时,便于接地故障点的查找。
电缆的长度较短,压降较小。
采用辐射电源供电方式的缺点:
馈线数量增加,电缆总长度增加,可能使直流主屏数增加,投资较大。
辐射电源供电方式配置的基本原则
1. 下列回路由独立的直流回路供电:
信号回路单独设置直流供电回路。
具有双重跳闸线圈和双重化保护装置的电气元件,设置两组直流电源时,由独立的回路分别供电给两套保护装置并各自动作于一组跳闸线圈。
发电机或发电厂-变压器组,对主保护、后备保护、异常运行保护以及励磁设备配置二回或三回直流回路。不同的直流回路应接于不同总熔断器的直流母线段上。
2.在负荷较多且分布较集中的地方应设置直流分电屏,由直流分电屏向各个负荷分别供电。
补充说明
1. 对于直流馈线, 220kV及以上变电所考虑到保护装置的双重化及控制回路的双重化;
一是要求保护电源与控制电源分开,分别由不同的小开关供电或供不同的小母线;
二是要求双重化的两组电源由直流系统不同的母线电。
2. 继电保护装置、信号回路、断路器控制回路直流电源,应分别由专用的直流空气开关供电。
3. 双配置继电保护,两套保护装置、断路器两组跳闸线圈应分别由专用的直流空气开关供电,且接与不同的直流小母线。
4. 对直流系统的空气开关或熔断器,其容量不但要满足在最大动态工作电流的2倍,还一定要考虑上下级的配合,上级开关或熔断器的容量不能低于下级总的最大动态工作电流的2倍。
5. 事故照明宜分为两个回路,分别接在两段母线上。
蓄电池
蓄电池是储存直流电能的一种设备,它能把电能转变为化学能储存起来(充电),使用时再把化学能转变为电能(放电),供给直流负荷,这种能量的变换过程是可逆的。也就是说,当蓄电池已部分放电或完全放电后,两电极表面形成了新的化合物,这时用适当的反向电流通入蓄电池,就可使已形成的新化合物还原成原来的活性物质,供下次放电之用。
蓄电池作为备用电源在系统中起着极其重要的作用。平时蓄电池处于浮充电备用状态,在交流电失电、事故状态等情况下,蓄电池是负荷的唯一电源供给者,一旦出现问题,供电系统将面临瘫痪,造成设备停运及其它重大运行事故。
蓄电池的容量一般分为额定容量和实际容量两种。
额定容量是指充足电的蓄电池在25℃时,以10h放电率放出的电能。 QN=IN·tN
实际容量与极板的面积、电解液的密度、放电电流的大小、充电程度及环境温度等有关。 Q=I·t
蓄电池的运行方式

蓄电池的技术要求

蓄电池的分类

阀控式铅酸蓄电池

充电机

充电装置的技术要求

充电装置运行及维护

直流监控系统

微机监控装置

绝缘监测装置

绝缘监测装置的技术要求

直流系统其它配套设备

交流进线单元

防雷保护电路

降压装置

放电装置

蓄电池巡检仪

仪器仪表

直流系统异常分析与处理
直流接地

直流接地的危害

直流系统绝缘常见异常情况

直流系统接地故障排除方法

查找直流接地的注意事项

容易发生接地的部位

来源:技成培训
声明:本文所用视频、图片、文字如涉及作品版权问题,请第一时间告知,我们将根据您提供的证明材料确认版权并按国家标准支付稿酬或立即删除内容。
往期文章
53种电动机电气控制电路接线图!
基本常用电路的编程和梯形图规则,帮你搞定PLC入门编程控制
系统讲解三菱PLC各知识点,之前不懂的抓紧补~
82张煤化工里典型工段工艺动图 你最需要它!
全面解读八大电气控制电路,电气识图有它足够~