记得点击关注“装个好房子”哦~
每天为你带来装修干货、改造新灵感与美好生活故事
探寻美好居住方式,我们值得更好的生活!
----------------------------------------------
最近,学区房又上了热搜——
「生源都不足了,还要高价抢学区房吗?」
简单来说就是,随着供求关系的转变,未来会有更多学校因为招不满学生而面临关门倒闭的风险,以至于将来孩子上学会成为一件容易的事。
所以,老百姓们再去抢那些高价的学区房,意义也就不大了。

但即便如此,仍有不少人对此持中立态度。
他们认为,学区房本身就具备稀缺属性,只要稀缺,就会有人为了给孩子更好的教育条件,自愿花高价买下,这与生源是否紧缺并不存在直接联系。
何况那些985、211大学,大概永远都不会面临生源不足的问题。
所以,在力所能及的范围内,买下一套挨着好学校的学区房,仍旧是父母眼中顶顶重要的事情。

这对家住北京的海淀夫妻,就为了让孩子能去好的学校,买下了一套125m²的学区房。
并且,他们对这套房子的期待,不单单是作为学区房「过渡」那么简单,反而规划得十分长远——
不仅要在接下来的10年中,为全家人持续提供舒适和便捷,还要随时都有应对新增家庭成员的能力 (二胎计划)。
于是,夫妻俩找到了设计师,希望能让房子的“使用寿命”最大化延长,以应对人生不同阶段的居住需求。

原始户型:三室
面积:125m²
坐标:北京海淀
花费:90万
这套125m²的学区房,原始户型属于中规中矩的三居室。
改造难点:
1.整体的空间布局相对单调,缺乏创意和想象力,无法满足屋主一家对未来生活的想象和期许。
2.公区原本南北通透的环境被中部的卫生间切断,中部近10米无窗,采光条件较差。
3.主卧通向次卧的距离过远,不方便家长照顾孩子。

基于以上问题,设计师通过对业主一家三口未来生活场景的了解和模拟,重新规划动线,打破固有格局,创造更多元化的弹性空间。
改造思路:
1.将公区原来的卫生间打开,改造成一个连通客厅、餐厅、厨房的空间胶囊,增加南北通透性。

2.把卧室之间的墙体打通,用移门做分割,与公区形成一个大的洄游动线。

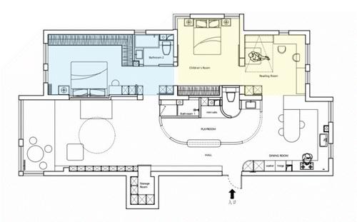
3.利用5扇门,大胆的将西北侧的卧室群做成了一个灵活多变的半开放式设计,使房子能够从1居到3居随心却换,三种居住模式也能满足小朋友各个年龄阶段的居住诉求。

改造后的新布局, 可以根据小朋友将来不同成长阶段,切换出三种居住模式:
一居模式:儿童房安排在主卧旁边,将三间卧室的推拉门全打开时可以串联成一个大套间,方便屋主夜里能够随时照看;
两居模式:等到小朋友上学后,主卧关闭与儿童房之间的推拉门,连通卫浴间形成独立套间,儿童房与书房连通,作小朋友的睡眠区和学习区;
三居模式:最右侧的书房目前主要是男主人使用,内部预留了一张墨菲床,既能做客卧,未来有二宝后也能当第二间儿童房使用。
这种随时可以变化的居住模式,也给这个房子赋予更多的可能性,为屋主一家带来了更好的生活方式。

入户门正对的原始客卫,打通后改造成了空间胶囊。
这个灵感来源于这个家的孩子,设计师以他的视角, 在此创造了一个“小型车站” ——中间通道就像站台,左右侧串联玄关、卫生间的收衣、换鞋、洗漱功能,梳理回家的动线。
火车头作为一个交通枢纽,是回家的中转站,让一家人每天放下疲惫,洗漱干净,再驶进家的港湾。

入户门一侧,定制壁挂抽屉柜+鞋柜。
既能够满足一家三口的鞋物收纳需求,同时壁挂设计也方便日常清洁和打扫。

玄关凳的一侧做了一个壁龛储物格,在此可以随手放置具有纪念意义的装饰品,增添归家的仪式感。
多功能胶囊正对入户门的中段,是一个专属小朋友的游戏空间,迷你沙发底部做了玩具收纳柜。


小火车后半段是干区。洗手台外置方便玄关使用,同时也让进门更衣-换鞋-洗手清洁的动线更为流畅。


洗手台旁边是独立的马桶间。
壁挂马桶上方作储物柜方便厕纸、清洁剂等消耗品储存。
南侧入口可以进到独立淋浴区,设计师利用玻璃砖开了三扇小窗,在不影响私密性的前提下,不仅能起到装饰的作用,而且还能够与公区相互借光。



改造后,客厅舍弃了传统的电视背景墙,转而做了一面近4米长书墙,成了一个小型图书馆。
书墙大部分以开放式的隔板为主,方便拿取的同时,也能作为陈列展示区域。
下方设置封闭式储物柜,有藏有露,做到展示收纳两不误。

开放式书柜顶部暗藏电动幕布,随时可以轻松切换“家庭影院”模式。

客厅的休息区选择了2+1位的懒人沙发,搭配小茶几更显空间宽敞开阔,灵活的布局也为小朋友预留出了更多活动区域。
沙发旁做内嵌壁龛书架墙,增加收纳储物空间的同时,还能作为陈列展示区,美观又实用。


沙发北面就是主卧空间,设计师在墙面做了小面积玻璃砖的设计,可以让两个空间相互借光,增强互动性。

客厅的阳台做了地台设计,既可以作为小朋友玩耍的小天地,将来还能是男主人的茶室。



从客厅穿过空间胶囊,可以直达北侧的餐厨区。
这里整体采用开放式布局,不仅能拓宽空间尺度,从视觉上实现延展的效果,还能大大改善南北采光和通透性,缓解走道无窗的尴尬。

餐桌对面利用柜体嵌入冰箱,同时借助厨房下水将洗衣机烘干机藏在冰箱旁的柜子中,搭建柜内迷你洗衣房。

厨房操作台的每一面都设计了灵活的储物空间,各种小型家电也整齐收纳其中,避免占用台面空间,出现杂乱无章的景象。


书房与餐厨之间,由一扇立川门分隔。
内部靠墙做了一张墨菲床,家里有客人借宿时,可以将立川门关上,变成一间独立次卧。
平日将门敞开,书房也能融入公共区域,成为一个开放式的空间,增加家中各个区域的联结,改善全屋采光与通透性。

靠窗一侧的转角设置L型双人办公桌,既能作为男主人居家办公的场所,又能为大人提供辅导孩子写作业的空间,可谓一举两得。


儿童房与书房之间,以一扇推拉门作为串联。
当门打开时,儿童房可以同时兼具睡眠+学习两个功能,关上门时,又是两间完全独立的卧室。

从儿童房看向书房
儿童房内,设计师利用定制柜做了一个树屋,上面是一个私密的游戏空间,下面则用来收纳孩子的衣服。
同时,加入秋千和攀爬梯的元素,满足孩子现阶段好奇、爱玩的天性。


此外,儿童房与主卧之间同样以推拉门串联,方便大人在晚上照看年纪尚小的孩子。
同时,门板也是小朋友的绘本书架,方便收纳小朋友常看的书籍。


主卧虽然面积不算太大,但保持了原先自带卫浴的套间模式。
床对侧的墙面定制L型通顶衣柜,补充了衣帽间的功能。

床头的圆拱造型呼应了胶囊空间的形态,玻璃砖的加入让卧室与客厅之间实现互相借光的效果。
搭配顶部的柔光吊灯,营造出静谧舒适的睡眠氛围。



主卫位于主卧与儿童房之间,能供两个卧室使用。
内部通刷微水泥,保证视觉上做到与室内连贯和谐,整体统一。
嵌入式浴缸的存在,既能满足屋主平日泡澡放松的需求,同时也方便给小朋友洗澡。

改造后,这套原本中规中矩的三居室,摇身一变拥有多种居住模式的完美住宅,不仅能满足屋主一家人未来10年的生活需求,还能随时适应家庭成员增多的可能。
你看,学区房不一定就是用来勉强过渡,或者只能对居住品质妥协的存在。
褪去那层光环,其实它也是一个普普通通却意义非凡,值得用心对待的家啊。
本文图片与素材由 七巧天工设计 提供