
设计过程:
上次设计自己的办公室还是在2010年,那时我们公司大约12个人,我咬着牙把工位留到了18个,心想,我们绝对不会超过18个人,要不那么多人没法管。
3年后,我们就有了30多人,原来公司里的会议室,图书区,会客区,厨房全部被占满,用来放工位,而我被赶到了原来的厨房里办公。
之后我们的人还在增加,那个办公室实在装不下我们了,于是我们就搬到了济南现在的办公室,不过很遗憾,那时我在厦门做智能硬件,我没能参与我们新办公室的设计和落地。
去年我们下决心要在上海发展出一间新的办公室,以更好的服务于我们的客户,于是在2018年的11月期间,我在虹桥区域看过了20多个办公室空间,总算找到了这个合适我需求的房源。

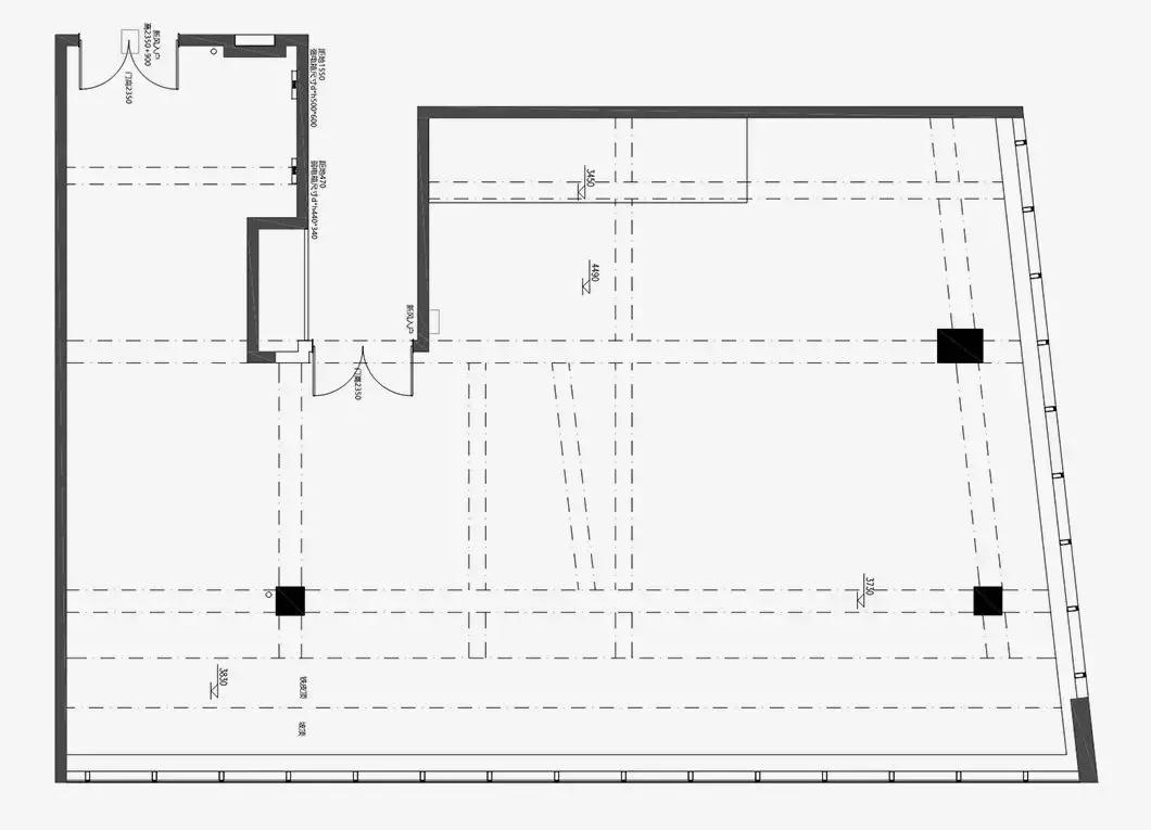
▲原始平面图
这个房源面积不大,2面采光,有2个入口,面积刚好合适我们。于是我迅速的签约,我打算春节前筹建好我们的上海办公室,以便在春节后就可以办公使用。没想到的是到了12月,我生病住院,这一拖就到了春节后。春节上班后第一天负责上海筹建办公室的同事,就把我堵在会议室。
第一,他们要求我明确新公司的预算?
第二,他们问上海办公室的组织构架是什么?
第三,他们要求我在一周内搞定上海办公室的设计。
组织构架,我没具体想过,我们济南办公室已经80多人,上海办公室设置20人的岗吧,把公司的研发放在上海,再招些真正的高手,当然也要让济南的老同事过去一部分,这样不至于我们的战斗DNA被稀释太多,一两年后如果我们又长大了,我们再考虑换个更大的办公室。
另外我们也没准备多少预算,我不想连着好几年,让摊销的办公室装修费,在财务报表里让我愁眉不展,我甚至对具体的设计,也没有什么太多的想法。
我觉得这个实用面积200平米的小办公室,整体上轻松点就好(省钱),有间会议室能开会,能关起门来骂人,最好有20个相对宽裕的工位,能把我们的研发部门放下,我更不需要为自己隔出来一间办公室,我一直都和大家坐在一起,唯一的不足就是,坐我身边的人压力往往都比较大,容易长胖。
说起发胖,我们应该有个地方能一起吃外卖,聊聊天,不在一个锅里吃饭,但也要在一张桌子上一起吃,增加我们非正式的沟通频次,心理学上说这样会增加我们这个团队的创造力和凝聚力。
嗯,我们还需要一件小仓库,可以把物料和其他的杂物收纳起来,我们还要有一间财务室,一小块接待区,要是有客户来了,除了会议室还能有个地坐一下。
当然,作为一家设计公司,最好这个空间还能有点识别度,算了,识别度这个词太高大上了,费钱,我们稍稍有点设计感就好。
于是我用了一个日夜来思考这个办公室平面的几个可能性。

▲方案A

▲方案B

▲方案C
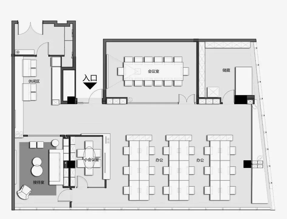
第二天同事从我凌乱的手稿里梳理出了大概,团队一讨论,确认了一个会议室布置在最里面,同时也距离办公区最近的平面,这样,不但可以把办公室双面采光的景观面,让给工位和休息区,还避免了采光过强,投影要遮蔽的的问题。

▲最终确定方案C
好吧,就这么定了,于是我们赶紧做立面,建模型,确认材料(其实是确认价格)之后,深化部的同事就开始画施工图了。

直到2个月后,我们的施工才搞的七七八八,等软装搞好,就已经到了4月底,真是一次漫长的过程。

谢谢,在施工上提供大力支持的徐总。
谢谢,帮我们定制不锈钢的上海美旋实业有限公司的骆总。
Veni vidi vici.
岳蒙
2019.6.12

▲空间概念图
一个好的空间,应该是符合其身份的。
办公空间并非只是艺术行为展示的场合,它既要追求产品本身的美,更要符合其功能逻辑和功能氛围。

实用的态度以善为最高目的,科学的态度以真为最高目的,美感的态度以美为最高目的。

区域功能的经纬分明优势在于,它让散落在空间里的片段,不需要去特别调动,便呈现出最高效率。

区域功能经纬分明。前台与立面上统一的线条分割,干练而不落俗套,从进入空间的第一眼,便传达给人简洁的第一感觉。

休闲区可以承载工作台的职能,也可以成为员工私属地。错落的高低圆桌设计,在功能上可以区分不同物品的分别放置,避免混杂忙乱。

不锈钢拥有最坚韧的实用性,又能够通过线条感,保持视野上的通透性,营造出非常轻盈的观感,让整个设计更灵动。

感官体验和人文关怀,是工作效率之外,办公室空间应该具备的精神内涵。艺术性的设计如果能够带来身心愉悦,也是一种实用性的功能。

用理性分割出功能区域,用感性去赋予空间精神。

在会客空间的构思上,我们更植入的设计元素会比较多,亮眼的小熊和流水凳等别出心裁的软装,增加了整个空间的亲和力和趣味性。


我们想把它打造成一个更加张弛有度的空间,既可以礼貌接待,也可作为我们自己的一角精神世界,可以去静思或者放空。


镜面的效用,不仅仅放大了空间的观感,也加持了美感。

而隐藏在镜面之后的电视装置,才是其中的奥秘。这样的设计,既满足了功能上的需求,又在视野上做到不露痕迹地隐藏,兼顾了实用性和趣味性。

办公室空间的内在含义,就是能够高效。那么我们就祛除所有冗余,用极其简洁的样子去呈现。


空间是简练的,思想是丰富的,这两者在办公区能够完美融合,那就是办公室设计的终极意义。

设计的迷人之处在于,它能够完成功能上的需求,还加入了更多想象力,让人在务实中生出理想主义的信念。

我们期望中的办公室,能够体现我们的速度与效率,也能够实现我们不断奔跑的理想。

会议室空间与整体设计思路一脉相承,力求简洁务实。在空间上,实现了私密的需求,在视觉上,一整面玻璃窗与外部通透对话。

大面积密度板切割与清漆的搭配,很干练地组合出现代意向。立面与顶面在色调上形成彼此呼应,软装风格也与其统一,整体氛围简单而直达目标。

这一整面是空间中视野最好的黄金区,与外面的世界有着直接的对话,这本身就是最天然的雕饰。


写在最后
1.最近很多小伙伴问,你们去上海了为什么改名?其实我们到上海依然想叫“成象设计”,但是这个名字已经被抢注,我们没法使用,所以我们的上海部分更名为“上海岳蒙设计”
2.同时还有小伙伴问,你们济南公司和上海公司什么关系?其实就是,拥有共同想象,共同愿景的同一群人,分别在两个地方的办公室而已,而且两家公司都是在岳蒙的直接管理下运营。
3.还有小伙伴问,你们上海的公司招聘吗?招,而且我们上海公司迫切的希望能招到软硬装的高手。但是,如果你刚毕业或者是刚入行,你可以投简历到我们济南部分试试,我们济南公司愿意从头培养新人,如果你成长成熟起来了,你也可以再申请到上海部分工作。
本文来源于网络