大家好,我是你们的智能家居领路人CT。不过在这个新的系列里,我主要与大家分享下我近期开始着手把住了15年的老房子进行整体翻新的一些过程。虽然我自己也从事一些设计工作,但这也是我第一次跨界踏足家装领域,所以有些想法可能也不是很成熟,所以也希望大家能够在评论区不吝赐教。这里的第一篇将于大家分享的是厨房橱柜的定制与组合。
一、橱柜方案的选择
1.全屋定制品牌 这个应该也是比较多人的选择,我们自己也去红星看了诸如“欧派”“索菲亚”等一线品牌的体验店。不得不说的是,展厅布置的确实精致,出样的产品也非常的吸睛,风格款式也有非常多。我们在展厅里也看中了两套,可能比较符合我们审美,或者说是我们期望的整体风格的橱柜样式:


而在售价上,一般一线品牌都会给到一个套餐价,例如上面这两套贝加尔湖畔以及唐古拉套餐价格均为19800元,包含3.6米的底柜+台面以及1.5米的吊柜还有水槽龙头,油烟机灶具等厨房电器:

当然,这个价格只包括了基本功能,如果需要多加抽屉或提篮等,就请另外加钱,并且如果长度超出3.6米,那么底柜+台面大约要加4000多元一米(2000的底柜+2000的台面)。我们的厨房大约是5米,所以随便算算都要3W起步。至于高柜价格,因为当时还没定布局,所以也就没有细问了,并且套餐内的烟灶水槽不能不要(网说不要的话也就减掉1500)。说实话,还是比较贵的。索菲亚作为同级别品牌,价格相差不大,所以这里就不细说了。
2.二线橱柜定制品牌 这部分因为现场也没有看到喜欢的样式,所以也就没有照片,但是聊下来价格确实能低上不少,普通的套餐价格大约只有15000左右,而每加1米的价格也降低到了1000多元的底柜+1000元左右的台面价。总体上价格能比一线品牌低上1/3左右。不过除了样式工艺受工厂限制选择较少外,最主要的感受是做工和细节上能明显感受到与一线品牌有着差距。当然,可能也与展厅灯光一类没有设计布置有关。
3.建材市场橱柜店 除了去了红星美凯龙这类的商场外,我们还去了建材市场,建材市场里除了有着一些2,3线橱柜定制品牌外,还有一些作坊店。作坊店基本采用的是自己加工板材打框架,然后定制门板+台面的方式。当然,这些店铺的价格确实真的很便宜,石英石台面价格从300起,最贵的也就1000多。门板按平方米算,一个平方米200-600都有,600的就是实木了。而框架则也是几百块一米的价格,使用刨花板和多层板价格有些差异,但是整体差异不大。外加一些五金件,当然,这样的小店基本也不会有百隆一类的一线五金品牌给你选,所以总的算下来可能像我5米左右的厨房,花掉1W多点就撑死了。
4.木工现场打或者DIY 因为我们选择的装修公司半包不包含现场打柜体的价格,说实话,我们也没考虑现场干这事,所以价格也没问。而DIY的话,目前站内比较流行的是铝合金框架+瓷砖柜体。

大家有兴趣也可以在站内搜下,具体价格不知,但是肯定是最经济的,不追求细节和美观的话,也确实够用,但是如果要做好的话,其实花费的精力和财力并不见得会低很多,所以这个方案我们并不考虑,这里只顺嘴提上一句。 这几个方案,除去最后一个DIY的外,其他三种,效果最好的就是一线品牌,不过除了基础价格高之外,后面加东西也容易踩坑。据说是你预算3W,能轻松的给干到4-5万。有钱就算了,但是我们连装修都*款贷**在做,别说1W,2W了,5K都差。 二线品牌性价比比较高,但在质量上很容易采坑,一不小心就沦落成了建材市场橱柜店,需要花大力气去甄别,并且看了几家,款式风格上还是与一线有差。而橱柜店就真的需要自己火眼睛睛了。所以最后我们的决定是以上方案都不选,去选择了宜家厨房。
二、宜家整体厨房
先还是来说说为啥最终决定选择宜家厨房吧,主要有以下三个考虑。
1.价格透明,自愿踩坑 说到宜家家具,其实我的第一感觉可能与大家一致,就是价格低廉,质量差像网红比利书柜,虽然只卖399,但是装上了晃,书放多了隔板弯,拆装个2次就没用:

为此我们也咨询了身边家里装了宜家厨房的朋友,没想到的是他们都非常推荐宜家的厨房,基本上第一套选了宜家之后,第二,第三套也都会选择宜家。最强力的理由就是价格透明,全程无坑,所有东西都明码标价,自己可以在网站上利用宜家提供的工具进行规划设计,而总花费也会同步计算,例如我自己利用工具设计了厨房:

一共有0.8+0.8+0.88+0.8+0.6=3.88米的地柜,0.8+0.6+0.4=1.8米的吊柜,还有一个2.28米的高柜,其中有9个抽屉,一个转角转盘,包含水龙头和水槽,不含5米的台面,总共价格为18737,这里我选择的还是价格比较高的伯德比门板,如果选择价格适中的维丁格门板的话,价格还能下来3000,要选择最低配门板的话,价格还能进一步降低,同样的柜体抽屉配置,最低可以做到13000左右:

如果自购石英石按1000元一米的话,也就是23737。当然,这里要说的是这个价格是不包含安装费送货费的,至于安装费,也是明码标价:

如果是购买宜家台面的话,石英石台面整套安装费是430元/延米(我现场问下来是410),而层压板或者不购买台面的安装费则是290元/延米。也就是我满打满算6米的橱柜,如果不在宜家买台面的话,安装费为290*6=1740,外加送货费,一整个厨房大约在2W6能够搞定。当然,要是在宜家买台面的话……,嗯,我们看中的台面售价:

大家不用找了,官网上没有这一款,我老婆的特殊技能就是能在一堆东西里面一眼相中最贵的那款……而如果对花色要求不高的话,也能在宜家找到价格合适的:

889一延米厚4cm的特价石英石,同样有25年质保,这价格,还要啥自行车,当然,如果搭配宜家活动,可以做到更优惠的价格,例如我现在就期望能有个整体橱柜满8000,台面打5折的活动。因为橱柜在装修中可以放到最后安装,并且对收尾工作影响并不大。所以操作的周期其实相对比较长,不着急入住,从开始装修到完成等上半年都不会有啥问题。当然,具体优惠还是要多关注宜家APP或公众号。
2.质保期长

宜家的米多厨房提供长达25年的质保期,当然,或者很多人觉得这25年就是个噱头,毕竟哪怕自己找木工打的厨房用上个10年也都不会有啥问题。不过就我个人的经验来看,橱柜最容易出问题的几个地方无非就是五金,水槽柜以及台面了。例如我15年前装修时木工打的柜体,水槽区域已经进水烂透了,这里需要注意的是,刨花板进水一样会有这样的问题:

除了物理性损坏外,朋友还告诉我,他给他老丈人装的宜家厨房,用了7年,因为日晒原因,导致白色面板有些变色发黄,然后宜家的工作人员上门查看验证了下,就直接给换了3块门板。

至于宜家的五金件,标配都是UTRUSTA 乌斯塔(BLUM百隆)基本上不会出问题。而我倾向于在宜家买台面的另一原因就是,台面同样享有25年质保,中式厨房嘛,难免会有砍剁的操作……而且宜家的厨房质保服务是跟房不跟人的,即使房子转手了,也能将质保同时移交给下任屋主。
3.选择多,环保达标 首先要说的是选择,虽然宜家的厨房橱柜是标准件,但是外观饰面的选择非常多,官网上关于米多系列的组合结果就有616项:



通过不同门板的搭配,就能得到你想要的风格,从现代极简,到美式乡村应有尽有,材料也从普通的纤维板到便宜的松木,以及稍贵的白蜡木都有,甚至还有不锈钢包的:

门把手也是:

当然,关于风格的选择,一个是可以根据自己的喜好定,另外也可以直接在宜家官网上找寻官方搭配灵感:

而关于环保,就橱柜而言,市面上主要使用刨花板加三聚氰胺贴面做柜体,密度板做门板,这两种材料,无论是哪一种在大家看来都是“醛”味十足的。而宜家的米多厨房使用的板擦均符合CARB P2标准:

而CARB P2在板材中的环保等级,可以见下图:

其中CARB NAF为无醛产品,这个咱就不追求了,而P2其实与日本F4相近,要高于欧洲E0标准。所以就这点来说,甲醛的问题可以忽略了。至于用料足,其实我个人还是存疑的,所以我自己抽空去了趟宜家,看了下米多厨房产品的实样:

这是一张底柜的照片,可以看到宜家橱柜左右两侧的板材使用的都是18mm厚度的刨花板,而顶部则是前后使用了两根镀锌钢条加固。我用力下压,晃动,稳定性确实可以。

抽屉都是骑马抽,带有缓冲器。抽拉很有质感,而安装,则是通过挂钩挂壁安装的。这个安装孔后期会有盖板遮挡,不过从这里也可以看出,不作为结构件的背板的料真的是省的可以,目测可能只有3mm左右。

UTRUSTA 乌斯塔(BLUM百隆)的快装合页,无论抽屉还是门板都可以5秒快装快拆,方便清洁。当然,如果细看报价单的话,会发现,合页一个60元,比百隆官方旗舰店的售价还是要高出不少。如果要真心再省点的话,完全可以自己买合页铰链,只在宜家买柜体和门板。并且大家还可以关注到一个细节就是,宜家的柜体,无论是地柜,吊柜,还是高柜:

柜体的两侧都打有排孔,大家可以非常方便的对柜体的功能进行改装,例如原先装了抽屉,随时都可以买上合页把它改成隔板柜,而如果原来是柜门,或者原来是中等抽屉,想再加层抽屉,那么自己去商场买个抽屉回来拧个螺丝就好:

当然,说了这么多宜家厨房的优点,缺点也不能不说。首先要说的是如果选用多层板台面,除了因为是木质板材,燃气公司可能不让装灶具外,最大的问题就是拼接:

虽然多层板台面同样有着25年质保,并且价格低廉,除了不能直接在上面处理食材以及安装燃气灶具可能会有安全隐患外,实际是非常具有性价比的,但是对于L型厨房或者是超长台面的拼接,宜家给出的方案有些草率。而且标配的挡水条也有些丑:

当然,如果选用石英石台面就没有这个问题。接着就是另一个问题,宜家的柜体其实全部都是有着标准尺寸的,但是厨房有大有小,并不一定会与柜体组合起来的尺寸正好契合。包括一些设备,例如嵌入式烤箱,虽然面板的宽度基本是600,箱体的宽度也是符合宜家橱柜内宽564mm的,但是高度上就比较随性了,例如现场出样的一款高柜,就补了一块饰板,用来填补设备与抽屉之间的空隙安装的就有些草率了:

三、宜家整体厨房的设计技巧
在前文中也说到,宜家是不提供柜体定制服务的,也就是你要装宜家厨房,只能从他现有的产品里进行组合和搭配,唯一能定制的就是装饰面板以及台面。而这个组合搭配是可以自己在家完成,或者向宜家支付500元设计费,由宜家来完成,这500元设计费包含2次上门测量(毛胚阶段或拆旧完成阶段一次,贴砖完成后一次)两次设计修改的价格,而如果之后你在宜家定制了整体厨房的话,这500元设计费是可以退的。当然,如果去现场看了,决定了安装定制宜家厨房的话,其实可以理解为是免费测量设计的。不过这里面最大的问题就是时间,定制宜家厨房预约设计师需要排期,一般周期为预约后2-3天有专人联系,然后上面量房,之后再等待设计师预约进行设计修改。也就是说,即使你知道了你厨房的具体尺寸,你也不能直接跑到店里就开始哐哐哐的让人给你设计出图。网传宜家厨房设计的等待期大约是2周,关于这点,我也找朋友确认过,告知一般不用2周,但是一周左右还是要等的。好在宜家提供了设计软件,你如果有自己明确的想法和目标,其实大部分的设计完全可以自己在家完成:

当然,在开始前,我们首先明确下宜家厨房的产品规格:
1. 底柜
宜家的底柜高度共用2种高度,分别为70cm和80cm,安装需要加8cm的支腿,获得未安装的底柜高度为78和88cm,加上2cm或4cm的台面,最终操作面高度就有80/82cm或者90/92cm。而深度则有37和60两种规格,默认台面伸出柜体3cm,也就是操作台面深度为40cm或63两种。基本也是我们常用的高度和深度。

而在宽度上,60cm深底柜一共有20cm/30cm/40cm/60cm/80cm五种尺寸:

而在功能上,60cm深度的底柜一共分成拉出式(20/30cm),抽屉(40cm/60cm/80cm),搁板(20cm/30cm/40cm/60cm/80cm),网篮(40cm/60cm)4种功能,并且诸如搁板和抽屉可以组合在一个柜子里。

而37cm深的底柜则只有搁板和抽屉两种功能选择,并且最小宽度至30cm:

而对于诸如水槽,烤箱,灶台,消毒柜等都有专用的专用60cm深底柜:

这里需要注意的是,一般嵌入式燃气灶通常开孔尺寸都是大于60cm的,所以我们设计时一般只能选择80cm的燃气灶,并且两边要留有适当距离。而水槽虽然有小尺寸水槽,但是这里也要注意,60cm宽的底柜,中间实际空间只有56.4cm。而像嵌入式烤箱,8套洗碗机,以及消毒柜等,基本都是60cm宽的面板,所以首选是60cm宽的底柜。而37cm深的底柜,基本只能做L形或U型厨房的短边。布局实在困难的话,也仅仅只能做个水槽。而对于13套洗碗机,很多机器高度在845mm,所以这里只能选择80cm高的底柜组合,并且因为其宽度一般在605-610,所以设计时都会直接把台面架空,下方留空,不安排底柜:

当然,如果是一字型厨房的话,是不需要考虑转角的,直接根据需要的底柜和功能排就行了。但是实际上就会遇到之前说的问题,各种柜体组合起来的长度并不一定是正好与厨房长度相同,所以对于多出来的不足20cm的空间,我们就需要填充件来帮忙了:

图中黄色框线选择的就是填充件,你可以只放一头,或者将整个组合居中,两边填充。

但是现实厨房中,L型的厨房更多见,所以这里要引入一个转角柜的组件,来方便我们设计L型或U型厨房:

转角柜一共有两种样式,一种尺寸是128X68cm的,一种尺寸是88X88cm的。都是用于60cm深度的柜体转角,内部结构可以选转篮或是搁板,搁板相对比较经济,100来块就能获得,而88cm的转篮售价就要600,128cm的转篮则要900。虽然很坑,但好在柜体便宜,不像全屋定制品牌柜体也坑。


当然,具体选哪种转角柜,还是要根据实际情况定,并且在我的厨房里,如果一侧放了88*88的转角柜,另一侧就没有空间再安置转角柜了,因为我厨房深度230cm,台面用掉63,冰箱用掉100后,仅剩下67厘米的空间,所以我就直接放了个60cm的高柜,厨房最角落的20cm空间直接舍弃:

而高柜边上的80cm底柜,可以直接换成50+30的门板,保证靠水槽侧的门能打开,放置一些不常用的物件,这种设计方法也是宜家厨房非常常见的。包括60深与37深的底柜组转角也是可以使用类似方法,不过需要注意的是,如果使用非转角柜组直角,两个柜子之间需要预留8cm左右的空间,以保证两侧的抽屉柜门都能打开。而通过80cm和70cm两种柜体的组合,你也可以非常方便的组成高低台面来适应切配洗涤与烹饪的需要:

2.墙柜(吊柜)
这里首先要提醒的是,宜家不推荐在非承重墙上或有保温层的墙面上安放吊柜。而宜家的墙柜深度统一只有37cm一种,高度则有40cm/60cm/80cm三种,其中80cm高度的墙柜有20cm宽度可以选择,而60cm的最小则是30cm,而40cm的最小只有40cm的宽度了,最宽均为80cm。因为墙柜的布局相对比较宽松和自由,所以这里不做详细展开,只说说比较特别的柜体: 1.转角柜

墙柜的转角柜有两种,一种是直角转角柜,一种是切角的转角柜。

从使用上来说,无疑是切角的柜体更方便使用,当然,为此所付出的钱自然也会多一点。而大家从上图也可以看到,宜家所有的柜体其实都是白色三聚氰胺面的,而当柜子侧面外露时,就需要额外购买装饰面板来与柜门相配。而墙柜底部一般没有装饰板可以选择,但是可以选配装饰条,而上方的檐口也是另外加钱的。当然,看到的灯光啥的也都是单独的选配件。

对于灯光个人建议还是自己单独淘宝购买比较经济。
- 冰箱柜,横向柜

横向柜的深度依旧是37cm,宽度有40/60/80/140四种,但是因为上拉式开启,所以并不推荐装太高,而冰箱柜深度则有60cm,放置在冰箱上方,也可以非常方便的拿取物品,并有更多的收纳空间。宽度有40/60cm两种,可以组合使用,例如这样:

两个冰箱柜和一个高柜组合,然后下面就可以放一个双开门冰箱。
3.高柜 宜家的高柜统一都是60cm宽度,深度同样有37cm和60cm两种,用来搭配不同深度的底柜并排摆放,不过为了嵌入式电器的需求,一般我们都选择60cm深度的高柜,柜体上可以选择适用于微波炉与烤箱的柜体:

这个主要考虑是微波炉烤箱组合柜背面镂空,即使目前没有烤箱或嵌入式微波炉也可以为以后添置做准备。当然,如果家里吊顶层高有2500的话,还可以选择一个208的高柜,加一个40高的顶柜组合使用,这样就能几乎撑满整个垂直空间的高度,当然,墙柜与顶柜也可以这样组合,例如90高度的操作面,我们可以选择上面加个40cm高度的横向柜,上面再加个60cm高度的墙柜,这样台面距墙柜正好有60cm的操作空间,当然,缺点是顶上的柜子拿取会有些不便:

4.其他的林林总总
除了以上提到的基础柜外,宜家还有各式各样的专用柜体可以选择,这里就不一一介绍了,大家可以自己使用在线厨房设计工具来进行查看组合。并且还有中岛,吧台等不同的解决方案。基本能满足所有厨房的需求。同时除了橱柜外,还有很多挂件,网红推车等实用的小物件可以搭配:

5.组合技巧 除了上述提到的一些技巧外,在宜家商场,我也看到了一些完全不合柜体原生用途的组合,例如下面这款:

冰箱右侧高柜是使用两个20cm宽的底柜叠加而成,然后侧边直接定制了同色饰面板将其组合成一个整体的高柜。当然,这样的技巧除了靠自己想象力之外,最方便的途径还是直接预约官方服务,不过我这里强烈建议大家在预约之前还是先在家里根据自己的厨房设计了看看。像我在写这篇原创的时候,就又给自己的厨房重新设计了冰箱高柜区:

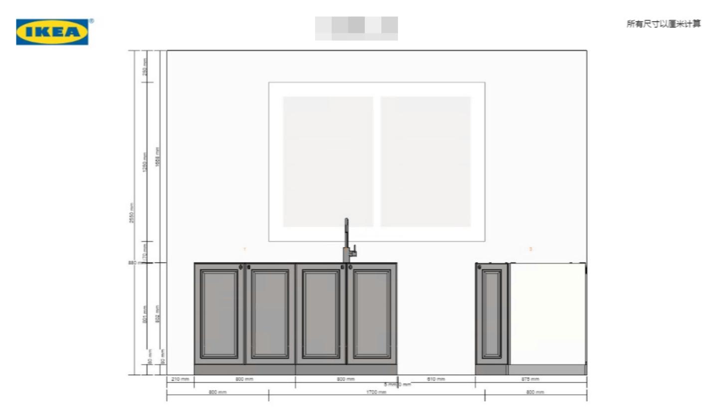
目前总价比之前大约贵了1000,达到19838元。除了能在线查看外,厨房设计工具还提供PDF*载下**服务,*载下**下来的PDF包含有所有包含尺寸

的平面图,立面图以及所有配件的价格清单:


四、总结
首先需要肯定的一点是,宜家厨房无论是选择价格高的门板或是价格低的门板,因为框体和五金件相同的关系,所以差价最大可能有着30%,但是其质量和质保期限是完全相同的。虽然柜体的尺寸都是固定的,但是通过不同的排列组合和一些技巧的应用,也可以将厨房空间利用率发挥到最大,当然,这里需要提醒的是,假如实在组合不出合适的布局的话,还是不要硬上了。最后祝大家都能定制到心仪的厨房,装修全程无坑。