吸油烟机:是一种净化厨房环境的厨房电器,他安装到炉灶上方,将炉灶燃烧的废烟和烹饪过程中产生的对人体有害的油烟迅速抽走,排出室外,减少污染,净化空气。
吸油烟机的产生和发展:

分类:


A、按吸烟方式:分侧吸式、顶吸式;
B、按电机数量:分单抽烟机和双抽烟机;
C、按清洗方式:分易拆洗、免拆洗、自动清洗;
D、按结构:分中式机、欧式机。

双电机与单电机:

操作方式:

吸油烟机的工作原理:
利用离心电机的高速转动,带动涡轮转动,在集烟腔附近形成负压区域,将油烟气体吸入机体内部并排出室外。



颗粒大的油零会被过滤网过滤,油污会顺着过滤网流入油杯中,而颗粒小的油零进入蜗壳后,在随叶轮高速运转过程中,因离心力的作用会被甩出叶片,击打在蜗壳围板上,油污顺着蜗壳油嘴流入油杯。
排出废气:

剩余的烟气则通过止回阀和排烟管被排出。
吸油烟机:按下开关后,由机体内的电机驱动蜗壳的叶轮旋转,在进风口区域形成一定的负压,通过集烟腔的引流,从面在炉灶上方一定的空间范围内形成负压区,其周边的油烟气体受负压吸引到达滤网,经过滤分离删一部分大颗及油雾,其余气体进入烟机内部的离心风机系统,经过风机叶轮的高速旋转,油烟气体受到离心力的作用被甩出叶轮,再次进行油烟分离,分离出来的油经过导油系统流入油杯,净化后的烟气沿蜗壳弧线变径向顺着风管排出。
结构原理:

风柜:
风柜与风轮配合形成风机。风柜的形状是蜗壳形的,有塑料的和用钢板焊接而成的,风柜的作用是汇集油烟,将油烟沿着旋转方向引至风柜的出口。由于风柜蜗壳截面积逐渐减小,在风柜内就形成了一定的压力,所以风柜的密封性要好,否则会出现漏油的现象。
风柜常出现的漏油有以下几种可能:
A、可能是风柜焊接工艺不好,或是油嘴密封不好,或是导油环与风柜配合处密封性不好。
B、可能是风柜与油烟机集烟罩连接处密封不好,或是密封圈老化。
C、吸油烟机安装不当,油路不畅通,或积油过多。
D、没有定期清洗。
箱体:
不同型号的吸油烟机,箱体形式也不同,对于超薄型吸油烟机,箱体是由机体、集烟罩组成的,对于深型吸油烟机,箱体是由机体、面板和集烟罩组成的。
对箱体的要求:
A、刚性好,不变形。
B、工艺好,焊接处平整、光滑,不能有焊穿、焊漏等焊接缺陷 。
C、造型新颖、美观、表面喷涂质量好,不能有漏喷、脱落、起皱、划伤等表面缺陷,色泽均匀,亮丽。
烟机转变、对比:

以上比较可能具有一定的商业倾向。
专业基础:
A、排风量:在规定的条件下,单位时间内输送的空气量,以立方米/分钟(m3/min)为标准。国标规定:排风量≥7m3/min;
B、风压:吸油烟朵在额定电压,额定频率下,最高转速运转出风口所产生的压力。国标规定:风压≥80Pa;
C、噪声:指整机运行时所产生的噪音,一般指声压级噪音。
国标规定: 噪声<74dB。
例如:吸油烟机的型号一般国标规定为: CXW-XX-WX
C--国家标准规定表示厨房类器具;
X--国家标准规定表示吸油烟机;
W--国家标准规定表示吸油烟机的净化方式(外排式);
XX--主电机输入功率;
WX--表示的是企业的产品设计序号。
主要技术要求:
A、工作环境:
a.温度:-15℃-40℃ b.相对湿度:不大于90%(25.C时) c.海拔高度:不超过1000M
B.性能参数:

吸油烟机的安装以及使用:
1、吸油烟机的安装:
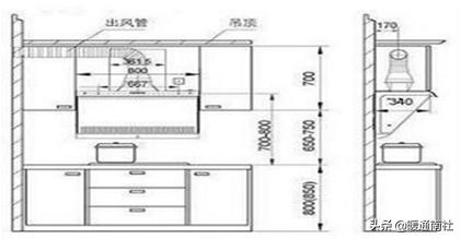
按说明书给定的安装高度与安装角度,安装吸油烟机。顶式与中式烟机的底边距炉台面的距离一般为650mm左右,侧式机与炉台面的距离一般为350mm左右,若安装过高,则影响吸油烟效果,若安装得过低则影响使用者操作。
安装吸油烟机时应有5°左右的仰角,便于油路顺畅,以免堵塞油路。
在安装油烟机时,排烟管不能过长,转弯要尽量少,转角要大于110度,否则管道阻力过大,影响排油烟效果。
在安装油烟机时要注意排出的烟气不准排入热的烟道中。
排烟管出口应避免安装在风向处,以免外界强风倒灌,影响烟气的排放。
用户的电力线路中必须有可靠地线。
针对油烟大、做饭频率高的家庭首推侧吸烟机
理由一:低位安装

理由二:不碰头
理由三:无油网好清洗
油烟机的使用:
⑴吸油烟机的使用时,应避免四周空气对流太大的环境,以免油烟扩散过快,影响排烟的效果。
⑵如果吸油烟机有异常声响,应立即切断电源。
⑶油锅起火时,请立即关掉吸油烟机
⑷吸油烟机实体、集烟罩、网罩等长期处在油烟污染的环境中,表面应经常擦洗,擦洗时应切断电源。
⑸油杯中的油污积存到一定量时,应及时清理,以免油污溢出污染机体。
常见问题判断:
1.不吸烟(吸烟效果差)
A.用户使用的油的品种为高档,有可能看不到油烟的上升。
B.吸油烟机安装高度不当(太高):安装高度在65—75cm,近吸式在35—45cm.
C.排烟管拐弯太多,太长,公用烟道口太小,造成排烟不畅。
D.电机故障,动力不足。
E.止回阀叶片因积油或太紧而打不开或不完全打开:产,调整排烟管使叶片能够自动开启。
F.电压不稳定或太低。
G.机体安装处于空气对流的、太大:适当半天关闭或全全关闭门窗减少空气对流影响。
H.风叶负载过重影响吸力:清洗叶片,去除油渍。
2 滴油和漏油
A,过滤网未装或破损,应装上或更换滤网。
B,使用一段时间后不见油滴入油杯:原因跟烹饪时间与方式的不同,油流入油杯的时间不同:机体装配未呈水平,有倾斜,应调整机呈水平状态。
C.中架板外缘漏:风口垫圈松脱:将垫圈紧密接排风室。排风室顶板接漏链,应用橡胶细条进密封或用油漆,肥皂填补间隙。
D,机体漏油:机体内框粘负过多油渍而滴油:应用清洁精或除油济油渍才不会滴油。
3.机体震动大:
A.电机未锁紧:锁紧电机固定螺钉,锁紧后检查是否平衡。
B.风叶受损变形:校正风轮调整叶片,改善变形状况。
4.噪音大:
A.固定电机螺钉松动产生噪音:把电机螺丝固紧。
B.机体安装不好产生震动噪声,在安装垫上防震橡胶减少机体震动噪音。
C.叶轮帽是否松动:紧固。
D.烟管底座是否打开,(墙体烟道不畅也会噪音过大):整时片,清理烟道。
E.叶轮上铆钉松动或叶片松动,卸下叶轮铆钉紧固,风叶修正。
F.电机轴承坏,换电机。
来源于互联网。