你好!我是勾勾手设计网,是你微信世界内的个性创意艺术顾问!为懂得我们的客户提供贴心服务!好设计+好产品≥好生活保证!

老 刘 说
Old Liu said
业主住在上个世界60年代建设的农庄内,他们希望建筑师设计另个可供出租的豪华度假小屋,小屋应该独立,让客人能享受自然美景,同时隐私得到最大的保护。客房朝东,内部有全套的厨卫设备,起居室,卧室以及浴缸。面朝美景有大面积玻璃窗,卧室上方有天窗,而附带的地下室可用于临时储存。
建筑共两个单元,这两个稍微错开的单元看上去就像是漂浮在地面的玻璃体。起居室外面的宽敞露台让人们可以更方便的享受美景。侧墙上采用弧线过渡的手法,玻璃渐渐融于镜面墙壁。而面向农庄的西侧,则是完全的镜面玻璃墙。建筑涂上了UV图层防止鸟撞。
这个镜面度假小屋并没有直接与一旁的老建筑争相斗艳,而是融入了整个环境。

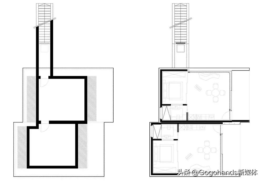
建筑规划图

建筑平面图
02-现场实景
在意大利博尔扎诺的镜面度假屋项目。该度假屋位于阳光灿烂的南部地区,视野开阔,群山在远方连绵不绝的蔓延到天际。镜面小屋拥抱着这美丽的景色,同时它自身具有的镜面表皮又反射着这些美丽的景色,成为一座坐拥自然,融于自然的现代建筑。

















勾勾手设计网|2021年业务布局
A)设计服务:
01-潘小君自建房(一站式精装入住的建筑开发商)
02-勾勾手文旅服务(项目策划+规划设计+招商运营)
03-梦茹餐饮设计工作室(餐饮加盟连锁商业赋能)
04-GGH(勾勾手)移动房设计机构(引领全球个性移动房产品体系设计)
团队揸FIT人介绍




