纯净,走向浩瀚世界

蓝色,是生命中的最具传奇色彩的永恒,来自海洋和天空,代表着人们对自然的向往。由德国著名设计事务所IFG(Ippolito Fleitz Group)打造的青岛铂悦灵犀湾售楼处的室内设计,灵感于海洋蓝,尝试通过梦幻的色彩创造一个“海蓝之迷”的奇妙空间。不同层次的渲染,纯净而清晰的空间导向和故事性,融合壮观的海景视野,营造充满艺术观感的视觉空间。


项目位于青岛市西海岸映山红路与海军路交汇处,山海在侧,私享青岛臻境沙滩山海资源,秉承艺术化生活方式、国际化美学标准,追求至善生活体验,打造青岛湾区城市地标人居。
建筑引用圆润的转角处理,在不失端庄感的前提下适度增添活力,与其他相邻建筑群体相呼应。整座建筑具有强烈的吸引力以及动态雕塑性,形体扭转朝向广阔的海景创造无限的水平线。





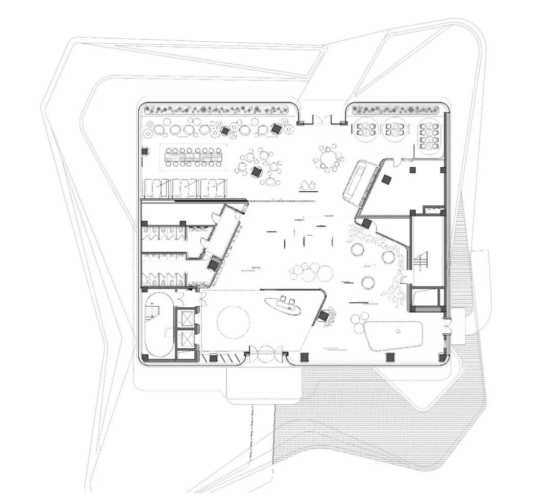
整体设计运用了不同层次的蓝色与透明色来突出了海洋生活方式体验。项目及品牌展览区域设置了很多具有通透感的玻璃隔断增加了趣味性以及探索性,让客户在穿梭于整个展览空间,解锁每个角落带给客户的惊喜。在激发探索欲和好奇心的同时,渔网、绿植、室外家具、艺术吊顶、互动媒体与设计概念的结合为展览动线增添了不少乐趣。
入口雕塑感的迎宾台后设置了半透明的层次丰富的展览区,通过一系列有机曲线的墙面和一片片纵横交错的展示板及通透的玻璃隔断,并结合一系列抽象艺术装置(帆船,鱼群,渔网,海洋生活摄影,声音体验装置,本土手工艺品展示装置)将客人引入一系列奇妙的充满艺术和诗歌气息的海洋生活体验展览。所有展示的艺术图片都统一为一种怀旧的蓝色和灰色系,在周围光影迷惑的蓝色玻璃和银色3D氧化铝墙面对比下增强了艺术性。




绕过展览区客户来到一个时尚而海洋生活感十足的咖啡吧。大部分的家具灯具采用了简约的圆弧线条,同时着重运用手工编织,手工陶艺能最返璞归真的体现手工质感的材料。尤其是中间6米的长桌,采用手工烧制的蓝色窑变陶瓷砖,并混搭了各种蓝色的窑变陶瓷凳,体现蓝色海洋文化的同时也强调了中国文化的传承。包括懒人沙发在内的各种半户外风格座位形式以及搭配的绿化灯盘,窗边植物花池也将慵懒放松的海滩生活还原到极致。






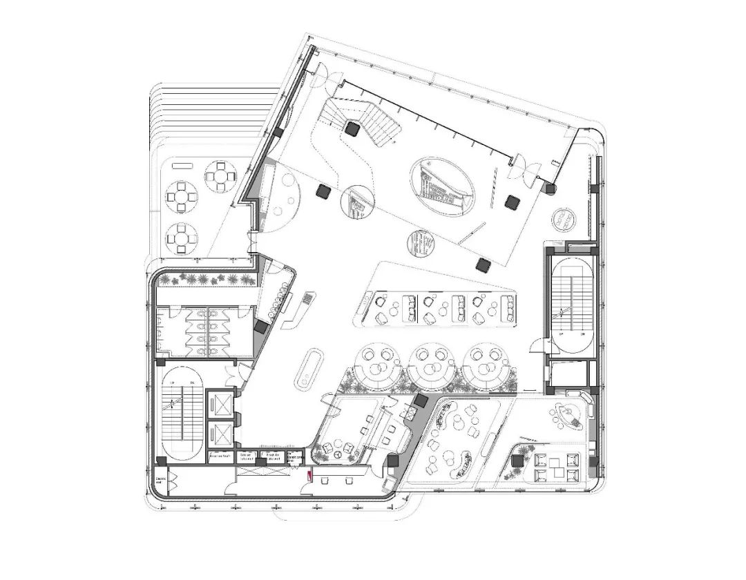
沙盘区设计在二层,一个充满自然元素与和谐感的展示空间。除了沙盘及项目洽谈区,还结合了儿童区、贵宾区等休闲功能。为营造一个愉快、舒适的氛围,设计中使用了很多木色、植物墙以及柔和又通透的透明布帘来把空间打造地更加柔和。





洽谈区和贵宾区的软装兼顾蓝色海洋风格色彩的同时更着重商务性,家具饰品风格轻松中更为内敛,考究。洽谈区一款圆形茶几特别选用了大花纹的银河蓝大理石,为严谨的空间又增加了一丝奔放的戏剧气质。上方的圆形艺术吊灯从天花直接延伸下来,艺术性的为每个洽谈组团画龙点睛。










铂悦∙灵犀湾售楼处的设计为不同功能空间添加了鲜明的主题,设计师通过纯净的色彩、灵动的空间、多元化的展览营造了一个自由的艺术形态,创造奇幻的设计梦境。


项目名称:铂悦灵犀湾售楼处
项目地点:山东青岛黄岛区
特别鸣谢:青岛隆海集团、山东旭辉银盛泰集团
项目面积:2400m²
室内设计:Ippolito Fleitz Group
主持设计:Peter Ippolito
设计团队:Sasha Zhang、Hahil Dogan、Wenso Yang、Joanna Chen、Ruth Calimlim、Peiyu Ho
软装设计:Linda Li、Sasha Zhang

Gunter Fleitz、Peter Ippolito
Ippolito Fleitz Group(IFG)是一家跨领域的国际性设计事务所,总部位于德国斯图加特,分别在德国柏林和中国上海设有分公司。IFG团队拥有来自19个不同国家的80多名设计师组成,以‘构建个性的设计师’为理念,涵盖建筑设计、室内设计、产品设计、传媒设计及品牌战略等不同类型的项目服务。











△上海中鹰黑森林.多彩空间






△上海中鹰黑森林.灰色层染









△德国White Monkey餐厅
现代 售楼处 Peter Ippolito 色彩 银河蓝大理石