爱自己,才是终身浪漫的开始。
本案例的业主是一位漂亮的钢琴老师,在目前一人居的状态下,内心仍然拥有着对生活的期待。她热爱生活的点滴与一切美好事物作伴,优雅浪漫,让人一见钟情。

房屋户型:三室
房屋面积:180平方米
装修预算:30万
所在城市:成都
设计师:艾鹏程
主要建材:大理石材、烤漆玻璃、天然木皮、进口耐磨地板、特殊磁漆

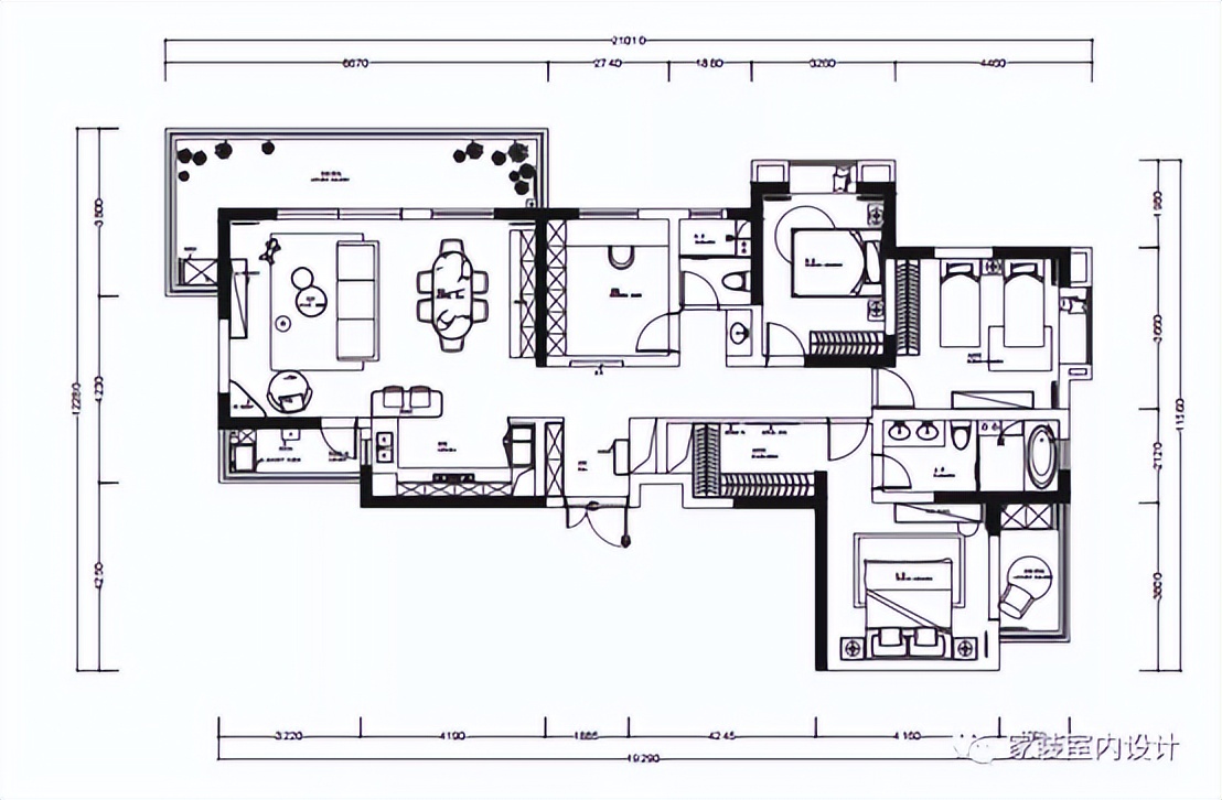
【平面图】
房子是一套面积为180平米的大平层,是一套精装房改造的案例,基于5组对家的期待,所以设计师在房子中注入了法式浪漫,打造出了一番现代与复古完美相容的生活场景。
根据女业主的生活需求和习惯,设计师通过打开封闭厨房实现LKD一体化布局,增强了整体室内的活动性。


【玄关】
装修亮点:清新优雅 韵味十足
进入玄关正对着就是端景布置,清新优雅的气质扑面而来,加上其欧式拱门的玄关台设计,也都能一一的体现房间的优雅韵味。

【餐厅】
装修亮点:明丽静美 雅致写意
lkd一体化的布局,让餐厅客厅和厨房互动无障碍,在世界上也扩大了空间,同时正常的与家人的互动性。
餐厅连续着客厅写意的风格,古香古色的木质板面与简洁的亚克力桌腿,还是让整个餐桌都体现了古典与现代的完美结合。

选择的曲木桌椅为餐厅空间也带来了一股浓郁的复古欧洲风情,餐桌上面的吊灯也提供着厨师的大气光。

在这里我们可以实现二人世界的浪漫烛光晚餐,也可以一家人坐在这儿,其乐融融,享受亲子的时光。

与家人在一起围坐吃饭当然是最惬意的时刻了,收获着生活的温度,时间在于家人的欢声笑语中放慢脚步。
【厨房】
装修亮点:色调统一,营造和谐
设计师将原厨房的推拉门拆除使用了开放式的设计,这样整体增加了通透性与互动性,再加上橱柜的灰色元素与客厅沙发相呼应,也能使整个空间的色调统一和谐。

把厨房的部分功能转移到了餐厅区域,满足了居住者对日常简便的餐饮需求,同时还能扩大收纳储存的空间,让室内得以保持整洁。

【客厅】
装修亮点:清新浪漫 香盈怡人
客厅整体是属于宽敞大气,干净通透的,用柔和的白色与知性时尚的灰色,构成了客厅的基础色调,在有暖色系的木质地板调和其中,营造出来温馨的居住氛围。

灰色的沙发搭配银色茶几,现代家居与法式复古相得益彰,圆润而饱满的曲线,拥有充实的质感,兼具美观与实用。

因为业主本人喜欢读书,所以在比如上方创意性的白质书本与周围复古的饰品搭配,别有一番风味,也为业主单独的营造了一个安静惬意的阅读角。


客厅作为主要的活动场所,在木板上铺上柔软舒适的地毛毯,也更增加了家的温馨感,地毯的款式,简洁复古,跟茶几一起营造出别样的韵味。

【主卧】
装修亮点:柔美舒缓 静谧安逸
整个主卧是由莫兰迪色系主导着整个空间,各个色彩相互制约,营造出来一种柔和舒缓的高级感。

而床头的落地灯,新颖时尚而不失艺术的底蕴,置身于其中,油然生出令人安逸的包裹感。

主卧的阳台是业主的另一个居心地,相当的安静自如,沏上一壶热茶,坐在这里面读书或者是报纸,静静的享受生活的丰富。


【次卧】
装修亮点:色调搭配 尽显大气
次卧主打深色系,灰黑色的床品搭配着茂密的森林背景,象征着生命力和探索力。

在衣柜的床位也有着充足的储物空间,平时家里面来客人,或者是家人,都提供了收纳自由。

【书房】
装修亮点:流动的时间与静谧的空间
而书房则回归简约,金属元素的顶灯呼应者复古的格调,平时女主人可以在这里面办公或者是看书,也非常的静谧。


小结:
林语堂曾在评《浮生六记》时写到:
“我相信,淳朴恬适自甘的生活,是宇宙间最美丽的东西。”
希望每一个女生都能够活出自己想要的样子。
【图片若有侵权,麻烦私信删稿】