层高4.7m、套内面积40㎡的迷你Loft,
改造处处都是难题。
怎样分层高,住的不压抑?
怎样榨干每1㎡,
放下十几个功能区?

Q & A
Q:这套Loft设计最大的难点是什么?
A:4.7m的层高分配,原先两层平均分配,每层只有2.2m,每一层都不显高,屋主觉得很压抑。
Q:小户型Loft的层高如何分配才是最佳?
A:给经常待的空间更舒适的层高,停留时间不多的空间不用太高,主要活动空间层高最低要在2.4m。
Q: 你具体是怎样做的?
A:我把整个房子分成四个区域,分别分配了层高。玄关大概2.2m,客厅2.4m,二楼走廊2.2m,两间卧室2m,因为业主只有睡觉时才待在卧室,而且大部分时间都是躺在床上。
Q:这么小的户型,你一共规划了多少功能区?
A:10个,该有的功能区都有。
认识Ta们

在家屋主 Bryan
苦逼搬砖的飞行狂,一年365天当中300天在外地住酒店,因为总出差,所以会非常看重家的感觉。

设计师:刘畅
处女座的独立设计师,坐标北京,19岁开始做设计,他觉得设计师首先自己要会生活,才有资格去设计别人的生活,布置别人的家,一个人的品味审美在各个方面都是相通的。
房屋信息
户型:LOFT,2室1厅,1厨1卫
套内面积:40㎡
坐标:北京通州
花费:45万
装修时长:5个月
装修灵感:屋主喜欢绿色的东西

改造前
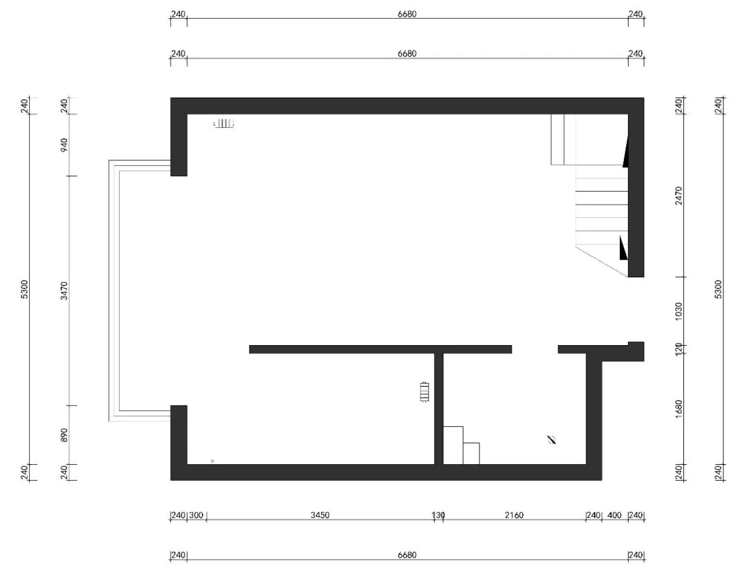
这套Loft户型的致命伤是:每一层都显矮;进门没有玄关,客厅一览无余,隐私性差;封闭的厨房,狭小不便。
一层空间

左右滑动,查看改造前后对比
-
增加玄关,将入户左边的墙向卫生间移动40cm,规划出一整面柜子;
-
改变原先卫生间门的位置,将卫生间改成洗衣房;
-
改变楼梯位置,增加了楼梯下的储物空间;
-
客厅侧面(玄关背后),增加了工作区;
-
拆掉了厨房和客厅之间的墙,做成了开放式。
-
把两层的窗户改成了比较长的飘窗。
二层空间

左右滑动,查看改造前后对比
-
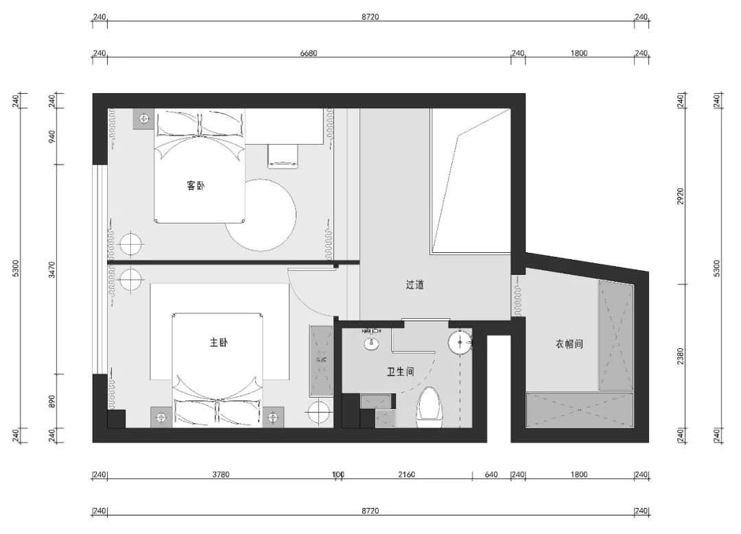
二楼主要是居住功能,规划了两间卧室+卫生间+衣帽间;
-
卧室区域的空间抬高,层高控制在2m,这样能使楼下客厅层高保持在2.4m;
-
次卧门做成了玻璃推拉门,保证了过道的采光。
动墙+移门,隔出一个收纳型玄关

装饰画:Zhan studio
这间Loft户型原先一进门一览无余,左侧是卫生间,于是我将原卫生间门改到厨房旁边,整面墙向左移动40cm,定制了一面大衣柜和鞋柜,增加了玄关的收纳功能。
正对面新建了一堵墙,用minimore的长凳当换鞋凳,装饰画选了一幅瑞典摄影师的风景作品,自然的感觉与整体很搭。

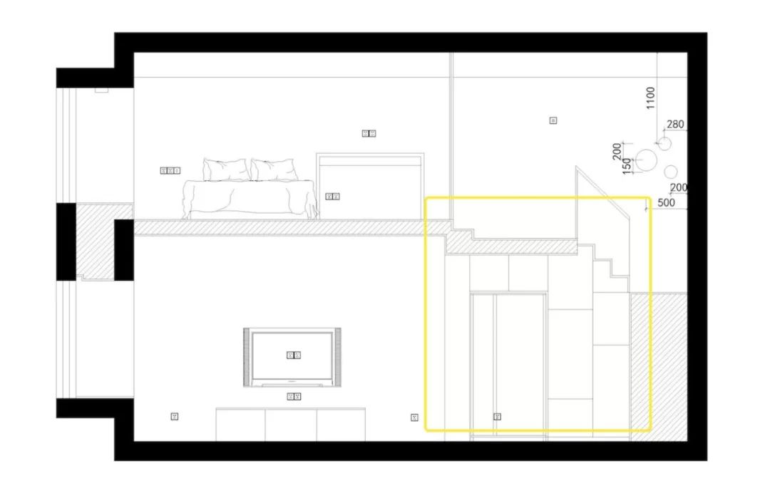
右侧的楼梯也变动了方向,宽度70cm,让工人先打了钢结构,在上面铺地板,定制了玻璃扶手。

楼梯的下面也没浪费,让木工现场根据楼梯的尺寸做了柜子,喷上白漆,严丝合缝的内嵌冰箱,柜子的侧面也做了面向客厅的书架。

客厅改LDK大空间,还藏下一个工作区

从客厅看向玄关,就能看到这个书架。
客厅和玄关的层高不同,从2.1m高的玄关走进2.4m高的客厅,会有一种豁然开朗的感觉,玄关作为日常起居不长待的地方,层高低一些也感觉不出来。

客厅是日本很流行的LDK空间,它是一个集客厅+餐厅+厨房三位一体的开放式空间。

飘窗切面图
室内采光很好,所以特意让工人把窗户改成飘窗,铺上木地板台面,飘窗上吊顶内藏射灯,白色墙面用了黑色百叶窗,反衬出层次感。

抱枕:Concept 101
茶几:minimore
毛毯:Slowdown Studio
利用玄关墙背面偷出来一间迷你书房,在墙柱之间内嵌工作桌,旁边增设了壁龛式木质置物架,小空间就是要榨干每一寸空间开发功能区。

沙发:舒梵
蝴蝶凳:如典
定制的沙发,细腿+不高的靠背,看着非常轻盈,很适合层高不高的小户型,皮制的触感也很舒服。

沙发背后靠着餐桌,四周形成了洄游型的动线,这样的布局也很适合小户型,空间利用率会更高,而且也可以做到边在餐桌上吃饭,边看电视。

电视柜:minimore
扶手椅:桌椅板凳
坐在餐桌看电视的视角,墨绿色的电视背景墙是业主喜欢的颜色,也是这个家的主题色,墨绿色的搭配,我增加了绿植、原木、黄铜的元素。

太爱这把Marcel Breuer扶手椅了。
回字形橱柜,把管道+电器包起来
餐桌、餐椅:HAY
餐厨相连,餐桌也可以作操作台使用。
回字型的橱柜结构,柜门做成纯黑色,很有质感,有点遗憾就是没有做纯哑光,中间是原木色的吊柜和白色的台面,这样做是因为上面和两侧都藏着很多管道和电器设备,用柜子包起来看着简洁些。
楼梯玻璃扶手,通透不挡光

从二层俯视一层,玻璃扶手让空间通透干净,墙上的水磨石壁灯,与墨绿色半墙搭起来也不冲突。

二楼的走廊层高大概2.2m。对面的谷仓门后面就是卫生间,左边的衣帽间没有做门,而是做了个白色的帘子拉起来,右边做了两层台阶可上到两间卧室。
玻璃移门+拉帘,把次卧采光引进室内

两间卧室的层高被控制在2m,一部分层高借给了客厅,使楼下的客餐厅空间可以保证2.4m的高度不压抑。
楼梯的墨绿色半墙一直延伸到次卧,让整个空间视觉上增加延续性和整体感。

次卧做了玻璃推拉门,白天的时候可以更好的保证走廊的采光,里面做了白色拉帘,晚上休息的时候拉上帘子可保证隐私。

书桌、椅子:minimore
某宝买的橡木箱床,可以增加一些储物空间,没有床头空间也更显干净,遗憾的是暖气片和空调没帮业主把关,外露着有点碍眼。

屋主偶尔会在次卧室里工作,配一张书桌和椅子,简单而实用。

床品来自直物人,装饰画是在网上买来画心,用橡木画框装裱,替换方便。
墨绿色的主卧

主卧的墙面刷的颜色依旧是墨绿色,只刷了床头背景墙,绿色的床品是业主自己买的,可见业主是多爱绿色。

百叶窗的光影打在墨绿色的墙上。

卧室的布置非常简单,右边绿色的边几是在宜家买的,左边用置物架代替床头柜,可以做简单的收纳。
迷你卫生间,也要用上所有浴室好物

防雾镜柜:高漫卫浴
一个人居住只保留了二楼的卫生间,水泥砖搭配白色马赛克,很好打理。
提高浴室的幸福指数,那一定是智能马桶和电热毛巾架,马桶安装要提前安装玻璃水箱,在离地30cm高的地方安装插座,做好防水。

浴室好物还用了智能防雾镜柜,不仅可以开灯,还可以连上蓝牙听音乐,在淋浴房洗澡的时候,就可以尽情唱歌。

柱盆:观搏卫浴
浴室柜换成了柱盆,暗装水龙头,不占地方,也好清洁。
在北京这个寸土寸金的地方,
偷的一厘都很难的,
如果你买了一间小户型,
一定要每一寸都花心思,
只有这样才能处处有惊喜。
留 言 福 利

猜你喜欢

层高不够的家,如何布置灯?

眼前一亮的20处细节,我爱上了设计师家的走廊、门套、下水道!
商务合作
微信ID:TrendsZaijia006
微信ID:TrendsZaijia010
后台回复“转载”,获取转载须知
策划、执行/Cimon 图片/刘畅提供