
一、一般说明
本工程所有墙体采用砂加气混凝土块,该材料有利于隔声、保温及环保。
1、依据图纸设计要求测定装修阶级使用的统一控制轴线和建筑50标高线,弹于柱及墙面上。
2、深化了解施工设计图纸,并对有关技术和施工人员进行相关的技术交底工作。
3、工程中使用的砌体、钢筋、32.5普硅水泥、石子、黄砂等材料,应具备有效质量合格证书,产品性能的检测报告等。其外观质量应抽检合格后,并按要求复试合格后方可使用,且按工程量备足材料和施工设备。
4、施工前必须保证砌体的含水率符合规范要求宜为5%-8%,气温过高、干燥时,表面应浇水湿润。
5、砌筑水泥砂浆、构造柱与圈梁砼强度,施工中均严格按配合比进行配制,并按要求留置砂浆试压块和砼试压块。
6、砌筑砌块在正式施工之前,在施工现场按设计要求砌筑一段样板墙,评定施工技术水平和施工质量,以确定今后的工程质量管理工作。
7、施工前必须保证加工的拉结筋、构造柱、圈梁符合设计要求,且使用的钢筋数量、规格、尺寸符合设计及规范要求。

二、砌筑施工要点
1、按砌块每皮高度制作皮数杆,并竖于墙体的两端,两相对杆之间拉准线,在砌筑位置上放出墙身边线。
2、砌块应提前2d浇水湿润,以保证砌块有一定的含水率(宜为5%-8%)。在砌块砌筑时,应向砌体面适量浇水。
3、在砌筑砌体墙底部应用烧结普通砖砌筑高度不小于200mm。卫生间墙体底部应用C25砼浇注一道砼导墙。
4、不同干密度和强度等级的砌体不应混砌,也不得与其他砖砌块混砌。(底部与顶部的砌筑方法不视为混砌)
5、砌筑时,砂浆满铺长度不宜过长,应随铺随砌,并做好ā三个一ā。灰缝应横平竖直,砂浆饱满,水平灰缝厚度不得大于15mm(省标12mm),竖向灰缝宜用内外夹板夹住后灌缝,其宽度不得大于20mm(省标18mm)。
6、砌体接近上层梁、板底时,宜用烧结普通砖斜砌挤紧,砌筑倾斜度为60度左右,砂浆应饱满。
7、墙体洞口小于300mm时,应在洞口上部应放置2根直径f6mm钢筋,伸过洞口两边长度每边不小于500mm;洞口大于300mm时,洞口上部应增加一道预制过梁,伸过洞口两边长度每边不小于250mm。

填充墙上的门窗过梁除已有详图注明者处断面及配筋按下表选用:

8、砌块墙与承重墙或柱交接处,应在承重墙或柱的水平灰缝内预拉结钢筋,拉结钢筋沿墙或柱高度每0.5m左右设一道,每道为2根f6的钢筋(带弯钩),伸出墙或柱的长度不小于700mm,在砌筑砌块时,将此拉结筋伸出的部分埋置于砌块的水平灰缝。当120厚墙体墙长>5m时,后砌非承重隔墙的墙顶应与梁、板拉结f6@1500,按图1施工。拉结筋与砼柱的连接方法按图2施工。Lae-一二级框架时,沿墙全长布置。


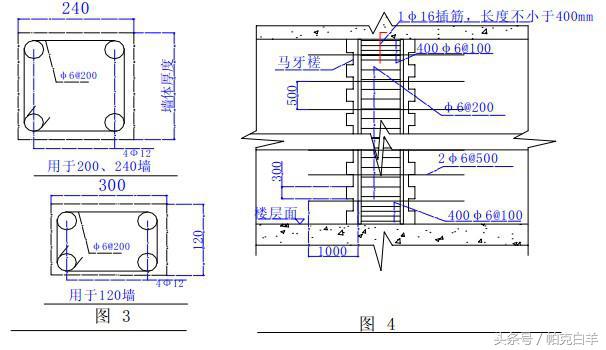
9、填充墙构造柱的设置位置、断面尺寸应于设计图纸相符合,除已注明外,应在墙体转角处、不同厚度墙体交接处、较大洞口两侧(³1500)、悬臂墙端布置。构造柱(主筋4F12,箍筋f6@200,上下400为f6@100)断面尺寸亦可据墙体厚度按图3选用。构造柱应先砌墙后,当砂浆有一定强度时(不少于7d)灌注C25砼。
10、当墙身长>5m时,应在墙身长1/2处增加一构造柱。构造柱与墙体连接处宜砌成马牙槎,高度为300mm。并沿墙高每500mm设2f6拉结钢筋,每边伸入墙内长度不宜小于1m。构造柱与梁、板连接处应加一根F16插筋。按4图施工。

11、当墙高大于4m时,应在门洞顶处或1/2层高处布置一道圈梁,断面尺寸亦可据墙体厚度按图5选用。若圈梁代替门洞过梁时,应在圈梁底部增加2F16的钢筋,过洞口每边长度不小于250mm。按图6施工。

12、构造柱和圈梁与砼柱、梁、板连接方法:采用在柱、梁、板砼上按构造柱、圈梁的钢筋尺寸打眼,眼深80~100mm,用结构植筋胶将钢筋与柱、梁、板砼结合成一体,按图7施工。

13、加气块砌体墙上不得留脚手架眼。
14、锯砌块应使用专用工具,不得用斧或瓦刀任意砍劈。
15、加气块砌体墙每天砌筑的高度不宜超过1.8m。
16、在浇灌砼前,必须清除圈梁与构造柱孔洞内的杂物及削掉孔洞内凸出的砂浆,并用水冲洗干净,较正钢筋位置,并绑扎或焊接固定点,方可浇灌砼。
17、梁与构造柱和预埋钢筋连接的搭接长度不应小于35d,采用焊接时,双面焊长度不应小于5d、单面焊长度不应小于10d(d为钢筋直径)。
18、若为多孔砖、砼砌块墙体上部与圈梁接触处,为避免浇筑圈梁时砼灌入孔内,应在墙体与圈梁接触处搁置与墙体同宽的f4钢丝网进行封堵。
19、模板支设:在圈梁底一皮砖下间隔1m预埋矩形穿墙f6钢筋套用于紧固模板下部,如图8

20、构造柱模板支设可采用预埋矩形钢筋套加斜支撑配合的方法。
21、为确保构造柱砼浇灌密实,在柱底部设清扫口外,还应沿墙高间隔500mm处侧壁开设直径10mm的观察孔,施工时用透明胶带粘严,通过观察流浆情况确保柱砼的密实,按图9施工。

22、砼浇灌宜分层(一般在500mm)浇筑振捣,选用合适振捣棒,浇筑时底层铺20~30mm同配合比去石水泥砂浆必不可少。

三、质量标准
1、砌体和砌筑砂浆的强度等级应符合设计要求;
2、填充墙一般尺寸允许偏差:

3、砌体砂浆饱满度³85%
4、砌体留置的拉结筋的位置应与块体皮数相符合,拉结筋应置于灰缝中,埋置长度应符合设计要求,竖向位置不应超过一皮高度。
5、砌筑时应错缝搭砌,长度应不小于砌块长度的1/3;竖向通缝不应大于2皮。
6、砌体灰缝厚度与宽度应正确,其水平灰缝及竖向灰缝分别宜为15mm(省标12mm)和20mm(省标18mm)。
7、填充墙砌至接近梁、板时,应留一定空隙,待填充墙砌筑完并应至少间隔7d后,再将其补砌挤紧。
8、构造柱、圈梁砼强度符合设计要求。
9、砼受力部位严禁出现蜂窝、孔洞、露筋、疏松、夹渣、烂根以及影响结构性能和使用功能的裂缝、软弱层等现象。
10、砼应表面平整、密实、整洁、色泽基本一致;阴阳角方整、顺直、无缺棱、掉角、漏浆;与墙体相交处线角顺直;门窗洞口方正、尺寸和位置准确;梁、柱、板相交节点处尺寸准确,无错位、颈缩、掉角、漏浆现象。
11、应按规范要求留置砂浆、砼试压块。

四、成品保护
1、砌体上的设备留槽孔以预留为主,严禁砌后剔凿而损坏砌体的完整性。
2、砂浆稠度应适宜,砌墙时应防止砂浆溅赃墙面,宜随砌随清理灰缝和落地灰。
3、支模浇灌砼前,宜在砌体接触面边沿粘贴海绵条等防漏浆措施,已保护砼质量和墙面清洁。

《更多精彩文章请关注头条号:帕克白羊》