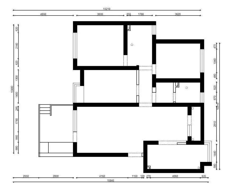
房子布局不满意?那多半是装修第一步出现了问题。要想房子空间通透明亮,敲墙、砌墙、隔断步骤少不了。房子瞬间增大N倍,但不是所有墙都能敲。分清承重墙,利弊多判断。首要就是看户型图,如下图展示,黑色部分都是承重墙,白色部分为非承重墙,是可以拆除的。
靠这一招,我家装修省了3万!10秒获取免费装修报价单:「链接」

谈起隔断,人们的第一反应就是砌墙。其实不然,实际上隔断分软隔断、硬隔断。

一、硬隔断
可以完全分隔空间,优化空间布局,起到隔音、遮挡视线的作用。

1、轻薄之选:石膏隔墙
主要以建筑石膏为原料制作而成,优点很轻薄,比普通砖墙节省空间,价格便宜,工程时间短。
缺点明显是隔音较差,不宜挂重物。

石膏板隔墙用轻钢龙骨打基架,厚度一般在9.5-15mm之间,每平方米自重6-12Kg。用两张纸面石膏板覆在轻钢龙骨上可形成隔墙。

2、隔音之选:砌砖墙
常见的材料是轻质砖,室内隔墙很常用。它不会增加楼面负重,隔音效果不错,是红砖和石膏板的替代选择。

靠这一招,我家装修省了3万!10秒获取免费装修报价单:「链接」
二、软隔断
能起到隔而不断的效果,小户型空间有限,不适合做硬隔断,会显得更加狭窄。
常见的软隔断有:窗帘、玻璃、屏风、植物、柜子、书架等。
1、储物之选:各种柜子或其他家具
用柜子做隔断,在分割空间的同时轻松储物。在玄关、客厅和餐厅广泛运用。

2、空间之选:窗帘/屏风/玻璃
软隔断有两个方向可选:一是采用轻薄材质,比如纱帘、屏风等做隔断;二是采用透明玻璃。

轻材质隔断是最省钱的,在装饰性上也极具优势。纱帘、屏风、百叶窗、挂帘,完全可以控制在预算里面。

玻璃隔断:对于室内采光特别友好,有些人会为了它舍弃卧室门。黑框玻璃和自带雾面的长虹玻璃都很受大家追捧。

3、开放之选:条形栅栏/谷仓门
用黄铜、实木、玻璃制作而成,隔而不断,若隐若现,有艺术感。

4、便捷之选:地毯/绿植
不同质感,不同花色的地毯,用来划分区间。几盆手工编织吊兰作为区域隔断,比挂画别致,是一道天然的隔断。


根据光照、耐水度等挑选每个角落适合摆放的植物,别吝啬你发现美的能力。其实做隔断没那么难。

靠这一招我家装修省了3万!点击下方“了解更多”即可3秒获取免费预算报价。
