

建筑与基地间
应当有着某种经验上的联系,
一种形而上的联系,一种诗意的连结!
——StevenHoll

(福州大楼 1937年&2021年 前后照片)
本案,位于令人心向往之的外滩历史保护建筑 福州大楼内,老式的英式楼房,准现代派装饰风格,是上海的知名老建筑。
This case is located in the Fuzhou Building, a historically protected building on the Bund.

设计前实景拍摄
设计理念
色块区分增加空间层次感
原户型朝北向,空间较小,存在采光不足,压迫感强等问题。设计师与业主多次沟通需求后,采用了法式复古+自然的设计风格,充分利用法式线条、木质家具、老房梁、装饰元素等进行色彩搭配,以色块区分的形式增加空间的层次感,做旧米白色的主色调,自然绿的第二色调,辅以橙色点缀,不同色块的差异,让空间更具延伸感。
French retro + natural design style, using the form of color blocks to increase the sense of space.

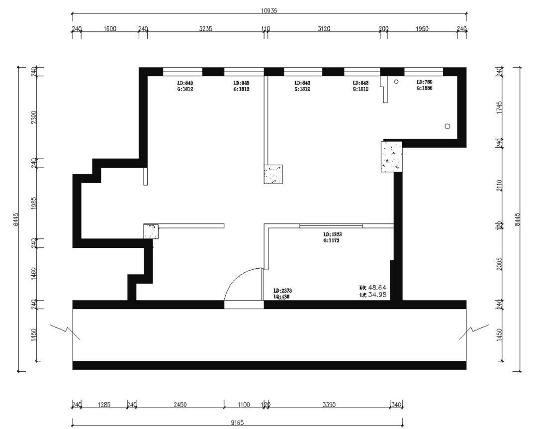
原始平面图

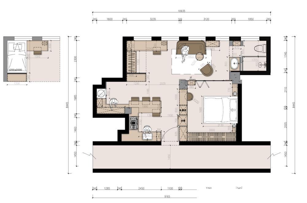
彩平图

厨餐厅
开放式互动体验,更具生活乐趣


(餐椅来自于JOLOR)
原先厨房处凹进去的死角位很乱,设计师将其打通后设计了一个L型的多功能柜,充当餐边柜功能,同时也加强了一家人的互动性。
After opening up the original kitchen, the designer designed an L-shaped multifunctional cabinet that functions as a sideboard.


老房子的房梁较多,设计师将其全部刷成绿色,米白色打底,绿与白的对比,通过色块穿插,增加空间的延伸感。
The designer paints all the beams of the old house in green, with off-white as the base, interspersed with color blocks to increase the sense of space extension.

1.9m的大餐桌,深受女主人的喜爱,原以为小空间不能放这么大的桌子,这次设计师帮她实现了。
The 1.9m large dining table is deeply loved by the hostess.

收纳空间具足的餐边柜,满足了男女主人安置小家电的一切幻想,原先只能放个咖啡机的地方,现在不仅可以放咖啡机,还能放榨汁机、烧水壶、水杯等,内置餐边柜,妥妥的收纳王。
The sideboard with ample storage space satisfies all the illusions of the host and hostess of installing small appliances.
小客厅
幸福感倍增的公共空间

原户型客厅布局非常受限,可活动空间小,给人感觉挤压感强,设计师借助房梁做了改善,增加了鞋柜、冰箱、书柜等收纳空间,冰箱安置在最佳三角区位置,方便移动。
The designer made improvements with the help of the beams and added storage space for shoe cabinets, refrigerators, bookcases, etc.

改善后的小客厅,自然舒适,这是另一家三口幸福感倍增的温馨公共空间。
The improved small living room is natural and comfortable.


在静谧的时光中享受开放、共享、互动,思索生活,感知自由。
Enjoy openness, sharing, and interaction in a quiet time: thinking about life and perceiving freedom.
儿童房
独立又开放的秘密花园

你想拥有秘密花园吗?用高低床打造的秘密基地,是小主人最喜欢的独立空间,上层是可以休憩的卧室,下层是多元化的书房。
Do you want to have a secret garden? A secret base built with high and low beds. The upper level is the bedroom and the lower level is the study.


窗帘一拉,有种被文化包容的氛围感,安全又隐秘。窗帘一开,便是享受家人之乐的温馨小客厅,开放又舒适。
When the curtains are drawn, there is a sense of cultural inclusiveness,When the curtains are opened, it becomes a cozy little living room for enjoying family happiness.


秘密花园的下方区域是“精神世界的充电桩”,这里既可以安静的办公,也可以专注的学习。
The lower area of the secret garden is the "charging pile of the spiritual world", where you can work quietly and study attentively.
主卧
情景交融的雅致居室

考虑到主卧采光不足,设计师采用了全玻璃式开门设计,光线交织碰撞,以纯净之态渗进空间,瞬间明亮,时光仿佛在诉说着:这真是一个奇妙的邂逅呀。
Taking into account the lack of lighting in the master bedroom, the designer adopted a full-glass door opening design, where the light intertwined and collided, making it instantly bright.

绿色与白色的主打色,配合橙色的点缀,连体的镂空设计,衣柜融于墙面,便捷舒适,同时也解决了地暖,中央空调,潮湿、不通风等问题。重新设计后的主卧释放了过道空间的可获得范围,空间整体更加舒适自然。
The main colors of green and white, with orange embellishment, the redesigned master bedroom releases the available range of the aisle space, and the overall space is more comfortable and natural.

床头灯高低错开的设计,避免了彼此间的干扰,营造了安静的氛围,若有一方想阅读,只需开其中的小灯即可,也不会影响到另一半的休息。
The staggered design of bedside lamps avoids interference with each other and creates a quiet atmosphere.
卫生间
干湿分离,充分利用空间

淋浴间采用了壁挂式马桶,简洁好看,不藏污纳垢,同时增加了空间利用率。卫生间采用了干湿二分离的做法,独立空间利用更充分。
The shower room uses a wall-mounted toilet, which increases the space utilization. The method of separating dry and wet is more fully used.

空间对主人的思想具有昭示性,人与空间个性相合,具有相似的生活观念,仿佛是一切随缘,又冥冥之中早已注定,渴望舒适和静谧共享。
Space is revealing to the owner's thoughts. People and space have the same personalities and have similar life concepts, as if everything is random, and they are already destined in the dark, longing for comfort and quiet sharing.
项目情况|
项目地址丨Address: 上海黄浦
面积丨Area: 71㎡(套内49㎡)
设计单位丨Company:上海示觉室内设计事务所
服务方式丨Service:硬装+软装全案设计服务,主材+软装代购及落地服务
设计总监丨Design Director:尹琳娟
设计团队丨 Team:尹琳娟
关于设计师

尹琳娟 上海示觉室内设计事务所设计总监
擅长深度挖掘业主需求、个性、生活理念,深度解读业主社会文化背景和时代变迁,针对不同类型家庭的特定需求进行个性化量身设计