有些事情不是看到希望才去坚持,而是坚持了才看得到希望。
业主需求:常住人口3人
装修预算:15万左右
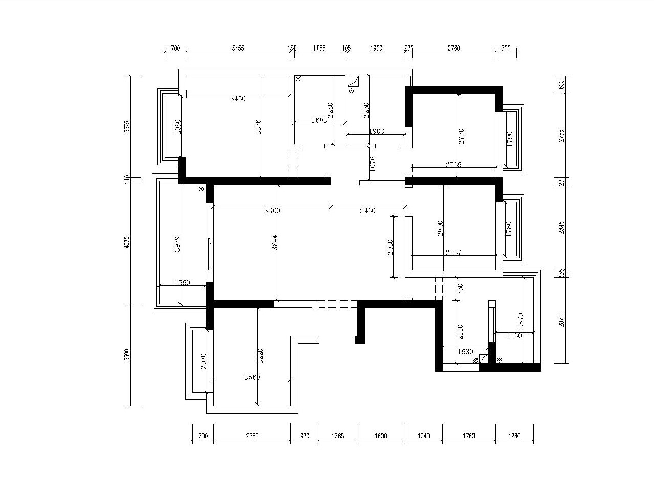
套内面积:107㎡
业主要求:现代舒适,实用。设计要求新颖 有创意,空间利用合理。
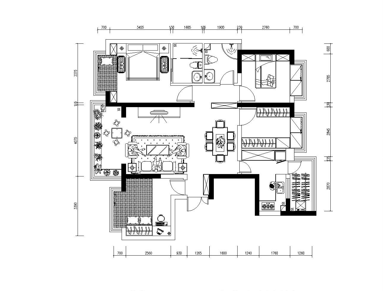
设计理念:本案为三居室,使用面积为107平米,户型特点是南北通透,板式结构的房子。客厅所用装饰材料简繁搭配,凸显大气,整体布局紧凑,客厅的家具注重整体色调搭配,餐厅的设计延续了客厅的主要设计风格,温馨简约。厨房色彩明了,布局紧凑,给空间增加了通透感。卫生间布局整齐,注重功能性。

平面方案图

方案布局图
了解更多装修知识,+15833350597免费量房出设计方案

浅灰色的布艺沙发搭配实木茶几与美式单椅,顶面吊灯造型与整室风格同样雅致。

多功能书房,榻榻米靠窗设计,大面采光窗将室外绿景引入室内,粉色墙面搭配浅灰色柜体,一把编织椅勾起复古情怀。

餐厅规划在相对独立场域,靠厨房梭门整面做酒柜,营造优雅高贵的就餐氛围。

客厅,大面积落地窗让室内采光与视野俱佳,米白色调的大理石纹地面勾勒黑色波导线,吊顶内凹采用石膏线做井字造型,拉伸层高。

儿童房,清新浅粉墙面搭配木地板,房屋造型的儿童床架充满童趣。

与客厅阳台动线相邻的书房玻璃梭门设计,开时结合墙纸作背景,合时隔断各个空间。

电视背景采用普通的线条走边,空间的整体氛围与格调出自每一处的细节体现。

与客厅阳台动线相邻的书房玻璃梭门设计,开时结合墙纸作背景,合时隔断各个空间。了解更多装修知识,+15833350597免费量房出设计方案