
前几天分享了十万改造106㎡的家,好多小伙伴留言想看更多细节。
穷装改造真是百看不腻,今天要看的这个家,屋主 @猪肉桂 只花了9.5万,打造成温馨小屋,快看看他的省钱经能不能帮到你!
内容选用户@猪肉桂
01. 低预算硬装详细指南
自己画图,找工人,买材料,监工,硬装花了7.5W,软装+电器花了2W。下面有详细的步骤给大家参考。

硬装费用在下图,其中“杂费”就不一一列举了,其中包含:石材、防水、美缝、排气扇、瓷砖胶、地固等等。

关于装修步骤,我总结了几个经验:
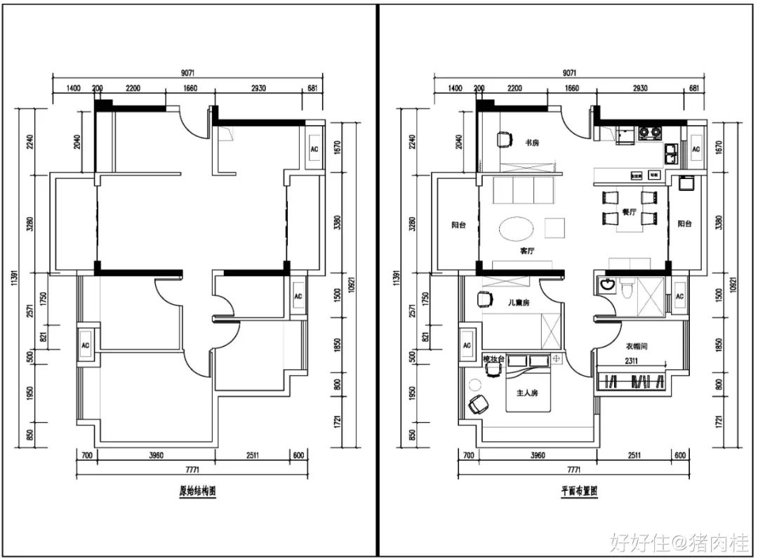
第一步:画图,考虑房子的装修效果。
本人是建筑画图仔,有画图经验,自己出装修图纸。我也看过一些人直接手绘平面布置图,然后找工人直接开干,水电工会根据他的平面图,和业主商量预留电位位置,记得考虑多一些双控开关,你的生活会便利很多。

大家先想好装修的效果再开工,别把房子装成四不像。喜欢什么风格?喜欢什么颜色?软装的搭配?
这套房的理念:至繁归于至简(也可以理解为没钱)。不装非必要的东西,效果靠射灯和软装搭配, 不做背景墙、不做天花,不做灯槽 。因为没做这些东西,我不用找木工。

颜色搭配 :原木黄+白(比例7),灰色(比例2),绿色植物(比例1)。不需太多颜色,多则乱,可以有极小部分的大胆跳色,但一定不能多!这些建议只是本人对美的一些拙见,不喜勿喷。

大家可以去网上参考一些优秀的作品,看它们的用色比例,柜子的分隔比例(很重要)。个人觉得黑白灰和极简风格很耐看,大家可以多留意。

第二步:找工人。
扫楼!你先不急着装修,等小区的人陆续开始装修后,走访每一幢的每一层,参观别人新房的装修现场,看工人的手工优劣,询问工价,把一些好工人的电话记下来,很多工人都愿意接业主的私单,因为业主不压工钱。拿到水电工、油漆工、水泥工、木工的电话,你就可以开始装修了。
我家的装修流程: 水电工、燃气预埋——水泥工——天花——油漆工、定制柜、房门——木地板——软装 。
第三步:买材料。
让工人写好需要的材料,你按单买料给工人即可!一定要选有品牌的材料,别省那点钱,材料的真假很重要。

#1. 水电材料
我家的水电管选日丰管,水管都是选双层PPR管。水电师傅完工后,我通知日丰公司过来验收,日丰的员工过来现场看管线的接驳位和走线是否合格,如果不合格,日丰会让师傅重做。如果合格,日丰加压试水,试水合格后,发一张保修50年管线的卡给业主,敢这样承诺的公司,质量可想而知。
#2. 油漆材料
选当地品牌加盟店或网上官方旗舰店(提防小店的贴牌油漆),可以选多乐士或立邦。
#3. 瓷砖
不同品牌的瓷砖材料费用差距很大,很多大品牌的瓷砖溢价很高,大家看钱包买菜。我选了个不太著名的一线品牌。
#4. 防水材料
非常重要!很多黑豹防水是贴牌的,新黑豹才是真的,但你不一定能买到真的。我在当地品牌加盟店买的德高防水,大品牌的质量不错。德高和雨虹都挺好。
第四步:定制门、定制柜、铝扣板天花。
我们选品牌的定制柜,在当地的建材市场选购,选的是生态板材料的门和柜子。柜子的面板是肤感板,效果和手感都不错。

第五步:监工
如果你每天过去监工,建议带瓶冰凉的饮料给师傅。你尊重工人,对他好,他会对你更好。如果你是一副高高在上人上人的样子对着工人,小心你的房子要经常返修。
PS:如果有时间,可以学装修工艺的验收标准,或请专业的第三方监理。如果没充分的时间,也觉得麻烦,建议还是找专业装修公司或设计师+包工头+监理的模式。

02.
先定一个小目标,
2万搞定软装!
书房家具费用
399X2 (书柜X2)+199(书桌)+199(椅子)+149X2(鞋柜X2)=1494元。
全是宜家最便宜的基本款,缺陷是板材是密度板,密度板容易变形和泡水膨胀,平常使用需注意。

客厅家具费用
3299(沙发)+499(茶几)+1000(电视柜)+260左右(挂画)+200(边几)+199(落地灯)+99(琴叶榕)+19(挂钟)=5575元

电器
开发商送了三台空调、一台洗衣机、一台冰箱、一台电视,省了1.2W左右(这笔费用不含在9.5W以内)。电器的选择因人而异,推荐扫地机器人和洗碗机,老婆和我再不用担心家务轮到谁做了,深深感受到科技的便利。

最后交待一下背景,我有帮朋友装过几套房子的经验,有一些相熟的工人和一些相熟的材料店,可以拿到工程价,价格相对便宜一些。不过,大家自己装也最多比我多个1-2W费用而已。
如果你有闲(或父母比较闲),对装修有一定的兴趣和了解,可以尝试以上的攻略。我妈的老人朋友很多都是这样做,因为老人家比较闲,这样做省钱。
希望大家拥有一套理想的房子。