案例介绍:
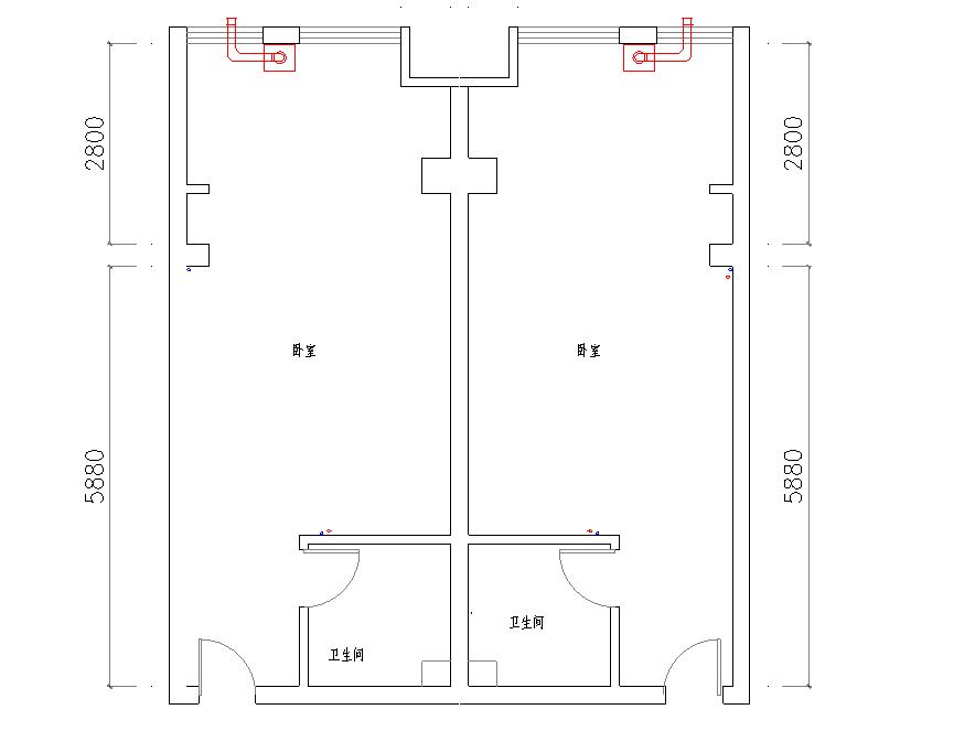
前段时间,有一个网友联系我去他位于成都后花园的公寓看看做暖气的事宜。他这里是一间屋格局,可谓是麻雀虽小五脏俱全啊,有厨房卫生间,套内面积只有28平米(如下图)。

网友一家三口是青海人,为了娃娃读书所以购房在这里,他买下了相邻的两间用作日常居住使用,他们已经领教过了成都的冬天那种湿冷,所以这里一定要安装暖气,后期等几年娃娃不在这里读书了,再把这里出租,所以两间屋的暖气必须独立。
网友他首选暖气片,因为这个他很熟悉,然后的方案是可以接受水地暖,但是他感觉水地暖不安全,担心会漏水,所以问问我的建议该如何做?

我的建议是不做燃气壁挂炉的暖气,采用铺设电地暖,卫生间可以使用电暖气片,这样从实际使用和后期能耗来讲是最好的方式,理由如下:
1、施工更简单快捷。由于整个房屋面积很小,这里虽然是2套房子,但是每间屋只有28平米,不管是做水地暖还是暖气片,都将分成2个施工周期才能完成;而使用电地暖,只需要3天时间就可以一气呵成完成铺装调试,直接交付,用户可以立即感受电地暖的热度。

2、初期费用,电地暖更加经济实惠。这个户型为了后期能够出租使用,所以是以两家的形式存在,可是使用2套系统,这样每一套的安装成本在14000元(他需要德国原装进口的菲斯曼),合计是28000元。
而使用电地暖,我推荐使用发热电缆式的,连上回填找平工序,总费用不会超过13000元,直接便宜了一倍多。

3、后期使用费用电地暖更低。这个户型是公寓性的,也配置了天然气表,入户电线为6平米;使用燃气式壁挂炉做暖气,壁挂炉的热负荷功率至少要使用18kw,它的耗气量是约2立方/小时,每天自动运行会在5小时左右,每月的耗气量是300立方,以2.5元/立方中档燃气阶梯计价参考,冬季采暖的费用在700元/月不等。
而使用电地暖它的额定耗电功率是3.5千瓦,室内20度的温度控制,平均每天连续工作8小时,耗电是850度电,以0.6元的计价标准,每月是约500元的电费。

4、后期的维护费电地暖更低,使用更省心。电地暖的施工,只要发热末端不出现问题,几乎后期是没有维护费用的。现在的电地暖形态有发热电缆式、电热膜、碳晶模块式,我觉得使用电缆式要比另外两个更加耐用,原因是电缆式有回填保护,后期具有一定的蓄热和保护发热电缆的作用。
使用水地暖或暖气片,首先是壁挂炉有可能存在维修的可能性,然后是需要定期清洗其内部和管道,所以使用燃气式水暖在后期使用上没有电地暖省心。

以上就是在这里使用电地暖的主要原因;这只有30平米不到的面积下,使用壁挂炉暖气相对来说是不划算的,我们平时常以100平米的采暖面积说能耗是大概1500元,在30平米的采暖面积能耗绝不是100平米的三分之一。
另外,如果在30平米的环境下使用暖气片,如果为了节约初装费,直接连接壁挂炉,会造成室内空间热不起来,因为暖气片只有1-2个,采暖水通过暖气片散热后的回水温度会过高,导致壁挂炉误判温度合适了而停机。

电地暖的施工基本流程和方式:
1、计算房间所需要的热负荷。比如这个案例中是28平米,是一间屋子,以120瓦/平米参考热量,即28平米乘以120瓦/平米=3368瓦。
2、在你所准备购买的品牌里,找到电地暖具有这个功率的产品,由于它都是以一圈为单位,只要散热量等于或略大于以上的散热值即可,比如我这里就选择的两盘电缆,合计总功率是3500瓦,长度是共计190米。

3、清洁地面,保证地面的基本干净和平整度,依次铺防潮膜、保温挤塑板、沿墙保温带和反射膜,接下来铺上钢丝网,把发热电缆以不小于10公分的间距,用轧带固定在钢丝网上,其中避开衣柜之类柜体的地方。

4、然后安装温控器,依据说明书把地面温感探头固定在发热电缆线的旁边后,再把电源线与温控器连接好。
5、通电试运行,10分钟后用手感知是否有明显的热量,如果你的线缆没有问题,基本上都是合格的。

6、在电地暖的表面倒入用于回填的水泥砂浆,让其自然的凝固,通常厚度在2公分左右,等待自然干燥后,直接铺装地砖或木地板,使用地砖效果更佳。当然,如果你使用的是碳晶发热模块、电热膜之类的,是可以直接在上面铺装木地板使用。

总结
该案例是极小户型里对电地暖和燃气壁挂炉的选择,通常采暖面积在50平米以下的新房子装修暖气,我的建议是使用电地暖,因为面积越大对电线的需求就越大,后期能耗会越高。

而在80平米以下的采暖面积,使用壁挂炉的暖气,如前文所介绍的一样,不但初期造价贵不说,后期能耗也贵,唯一的好处是节约了一个热水器的采购费用而已。