相比大房子的奢华大气,我倒认为小房子里怎么既满足功能又不显逼仄更优秀。
在家的要素app里,有一个案例,仅有70㎡的空间,做成两室一厅毫不拥挤,还带一个阳光房。而且软装搭配也是超级舒适。

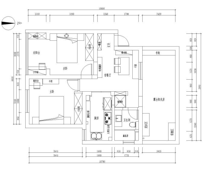
先上房屋信息:
坐标:上海
面积:70m²
费用:20w
户型图:

房子是上海的一套公寓。 看中它的优点:①两房朝南,卧室都比较大,父母来也能住得舒服;②有一个赠送的大露台(相对于房子本身的面积);③全明边套;④厨房的相对面积不小,我和家属喜欢在家做饭。 最大的缺点:客厅太小,也是很多老房子的通病了。
说在前面:
买房子时刚毕业不久,囊中羞涩,挑中这个小房子,算是缘分。装修之前我和家属定下的第一原则就是要经济实用、简单环保,因为考虑到过几年生活改善之后可能会置换住房(然而装修完之后就被魔都的房价打脸了)。很多家具都是购买于宜家和淘宝,定做的家具部分也尽可能追求简洁实惠。所以最后整个呈现出来的家装风格也是简单接地气的。
希望我记录下的小家能够对刚走入社会的青年朋友、小户型业主、以及喜欢简洁家装风格的朋友们一些启发和帮助。另:装修花费包括所有硬软装家具(含拆旧、封阳光房),不含家电。房屋的建筑面积67不到(不含露台),实用面积是56(室内)+16(阳光房)。
门厅

玄关鞋柜,上下柜分开,中间留台面放进出门随手物品;下柜吊起,底部安放拖鞋,显得比较整洁。 进门右手边安置了挂钩,挂袋子、围巾、雨伞等。 后续想要改造的部分是加个全身镜,出门之前整理一下自己更加方便。
客厅

受限于户型,客厅面积仅有9平方米左右。 为了使整个空间不过于压抑拥挤,我们舍弃了心心念念的沙发,将客餐厅功能合为一体。 以餐桌作为客厅中心,两侧相对设置卡座和椅子。
卡座对面设置电视。两人在家时就坐在卡座上一边吃饭一边看看节目,有客人来就围坐在餐桌周围,想要读书工作时大桌子也可以作为工作台。

卡座设计成L形,一边卡座一边餐边柜,卡座下也带有四个抽屉,储物能力非常强。另一侧搭配了宜家网红小推车,灵活轻便。卡座上方的墙面是和阳光房相邻的窗户,搭配罗马帘显得简单清爽。

餐边柜的对侧敲了一部分墙,木工现场做的嵌入式开放书柜,和旁边的厨房门同高。 书柜颜色的选择和餐桌尽量保持了一致。
卧室

周末的清晨,从客厅往主卧的方向看。 家给人带来的幸福感大致就是如此吧。

床对面安置了梳妆台和斗柜,全都来自宜家。 这一部分也有想要改造的部分:在电视上方加一排质感好的原木色隐形搁板,放置一些绿植和装饰。不过一直没找到合适的,就搁置了。希望这个部分能更加有生气。

因为是小空间所以选择的衣柜是到顶的移门衣柜,可以将储物功能发挥到最大,也不留卫生死角。 这里柜子的总宽度太大所以做了三开门。

衣柜内部收纳图一张,以前也发过。 帆布篮收纳的是穿过一次还不需要清洗的衣物,底部根据门打开的方便程度分别选择了抽屉和铁框作为衣物收纳。

晚上的主卧,换了一套床品。 两个卧室床选择的都是可上翻的高箱储物床。《小家越住越大》里也说过,小户型对储物能力的要求更高。
次卧

次卧和一个朝南的内阳台相连。 由于朝南,冬季的光照较好,所以也布置了晾晒系统,其他季节的晾晒主要在北面阳光房。 内阳台的西侧做了通高的储物柜,和墙垛齐平,不会显得压抑。

进门一侧同样是通高的移门衣柜。

内阳台的东侧布置出一个小型家庭工作区,用的都是宜家的产品。

现阶段次卧基本上是父母偶尔来住的。考虑到父母的生活习惯还是安装上了电视。 电视挂上墙后在下方也加了搁板,置物方便,墙面也没那么单调了。
厨房

我们家厨房是长条形,宽度1.9m左右。 如果三边都做进深600mm的U形橱柜和台面,人的活动空间就显得非常拥挤;如果只做L形橱柜,那么台面面积就太少,操作会非常不便。
于是我们折中了一下,做了L形的下柜,剩下的一侧用橱柜门板材料加工成搁板,进深350mm,用三角撑固定,大大增加了台面面积。 搁板上方做了进深更小的上柜,尽可能增加储物空间并且耐脏好打理。


很多朋友问我搁板怎么固定,如图。 搁板底部可以安置推车、垃圾桶等,非常灵活。 搁板另外一个特别大的优点就是省钱!一般橱柜公司做橱柜都是按面积收钱,但是帮我加工搁板就只按面积收了板子的钱,固定件是淘宝的,橱柜公司帮忙安装。

切配区。

烹饪区。

搁板台面主要安置常用小厨电,也可以作为配菜时的补偿台面。


除了橱柜之外,墙面也利用了挂杆、支架、吸铁石、铁丝网等提升储物能力。

卫生间

卫生间同样很小。卫柜和马桶是相对布置的,从镜柜里可以看到对面的壁挂式马桶水箱。 待马桶安装好之后我们才发现卫柜和马桶之间距离太近,通道尺寸太小。
好在找到了这种半挂式台盆,将台盆和马桶的位置错开,其余位置台面的深度较浅。 卫柜和淋浴房之间特意留了小空隙,藏了一个长条形的垃圾桶:)随手使用的东西尽量上墙。

由于移动了马桶的位置,所以选择了墙排马桶。 马桶上方安装了电热毛巾架,毛巾经常保持干爽可以增加幸福感噢。
走廊

卫生间门口的过道有一个凹进去的区域,做了整面的储物柜。对储物功能的追求就是这么执着(捂脸)。

幸福就是你做饭刷碗,我吃饭拍照。
阳台

露台原来是敞开的,非常开阔。但为了实用起见我全部封起来做了阳光房,干净好打理。玻璃顶上装了遮阳帘,可以根据需要开关。 看到这初春清晨的阳光,就觉得好幸福,这种时候最喜欢在阳光房洗漱。

露台呈长方形,东面是洗衣、清洁、绿植区。

洗衣区正面照。 洗衣柜是淘宝的一体式洗衣柜,价格实惠露台上晒着也不心疼,缺点是台面不耐脏。 上方用宜家艾格特设计的储物系统,轻便灵活,非常实用。 洗烘一体洗衣机在上海非常实用。

阳光房西面是休闲健身区。最西面一堵墙放了一排宜家的毕利书架,遮挡了客厅出来的空调管子,价格实惠不怕晒坏。 跟风住友买了迷你可折叠跑步机,最适合小户型。 墙上的洞洞板也是从好好住上来的灵感,收纳清洁工具方便整洁。

最后来个洞洞板近照。